¿Se puede alojar cómodamente en 19 m²? ¡Por supuesto!
En esta pequeña estudio se encontró espacio no solo para la cocina, sala de estar y área de dormitorio, sino también para un despacho y un baño separado
La diseñadora Victoria Malysheva creó un espacio cómodo y ergonómico para una estudio de 19 m² para dos personas. El apartamento se encuentra en un edificio reconstruido de una fábrica de té, por lo que aquí hay techos altos y una gran ventana. Detallamos las características del diseño.
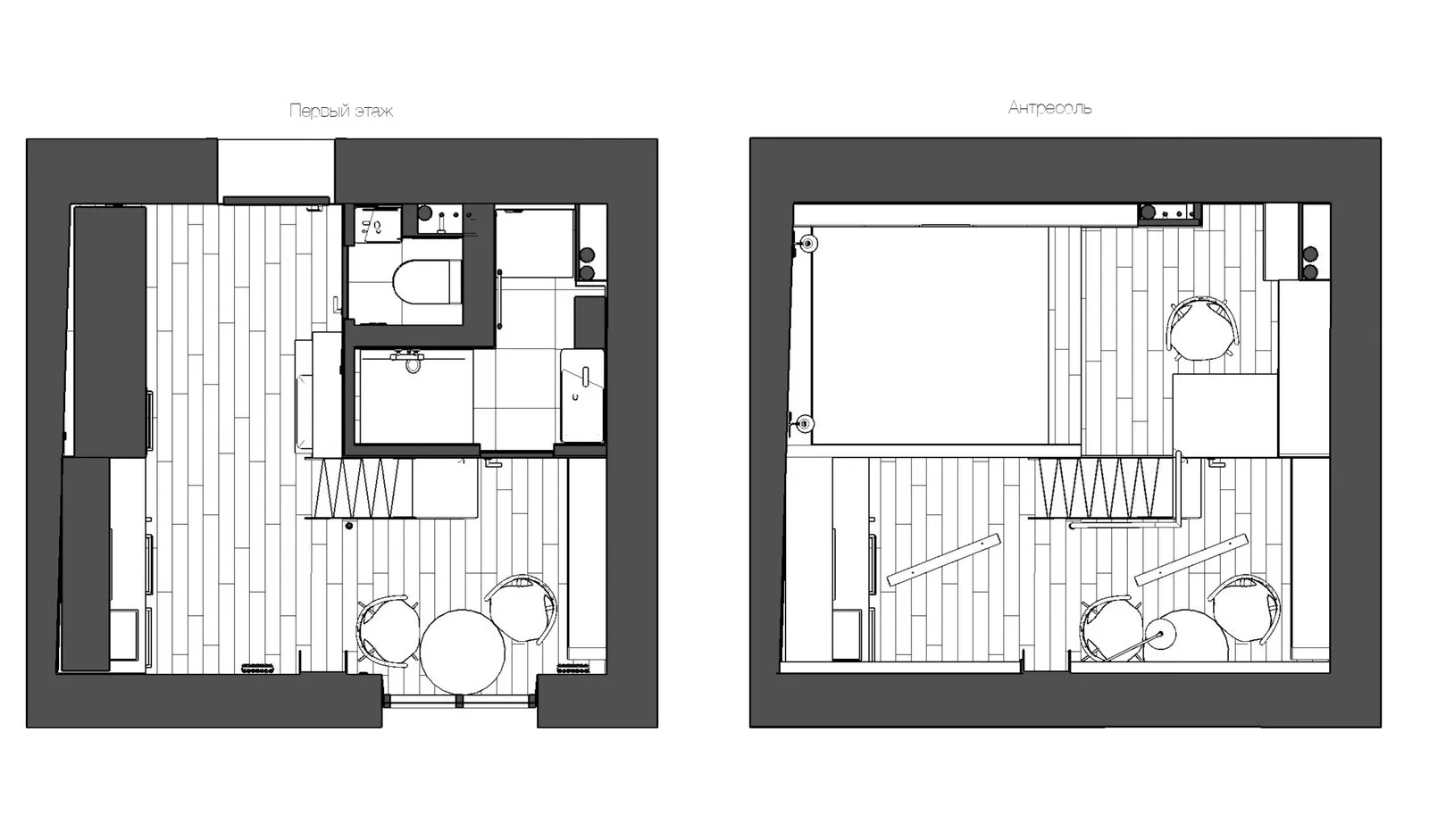
Planificación
En una pequeña área se logró colocar todas las zonas funcionales, incluyendo una cama king-size de 180×200 cm, un despacho y un baño separado. Para ello se aprovechó la altura de los techos y se creó una planta alta (antresol).

Espacio de vida
El problema del diseño de zonas se resolvió no solo horizontalmente, sino también verticalmente, dependiendo de la función de cada zona. Por ejemplo, se dedicó más altura al vestíbulo, sobre el cual está la habitación en el nivel superior (antresol), donde hay menos espacio. El despacho está ubicado sobre la ducha, y en ambas zonas una persona puede pararse cómodamente. En realidad, las paredes solo existen alrededor de los baños - dividirlos en una ducha y un wc era una necesidad fundamental.

Almacenamiento centrado en el vestíbulo: hay un gran armario con una tabla de planchar plegable integrada. También se ha previsto un armario de cabecera alrededor de la cama. Todo hecho a medida siguiendo los bocetos del diseñador.
En la cocina hay todos los electrodomésticos, incluyendo una lavavajillas que a menudo no cabe ni siquiera en un apartamento estándar, un refrigerador integrado y un horno. El almacenamiento está en el armario-columna alto y en los armarios superiores. Todo el primer nivel consiste en armarios deslizables, si no están ocupados por electrodomésticos.

Cocina IKEA con puertas de acero inoxidable: queríamos añadir precisamente este material, ya que da reflejos interesantes. Al pedir el armario del vestíbulo, descubrimos que la altura del armario no encajaba bien con la del armario alto de cocina, tuvimos que aumentar la altura del armario con una extensión.

En la estudio se deseaba crear un espacio luminoso y tranquilo donde descansara la vista. Para el suelo se eligió una tabla de ingeniería, las paredes están pintadas. El cubo del baño está destacado con color gris, combinando con puertas brillantes de color gris. Se crea un contraste entre la pintura mate y las puertas brillantes.


En la ventana se colocó una zona de comedor: una mesa de colección restaurante que se puede plegar cuando sea necesario, junto con sillas hechas de piel reciclada (una solución ecológica ya que se usan residuos de la producción de piel).


La escalera del nivel superior fue diseñada según los bocetos del diseñador. Tiene una altura alternativa y minimiza el espacio ocupado por la escalera. El pasamanos también es único - tiene solo dos puntos de anclaje (fijado abajo y arriba, en la losa de concreto y en la base metálica de la estructura del antresol).

El techo es una losa de perfiles metálicos y vigas. Añadieron un toque industrial al interior, por lo que se decidió no ocultarlo y pintarlo con el mismo tono blanco que las paredes, y colocar una iluminación LED a lo largo de las vigas.
Como el espacio es de dos niveles, el sistema de iluminación prevé encender y apagar los focos tanto abajo como arriba.




La iluminación del segundo piso se realizó con tiras LED colocadas sobre las vigas del techo.



Fotógrafa: Sonya Pugachyova
Estilista: Victoria Malysheva
Marcas presentadas en el proyecto
Estudio
Revestimiento: pintura, Little Greene
Piso: tabla de ingeniería, Finex
Garnitura: IKEA
Electrodomésticos: lavavajillas, Siemens; horno, Miele; placa de cocción, Gorenje; extractor y refrigerador, Electrolux
Grifos: Hansa
Lavabo: IKEA
Iluminación: bra, La Redoute
Baños
Revestimiento: pintura, Little Greene; azulejos de pared, Equipe
Piso: azulejo de piso, Porcelanite Dos
Muebles: armarios, Cooke & Lewis
Sanitarios: inodoro, Am.Pm; lavabos y grifos, Jacob Delafon
Decoración: espejos, Leroy Merlin
Grifos: Jacob Delafon
Iluminación: spots, Regenbogen; bra, Faro
¿Quieres que tu proyecto sea publicado en nuestro sitio web? Envía fotos del interior a wow@inmyroom.ru
Need a renovation specialist?
Find verified professionals for any repair or construction job. Post your request and get offers from local experts.
You may also like
Más artículos:
7 geniales ideas para un interior en estilo escandinavo
Cómo hacer que una habitación oscura sea más luminosa: 10 consejos geniales
10+ geniales hallazgos para un apartamento pequeño
Espejo en la cocina, gran decoración y otros 7 consejos para un interior impresionante
Casa desde cero en 30 días: todos los detalles del cuarto fase de construcción
Clases y económicas: 12 productos para dormitorio y sala de estar
Los 5 mejores baños pequeños pero muy elegantes en viviendas de estilo Khrushchyov
Diseño de interiores en estilo ecléctico que te sorprenderá