Cómo una diseñadora convirtió simplemente y con estilo una habitación común en una acogedora unidad para alquilar
Interior elegante y económico
Esta vivienda estaba pensada para estancias breves de familias de 2-3 personas. Por eso se optó por un diseño interior lo más sencillo y económico posible. La diseñadora, Svetlana Kravnova, añadió aportes vibrantes.
Veamos cómo queda la vivienda tras el remodelado.
- Lugar: Moscu
- Superficie: 42 m²
- Habitaciones: 1
- Diseño: Svetlana Kravnova
- Estilista: Olga Charlamo
- Fotos: Eugeni Gnesin


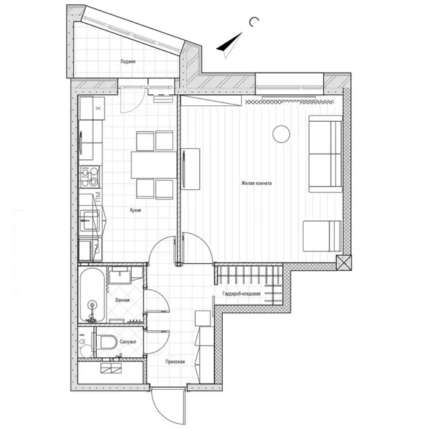
PlanoSe separaron la habitación con cocina y el baño compartido. La entrada a la habitación-almacen se decidió hacer desde el pasillo.
La sala principal está dividida mediante papel pintado entre la zona común y la zona dormitorio. Las altas techos amplían visualmente el espacio y lo hacen más aireado.
Antes y después
RevestimientoSe utilizaron materiales de construcción de clase económica: puertas rusas, azulejos y laminado, además de papel pintado español. El papel se aplicó en la cocina y detrás del sofá.




Muebles y decoraciónTodos los muebles y electrodomésticos para la cocina, excepto la lavadora, fueron seleccionados en IKEA. Actualmente tienen altas estanterías y estantes abiertos para artículos pequeños.
En la habitación se colgaron cortinas de Leroy Merlin, ajustadas ligeramente en longitud.
Para crear una atmósfera jazz, la diseñadora añadió un cartel colorido con micrófono al guitarrista del cliente.




Need a renovation specialist?
Find verified professionals for any repair or construction job. Post your request and get offers from local experts.
You may also like

10 presupuestos gadgets para la cocina, de los que sueña cada ama de casa

Cómo proteger estructuras de madera en la finca: guía sobre pinturas, antisépticos, aceites y pinceles

Transformaciones de cajas de concreto: las mejores ideas de diseño para nuevos apartamentos

8 estilos y bien pensados vestíbulos de los proyectos de nuestros héroes
Más artículos:
10 presupuestos gadgets para la cocina, de los que sueña cada ama de casa
Cómo proteger estructuras de madera en la finca: guía sobre pinturas, antisépticos, aceites y pinceles
Transformaciones de cajas de concreto: las mejores ideas de diseño para nuevos apartamentos
8 estilos y bien pensados vestíbulos de los proyectos de nuestros héroes
Vida sin IKEA: productos geniales a precios agradables
Cómo reducir el nivel de ruido en el apartamento: 10 consejos útiles
Cómo mantener fácilmente la limpieza en el apartamento: 9 consejos útiles
5 consejos del arquitecto para crear comodidad en espacios pequeños