Calor de Barcelona en una casa soviética de estilo jútar
Toma nota de las ideas decorativas para hacer tu hogar más acogedor
A muchas personas les resulta aburrido el día a día en un clima severo y la rutina cotidiana. Ya que un buen estado de ánimo comienza con los pequeños detalles del entorno, decidimos regalarte un toque de inspiración diseñadora. Hoy examinamos un efectivo remodelado con reconfiguración del diseñador Pavel Foteev, quien transformó una habitación estándar en una casa soviética tipo jútar en una amplia estudio hecho con sus propias manos.


Características de la reconfiguración
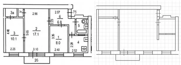
Una vivienda de tres habitaciones con una planificación estrecha y estándar se encuentra en un edificio antiguo del cuarto piso y no destaca por su gran superficie, solo 54,8 metros cuadrados. Por lo tanto, una de las tareas del diseño era ampliar el espacio.

Pavel decidió fusionar la sala de estar, cocina y entrada y delimitar el amplio estudio. La habitación se volvió más luminosa y espaciosa. Este efecto se logró no solo eliminando las paredes innecesarias, sino también utilizando el color blanco como base de la decoración y grandes elementos constructivos.

Estética en los detalles
Para crear un hogar acogedor y elegante, era importante deshacerse de los elementos anticuados sin sabor. El punto destacado del remodelado fue actualizar la antigua mobiliario y el parquet. Pavel jugó con detalles clásicos y los colocó como base del nuevo diseño: restauró un parquet de pino sólido y un armario familiar vintage. La entrada se volvió acogedora y elegante.


Justo detrás del armario que ayuda a delimitar el espacio de la entrada, se ha instalado un espacio de trabajo creativo (en la foto principal). A la izquierda va la puerta que lleva a la habitación dormitorio, hecha con un estilo coherente con el diseño general.
Un rincón de descanso acogedor junto al balcón aporta encanto especial a la vivienda. Gracias a los relojes estilo antiguo, estanterías europeas en lugar de cortinas y una magnífica vista a la zona de cocina con lámparas decorativas y platos aquí reina la serenidad y el calor.


No se olvidaron de equipar el balcón, donde colocaron una mesa compacta para café y un par de sillas para disfrutar del hermoso paisaje. Excelente ejemplo de cómo usar cada milímetro con alma. Además, toda la vivienda está decorada con plantas domésticas que aportan vida y limpieza a las paredes sin expresión.
Ergonomía y ligereza
Para hacer la cocina más espaciosa, Pavel eliminó dos paredes que no eran estructurales. Entre la sala de estar y la cocina (en el lugar de una de las paredes antiguas) colocó el grupo de comedor con una mesa de madera maciza. La mesa de comedor con patas talladas luce elegante y armoniza con el arco entre habitaciones y otros elementos del diseño. El borde de la ventana de la cocina fue ampliado para convertirse en una encimera para desayunos y trabajo cómodo. Ya que desde las ventanas de la vivienda se puede observar un hermoso paisaje verde que mantiene la atmósfera de luz y ligereza en el interior.




Baño elegante
Transformar un baño soviético apretado en un espacio limpio y cómodo puede ser difícil. Para ahorrar espacio, Pavel eligió un inodoro instalado con elegancia, una cabina de ducha y muebles minimalistas en tonos blancos.


La vivienda se transformó y se parece a un nido mediterráneo animado. ¡Escribe en los comentarios cómo te parecen estos cambios?
Queremos compartir contigo los detalles de este remanufacturado autónomo y consejos útiles sobre cómo decorar una vivienda con estilo ecléctico. No te pierdas y sigue leyendo las nuevas publicaciones en nuestro canal.
Need a renovation specialist?
Find verified professionals for any repair or construction job. Post your request and get offers from local experts.
You may also like
Más artículos:
Almacenamiento en la cocina: 7 opciones ganadoras que rara vez se usan, y por eso
Mejorar una vivienda arrendada sin grandes gastos: lista de verificación de soluciones prácticas
Guardias en apartamentos pequeños: lujo o necesidad
7 ideas de ocultación de la plancha en el interior
Cómo los diseñadores de una monográfica crearon una dúplex con vestidor y espacio para invitados
5 mejores aparatos para la cocina que mucha gente no conoce y se pierde
Diseño de remodelación de una habitación de 44 m² con atmósfera de hotel boutique europeo
Dúplex escandinavo en 10 meses: diseño minimalista de 43 m²