Interior luminoso de dos habitaciones que no saldrá de moda
El diseñador explicó el proceso de trabajo y compartió consejos útiles sobre cómo hacer un interior básico único
La vivienda que decoró la diseñadora Elena Chigirieva está ubicada en Kaliningrado, en un hermoso complejo residencial "Amalienaу". El cliente la compró para su madre, con el fin de que pudiera disfrutar cómodamente de sus actividades y pasar tiempo con los nietos. La autora del proyecto compartió detalles interesantes.
Elena Chigirieva - Diseñadora de interiores
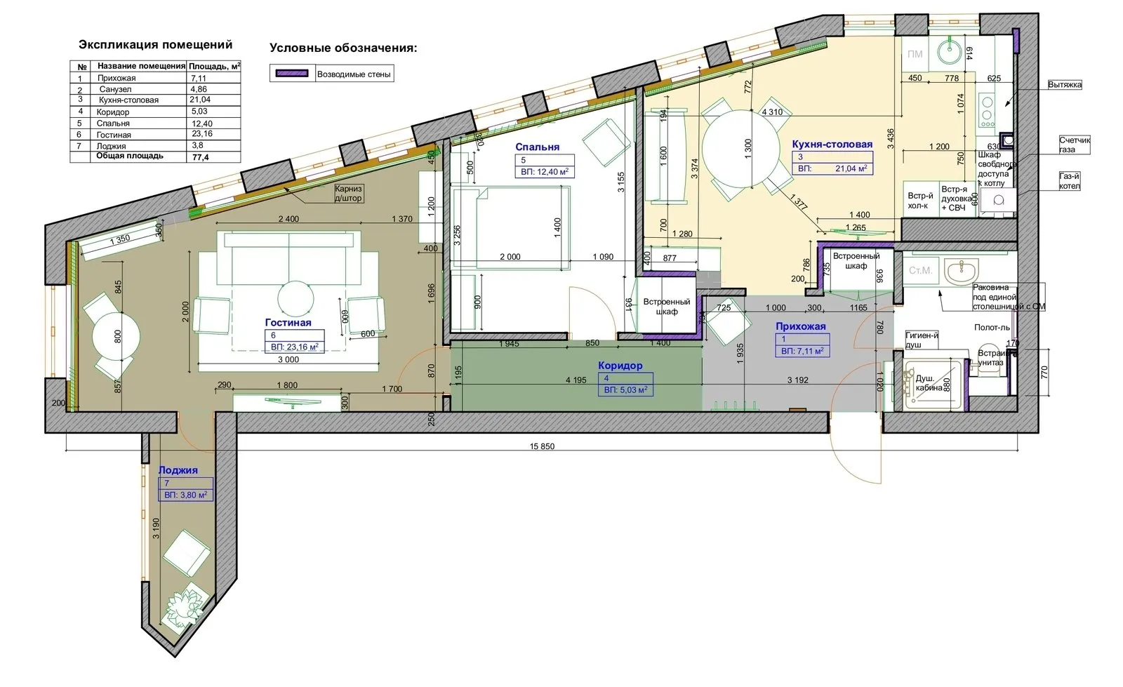
Planificación
El área de la vivienda es suficiente para que una persona viva y reciba a invitados, 77,4 metros cuadrados. Una característica destacada es la gran cantidad de ventanas y la forma irregular de todos los espacios.
La tarea consistía en organizar una gran zona comedor, por lo que nos deshicimos de la habitación pequeña conectándola con la cocina y convirtiéndola en comedor. En una de las habitaciones había una columna, que se ocultó creando espacio para un armario empotrado en la habitación principal.

Cocina
La cocina fue completamente diseñada según mis planos, la mobiliario se ordenó con un artesano local. Todo el equipo está integrado, dentro del armario detrás de la columna con horno y microondas se colocó el calentador. El lavabo se ubicó frente a la ventana: para que el grifo no interfiriera con la apertura de la ventana, se eligió un modelo plegable especial — este es un punto importante.



Servicio de mesa - valor familiar, que formó la base de la paleta cromática de esta zona.
Sala de estar
Se colocó parquet de tono mostaza: esta fue la base que dio dirección a todo el interior. Las paredes tienen pintura inglesa Little Greene, molduras, cortinas y molduras Orac Decor. Sugirió usar precisamente esta pintura porque tiene tonos cambiantes - como los camaleones, y en la vivienda hay una luz natural muy bonita: las paredes parecen vestirse de nuevo durante el día. Las molduras en las paredes dan un aire clásico al interior y completan la imagen.


El amor especial es el textil en el interior. Usamos encantadores patrones Morris en las cortinas de la sala, que se desean observar con atención. Su apoyo decorativo fue el almohadón. Cada cosa se seleccionó cuidadosamente, casi todo se compró en liquidaciones, por lo que resultó dentro de un presupuesto relativamente bajo.


Habitación principal
En la habitación principal detrás de la cabecera de la cama se usaron papel pintado sueco Borastapeter con dibujos de hojas de helecho. Esta es una excelente solución cuando se necesita crear un punto focal en el interior sin gastar mucho dinero.


Patrón en el papel pintado se complementó con textil y decoración.

Cuadro en la habitación principal - trabajo de la nieta de la dueña, quien estudia en una escuela de arte, transmite una especial ternura y calidez.
Apartamento y sistemas de almacenamiento
Ya que en la vivienda a todos los residentes se les proporcionaba un almacén individual, no era necesario tener grandes sistemas de almacenamiento. La parte más costosa del armario fue la puerta corredera. En una tienda de construcción compraron un sistema de guardarropa, encontraron un cómodín con ruedas en IKEA. El llenado costó aproximadamente 10.000 rublos. Sin embargo, el armario en el pasillo se ordenó con un artesano privado, como la cocina.


Baño
El baño se planificó durante mucho tiempo. Era necesario colocar una cabina de ducha, inodoro empotrado, gran superficie con cajones para almacenamiento y una lavadora debajo. Al final todo cabía, el volumen aumentó gracias a un gran espejo con lámparas laterales.


Fotógrafo: Anna Orlova
Decorador: Elena Fedotova
Marcas presentadas en el proyecto
Acabados: pintura, Little Greene; molduras y cortinas, Orac Decor; cerámica en el baño, Keratile Baikal; papel pintado, Borastapeter
Piso: azulejos, STN Ceramica; parquet, Hajnowka
Muebles: mesa, Meble Nova; sillas, sofá, Furninova; buffets, IKEA; sillón, Sits; sofá, Gruppo Fox; espejo y cojín, IKEA; perchero, Bergenson Bjon; cama, Beyosa; mesitas de noche, "Angstrem"; sillón, BasicDecor
Electrodomésticos: Bosch; televisión, LG
Grifos: Tres
Luz: lámpara de pared, Mantra; lámpara de pared, Freya; lámpara colgante, Maytoni; lámpara de pared, Evoluce; lámpara de pared, Art Lamp
Textil y decoración: estudio textil "Comfort and Style"; alfombra y almohada, Tkano; ropa de cama, Lux Home; cerámica, Natalia Konshina
Baño: inodoro, Villeroy & Boch; puertas de ducha, Radaway
¿Quieres que tu proyecto sea publicado en nuestro sitio web? Envía fotos del interior a wow@inmyroom.ru
Need a renovation specialist?
Find verified professionals for any repair or construction job. Post your request and get offers from local experts.
You may also like

Cómo decorar una vivienda de pequeño tamaño: 10 consejos del decorador francés

Reparación presupuestaria de un apartamento en un edificio antiguo con soluciones de colores polémicas

Transformación increíble de un viejo cobertizo en un acogedor hogar

El hogar escandinavo de sus sueños: 8 consejos para construir y ahorrar
Más artículos:
Cómo decorar una vivienda de pequeño tamaño: 10 consejos del decorador francés
Reparación presupuestaria de un apartamento en un edificio antiguo con soluciones de colores polémicas
Transformación increíble de un viejo cobertizo en un acogedor hogar
El hogar escandinavo de sus sueños: 8 consejos para construir y ahorrar
Orden en la habitación del niño una vez y para siempre: 6 ideas útiles e inusuales
Cómo vivir con comodidad en una vivienda pequeña: 4 principios importantes
Lo que devalúa tu cocina: analizamos errores evidentes y no los repetimos
Cómo hacer que el aire de la casa sea más limpio: 7 métodos efectivos