Reparación de un apartamento de dos habitaciones desde cero en 4 meses: acogedor y funcional sin ayuda de diseñador
Descubre cómo los dueños de este apartamento transformaron una caja de hormigón en un interior elegante
Los dueños de este apartamento, una experta en arte Tatiana y su esposo empresario Alexander, lograron convertir rápidamente una caja de hormigón en un apartamento acogedor y elegante.
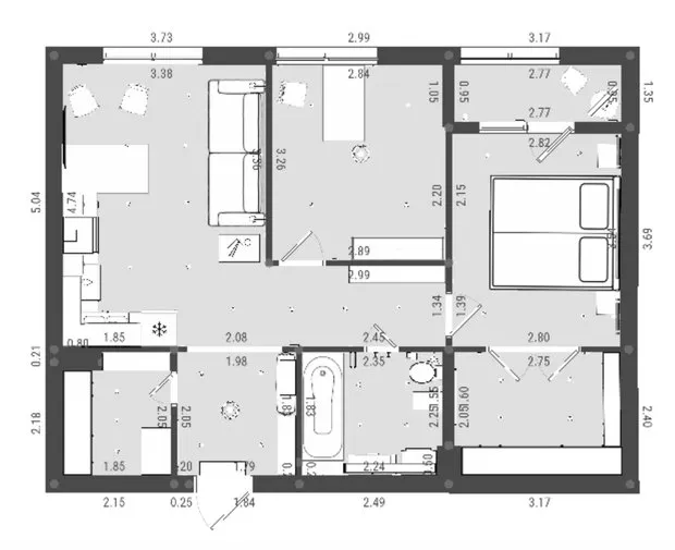
LUGAR: Moscú, ЖК «Agua»METRADO: 67 m²HABITACIONES: 2ALTURA DE TECHOS: 3 mPRESUPUESTO: aproximadamente 4 millones de rublosFOTOS: Yuri GriskoPlanificación
Gracias a que no fue necesario replanear, la rehabilitación del apartamento duró solo cuatro meses. Sin embargo, todo el interior fue pensado desde cero.
Gama de coloresLos tonos brillantes en todas las habitaciones se convirtieron en el elemento destacado del diseño: cocina turquesa, entrada morada, dormitorio verde y estudio azul (posteriormente convertido en habitación infantil).

La gama de colores para el pasillo fue sugerida por el estudio «Una habitación». Los diseñadores propusieron jugar con el contraste entre el pasillo oscuro y las habitaciones claras, lo que resultó en un diseño impactante.
RevestimientoLos materiales de construcción se eligieron por su practicidad. Por ejemplo, los alféizares y mesas de cocina fueron hechos con piedra artificial, y el piso en el vestidor, baño y cocina se colocó con cerámica granítica.

Las baldosas del baño y el pasillo se combinan por su patrón, lo que parece unir ambos espacios. La baldosa económica de Kerama Marazzi con relieve luce premium a pesar de su costo.
Sistemas de almacenamientoEn el apartamento se instalaron un ropero y un almacén, y se optó por no usar armarios de vestir ni estanterías abiertas. Una amiga de la dueña ayudó con una solución eficiente de almacenamiento.

MuebleLas ideas para seleccionar y colocar muebles fueron obtenidas por Tatiana desde sitios web, revistas y proyectos de diseño completos.

La verdadera joya del interior puede considerarse los extraordinarios candelabros en forma de rinoceronte colocados a ambos lados de la cama.

El conjunto de cocina se compró en una marca belorrusa del segmento económico, y el cómodín de IKEA en la entrada se pintó y se equipó con nuevos pernos.


Need a renovation specialist?
Find verified professionals for any repair or construction job. Post your request and get offers from local experts.
You may also like

Principales tendencias en el diseño de baños en 2022

Cómo hacer que un interior parezca más caro: consejos simples de un diseñador arquitecto

Cómo se transformó una mansarda en un dormitorio detallado hasta el más mínimo detalle

5 geniales ideas para decorar un apartamento con remodelación del desarrollador
Más artículos:
Principales tendencias en el diseño de baños en 2022
Cómo hacer que un interior parezca más caro: consejos simples de un diseñador arquitecto
Cómo se transformó una mansarda en un dormitorio detallado hasta el más mínimo detalle
5 geniales ideas para decorar un apartamento con remodelación del desarrollador
Espacio y minimalismo en decoración: hermosa casa de un piso de 100 m²
Micrococina de 4,5 m² en un krushchevka: decorada con estilo y bajo presupuesto
Estilo blanco y elegante en la renovación de una cocina-comedor antigua (fotos antes y después)
Asombroso interior sueco que se sumerge en la vegetación y los colores