Cómo transformar una aburrida apartamento estaliniano de 62 m² en una moderna y luminosa vivienda
En esta vivienda de 62 m² era necesario no solo organizar todo lo esencial, sino también estilizar el espacio. La diseñadora Marina Mereñkova mantuvo el parqué, la decoración y los altos techos, pero logró convertir el apartamento aburrido y viejo en uno luminoso y moderno.
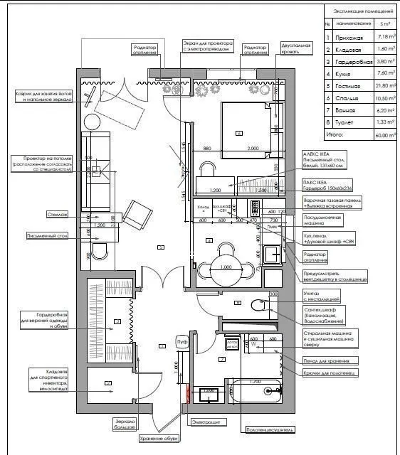
LUGAR: MoscúMETRAJE: 62 m²HABITACIONES: 2Baños: 1ALTURA DE LOS TECHOS: 2,95 mPRESUPUESTO: hasta 3 millones de rublosDISEÑO: Marina MereñkovaPlanificación
La distribución original no se diferenciaba de la típica «estaliniana»: una cocina pequeña con entrada estrecha y un gran salón sombrío. La diseñadora dejó la cocina con ventana en su lugar anterior y también implementó una habitación cómoda, un armario y una sala de estar con zonas para cine, yoga y trabajo.

En la cocina se colocó una puerta con vidrio templado y un mueble sin cajones superiores de un lado. Esto visualmente amplía y despeja el espacio.
RevestimientoLas paredes de la vivienda se pintaron con pintura en todas partes, excepto en el baño, donde se colocó cerámica Terrazzo y azulejos. El techo del baño fue hecho de color negro, lo que añadió intimidad a la decoración.
La cocina clara se complementó con un azulejo de piso con estampado.



Muebles y decoraciónEl espacio se enriqueció con notas étnicas: colgaron carteles con plantas, macramé con elementos trenzados y máscaras coleccionables de África.

La entrada se decoró con una caja para botas, un cojín y una composición de pósters.
Need a renovation specialist?
Find verified professionals for any repair or construction job. Post your request and get offers from local experts.
You may also like
Más artículos:
8 consejos para decorar el baño y reducir la limpieza
Diseñadores transformaron una vivienda de 38 m² en un espacio artístico
Cómo decorar una cocina mini: 5 increíbles ejemplos
Principales tendencias en el diseño de baños en 2022
Cómo hacer que un interior parezca más caro: consejos simples de un diseñador arquitecto
Cómo se transformó una mansarda en un dormitorio detallado hasta el más mínimo detalle
5 geniales ideas para decorar un apartamento con remodelación del desarrollador
Espacio y minimalismo en decoración: hermosa casa de un piso de 100 m²