Tomamos una monòmodo de 28 m² en un estado terrible y le regalamos una nueva vida
A primera vista puede parecer que esto no es una monòmodo en un bloque de estilo Khrushchev, sino una habitación pequeña en un hotel. Todo gracias al diseño armonioso de Daria Nazarenko, quien logró crear un interior acogedor y económico con acentos llamativos.
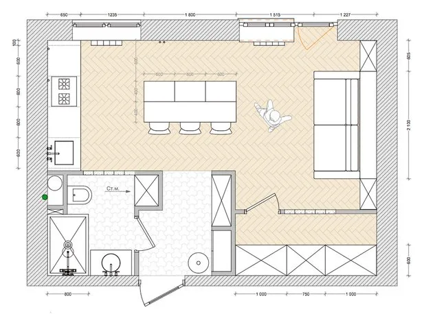
Contamos cómo en 28 metros cuadrados se colocaron la sala de estar, dormitorio, cocina y zona de vida.
ReplanificaciónEl pequeño apartamento moscovita cerca de la estación de metro Aeropuerto inicialmente tenía una forma alargada a lo largo del frente. Esto permitió combinar la cocina con la sala de estar y colocarlas en la zona mejor iluminada.
Durante la reforma se retiró la pared entre la habitación principal y la cocina, y el vestíbulo se separó con una divisoria. Gracias al pasillo se amplió el baño, instalando un armario y una lavadora.



RevestimientoLas paredes fueron recubiertas con pintura lavable, y en el suelo se colocó parqué hecho de placas de colores diferentes. El vestíbulo y el baño se decoraron con cerámica granítica con imitación de mármol de un fabricante económico Kerama Marazzi.


Las paredes de bloques de vidrio reflejan bien la luz y crean una iluminación natural suave, lo que reduce los gastos eléctricos.
Las tonalidades blanca y grafito resaltan la geometría del espacio y ofrecen oportunidad para usar tonos contrastantes en el decorado. Por ejemplo, el delantal de cocina naranja combina perfectamente con el sofá esmeralda.

Almacenamiento y mobiliarioLa mayor parte de las cosas se guardan en el armario, lo demás puede colocarse en un armario con dormitorio transformable — tiene muchas estanterías para diversos artículos de decoración y ropa.


La mayor parte de la mobiliario es incorporado, por lo que el apartamento se siente muy espacioso. Las unidades de almacenamiento, el armario de cocina, la cómoda y la mesa auxiliar fueron compradas en IKEA, lo que permitió ajustarse al presupuesto limitado.


La joya del apartamento fue un módulo transformable integrado en una nicho de la marca rusa Olissys. Durante el día actúa como sofá + sistema de almacenamiento, y por la noche como cama individual. Para pequeños estudios este tipo de solución merece considerarse óptima.





Need a renovation specialist?
Find verified professionals for any repair or construction job. Post your request and get offers from local experts.
You may also like
Más artículos:
Aún no es tarde: 7 cosas que debes hacer en diciembre
«Y simplemente así» — la serie donde solo destacan los interiores
Cómo crear una pared destacada: 8 ejemplos de expertos
5 buenas libros sobre cómo hacer que tu casa sea bonita y acogedora (¡captura ideas para regalo!)
6 ideas geniales de envoltura de regalos navideños de TikTok
Estrellas brillantes y caramelos: cómo los bloggers decoraron sus casas para Año Nuevo
Principales tendencias en la decoración de interiores de apartamentos en 2022
Despejamos: 7 cosas que no deberían estar en tu cocina este año