Cómo aumentar legalmente el área de la cocina: analizamos con un ejemplo
A los propietarios de cocina con balcón es obligatorio leer
¿Cómo luce una cocina estándar? Una mesa, un conjunto de cocina, a veces una microondas u otro electrodoméstico. Para diversificar presupuestariamente la parte más importante del apartamento, se puede seguir el ejemplo de la estudio «DA-Diseño» en Surgut.
Miremos qué ideas interesantes idearon.
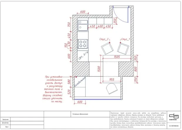
Replanificación
En primer lugar, se decidió cambiar la distribución original e incluir el balcón en la zona de cocina. Esto permitió aumentar significativamente el área del espacio y añadirle funcionalidad de inmediato.

Ahora la utillería básica se almacena en los compartimentos inferiores del conjunto de cocina, y el refrigerador y otros armarios se colocan en el balcón. La mesa para el almuerzo se compensa con una barra de bar con sillas de IKEA — esta última fue recreada a partir del antepecho.
Diseño: «DA-Diseño»
Diseño: «DA-Diseño»Revestimiento
La decoración de la cocina se planificó parcialmente desde cero y parcialmente basada en elementos ya existentes. Por ejemplo, se mantuvo el mismo suelo y la puerta entre habitaciones, mientras que el resto del espacio se decoró con tablas de roble y azulejos tipo «caballo». Visualmente, la atmósfera se volvió más aireada y fresca.
Diseño: «DA-Diseño»Paleta de colores
Aunque la paleta de colores general resultó bastante neutra, los diseñadores añadieron unos pocos acentos vibrantes. Colgaron una pizarra de carbón, posters grandes y relojes decorativos, además de complementar el decorado con macetas con plantas verdes. Gracias a ello, la cocina se volvió espaciosa y viva — en ella no solo se quiere cocinar, sino también descansar.
Diseño: «DA-Diseño»
Diseño: «DA-Diseño»
Diseño: «DA-Diseño»Need a renovation specialist?
Find verified professionals for any repair or construction job. Post your request and get offers from local experts.
You may also like
Más artículos:
Cómo crear un interior cómodo en 2022: 7 principales tendencias de expertos
Regalos que quieres dar: las 10 mejores opciones de IKEA
Cómo decorar una pared vacía: 10 super soluciones de diseñadores
Mínimo de adornos y estilo escandinavo: qué árboles de Navidad eligieron los bloggers
Diseño de interiores brillante sin diseñador: ideas geniales y errores fastidiosos
Cómo elegir una chimenea para el apartamento: todo lo que no te contarán en la tienda
De una acogedora y muy bonita habitación individual se hizo un confortable apartamento de dos habitaciones
Miniestudio de 29 m² que provocó opiniones polémicas sobre belleza y comodidad