3 microbaños de menos de 4 m² sin elementos innecesarios
¿En qué radica su comodidad?
Hoy te contamos sobre tres interesantes baños en los más comunes espacios reducidos. ¿Cómo lograron los diseñadores incluir todo lo necesario para una vida cómoda y funcional en un área menor a 4 m²? Algunos de estos baños ni siquiera llegan a los tres metros cuadrados. Mira y toma prestadas las ideas y diseños que más te gusten.
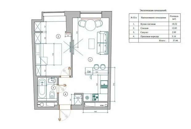
1. Baño de 2,93 m² en una pequeña dúplex
Para ahorrar espacio valioso en este diminuto baño, el diseñador Anna Maximova utilizó paredes blancas y sanitarios. Un espejo gráfico y una cómoda azul espaciosa hicieron el espacio más expresivo. En este baño no hay nada innecesario, pero es completamente funcional y cómodo para la vida de su dueña. Un interior clásico agradable refuerza el tema general de la vivienda.



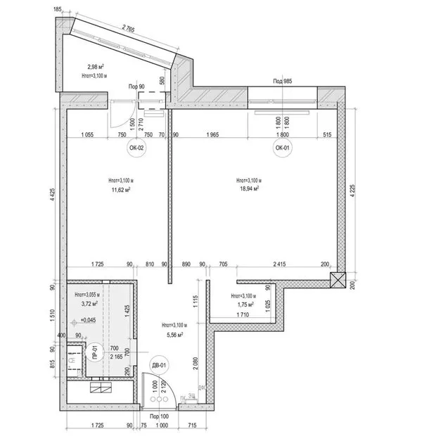
2. Baño para familia con niños
En esta vivienda, el baño compartido de 3,72 m² fue dividido en sala de baño y WC – una solución conveniente al tener niños.


La diseñadora Svetlana Krasnova decoró la habitación de baño con simplicidad pero buen gusto. El suelo, la pantalla de la bañera y tres paredes están cubiertas con azulejos de cerámica de varios formatos de color claro. Debajo de la bañera se ha instalado una escotilla oculta para almacenar productos químicos domésticos y acceder a las instalaciones. La pared alrededor de la puerta está recubierta con una pintura resistente a la humedad de tono amarillo cálido.

Al lado del lavabo se colocó un estante angosto y espacioso. En la parte cerrada se guardan productos químicos domésticos, mientras que los estantes abiertos están destinados a textiles y decoración.

Las cortinas, toallas y alfombra de colores azules y amarillos añaden vibrantes tonos a este interior claro. El espejo del baño también tiene una marco funcional en forma de estante.

El inodoro colgante con instalación en el cuarto de baño y la cerámica blanca en las paredes y suelo también hacen que el espacio parezca más amplio. Esta es una excelente solución para facilitar la limpieza. Para comodidad, el WC cuenta con una ducha higiénica. Como elemento decorativo destacado, una pintura en la pared que oculta la escotilla.
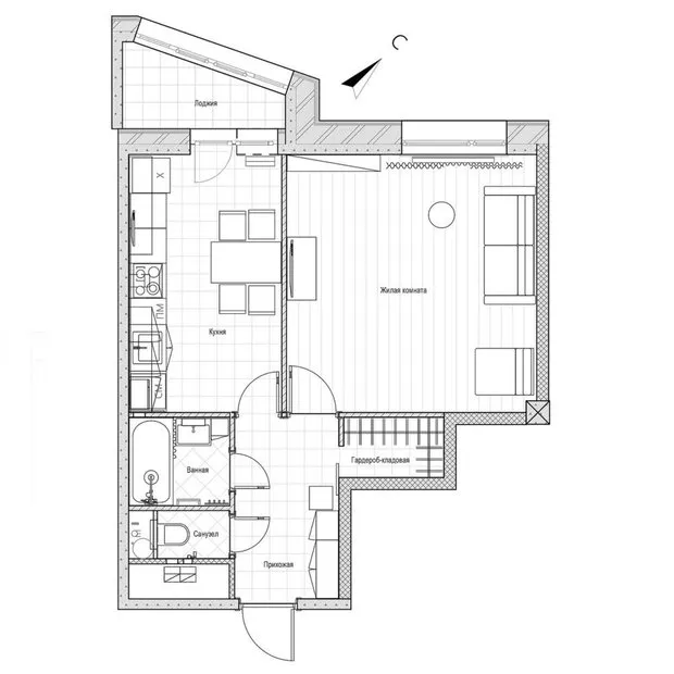
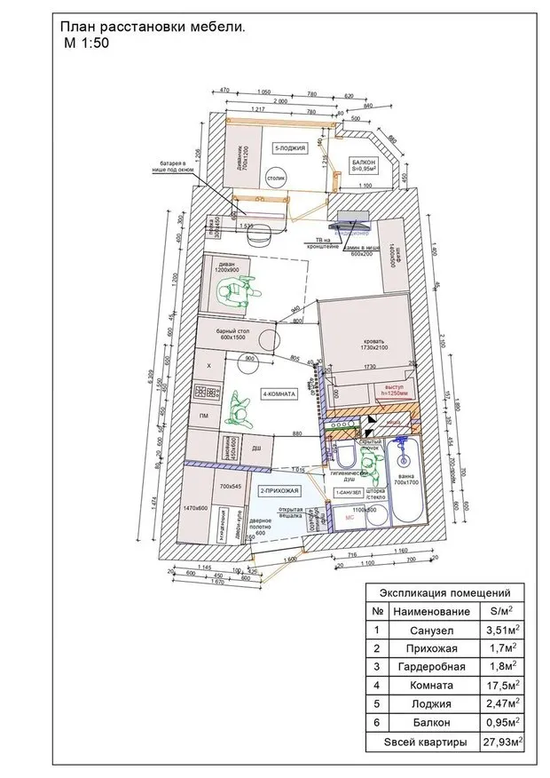
3. Baño de 3,51 m² en una pequeña estúdio
La diseñadora Dina Udaltsova no optó por dividir el pequeño baño compartido. Para añadir funcionalidad a este espacio reducido, colocó el almacenamiento principal en una tumbona debajo del lavabo. Allí también instaló la lavadora.


En la habitación de baño cabía una bañera completa de 1,7 m, sobre la cual el diseñador colocó un secador de ropa para evitar ocupar espacio vital. La bañera está cubierta con ceramogranito en la parte inferior y se ha previsto una ranura para los pies que también está iluminada adicionalmente. En lugar de cortinas, se utiliza una estructura corredera con marcos metálicos decorativos.
Dentro de la zona de ducha, el diseñador previó estantes funcionales en la nicho, resaltados con mosaico y iluminación.
También se decidió usar un espejo con iluminación integrada para no saturar el espacio con lámparas separadas.


Need a renovation specialist?
Find verified professionals for any repair or construction job. Post your request and get offers from local experts.
You may also like
Más artículos:
Cómo elegir textil y decoración para la cocina sin arruinar el diseño
Cómo hacer que una entrada sea cómoda y elegante: consejos invaluables de un arquitecto
Almacenamiento en una habitación: 6 ideas funcionales
Baño de 6 m² presupuestario pero muy elegante hecho por uno mismo
Una cocina elegante por 63 mil rublos con muebles de IKEA
Cómo elegir la paleta de colores para el interior: 10 consejos útiles
¿En qué se pudo ahorrar? Reparación de una estalinca de 53 m² por 700 mil rublos
¿Cómo elegir una bañera para no arrepentirse después?: 5 consejos