Diseño de una huésped de tres habitaciones: planificación y realidad
Examinemos los tipos de distribución de apartamentos de tres habitaciones tipo Khrushchyovka. Existen varios tipos de distribución de apartamentos de tres habitaciones tipo Khrushchyovka. La menor superficie de estos es de 44 m², - reconozca que eso también es poco para un apartamento de dos habitaciones, y mucho menos para una casa de madera. La mayor Khrushchyovka es de 60 m².
Examinemos los tipos de distribución de apartamentos de tres habitaciones tipo Khrushchyovka
Existen varios tipos de distribución de apartamentos de tres habitaciones tipo Khrushchyovka. La menor superficie de estos es de 44 m², - reconozca que eso también es poco para un apartamento de dos habitaciones, y mucho menos para una casa de madera. La mayor Khrushchyovka es de 60 m². Por cierto, esta opción es la más favorable: tanto desde el punto de vista de una superficie suficiente para vivir en familia, como desde el punto de vista de la disposición de las habitaciones.
En cuanto a los otros tres tipos de distribución, probablemente los arquitectos que los desarrollaron se burlaron cruelmente de cientos de miles de sus conciudadanos colocándolos en habitaciones pasillos.

Foto 1 — Distribución de una huésped de tres habitaciones con 44, 32 y 5,5 m² (‘abierta’)
La primera y más pequeña distribución, en esencia, es la misma huésped de dos habitaciones tipo Khrushchyovka-“libro”, solo que una de las habitaciones está dividida en dos. Realizar una reorganización en este caso prácticamente es imposible. Una de las opciones más seguras es combinar la cocina con la sala de comedor, y desde allí abrir salidas a dos pequeñas habitaciones dormitorio.

Foto 2 — Distribución de una huésped de tres habitaciones con 54, 43 y 5,8 m² (‘libro’)
La segunda variante de distribución desde una huésped de dos habitaciones tipo Khrushchyovka-“libro” tampoco difiere mucho: la misma disposición de las habitaciones más una habitación adicional.
La reorganización es posible al dividir todas las habitaciones con pérdidas significativas de superficie.

Foto 3 — Distribución de una huésped de tres habitaciones con 54, 49 y 5,5 m² (‘tranvía’)
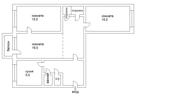
La tercera variante es más tolerable para vivir en tres o incluso cuatro personas. Se puede mejorar la distribución colocando una pared de yeso cartón a lo largo de la línea punteada y dividiendo así las entradas a todas las habitaciones del apartamento. También puede ser fácilmente eliminada la habitación de almacenamiento, colocando en su lugar un armario empotrado tipo closet.

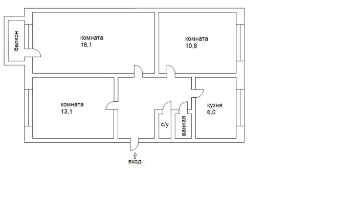
Foto 4 — La distribución más conveniente de una huésped de tres habitaciones con 60, 43 y 6 m²
La cuarta variante de distribución es la más "divina" en relación con las personas que viven en Khrushchyovka: todas las habitaciones son separadas, no se requiere reorganización, salvo que desee ampliar la cocina de 6 metros para hacer una sala de comedor combinada.
Diseño de una huésped de tres habitaciones

Foto 5 — Desde una Khrushchyovka - una amplia estudio

Foto 6 — Interiores de una cocina pequeña en una Khrushchyovka angular

Foto 7 — Sala de estar

Foto 8 — Área de trabajo en el balcón abierto

Foto 9 — La pared entre la cocina y la sala de estar se eliminó parcialmente resolviendo el problema de la reducción del espacio en la cocina Khrushchyovka

Foto 10 — El pasillo estrecho y largo se mejora con una superficie espejo del armario tipo closet y brillo en la decoración del techo

Foto 11 — Puertas correderas en el interior del pasillo estrecho se abren a las habitaciones sin bloquear el paso de otros residentes del apartamento

Foto 12 — Un baño compacto, instalado en lugar de la bañera, permitió colocar una lavadora en el área liberada
Need a renovation specialist?
Find verified professionals for any repair or construction job. Post your request and get offers from local experts.
You may also like
Más artículos:
¿Diseño de dormitorio blanco? Explorando otras opciones
Ideas de diseño de dormitorio. Elige tu estilo único
Diseño de armarios para dormitorio
Diseño de dormitorio estrecho y muy estrecho
Diseño de paredes en dormitorio: desde la decoración hasta el estilo
Diseño de dormitorio de pequeño tamaño hecho con mis propias manos
Diseño de dormitorio en línea. Toma el control con tus propias manos
Diseños de dormitorio en estilo clásico y más