Cozy Loft Apartments in Old Warehouse Building in London21 photos
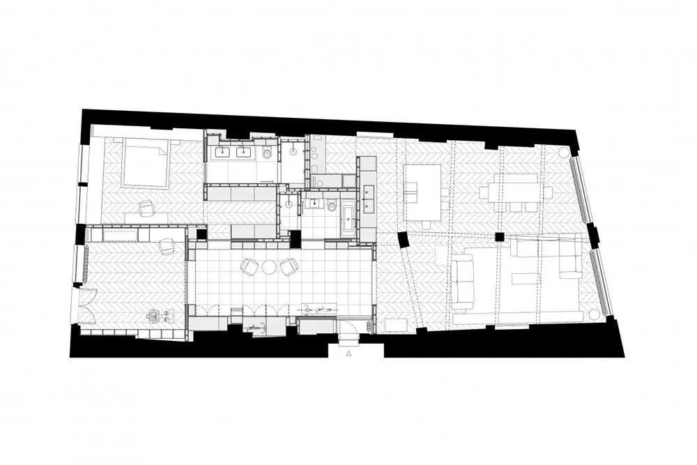
Studio Emil Eve seamlessly integrated modern design into the rough industrial spaces of a historic warehouse in London.





















Need a renovation specialist?
Find verified professionals for any repair or construction job. Post your request and get offers from local experts.
More photo collections
More Galleries
Warm and Elegant Townhouse Interior in London
Vibrant Modern Ambiance in a Traditional Colonial Home for a Family in Washington
Warm and Cozy Christmas Interior in Southern Spain
Nice small apartment with bedroom behind glass (46 sqm)
Cozy modern interiors of 1940s villa with pond view in Sweden
Stylish Apartment in Stockholm with Plaster and Industrial Elements (53 sqm)
Bright and Gentle Interior of Architect Eva-Marie Prineas's House in Sydney
Bright and cozy attic apartment in Sweden with pastel accents in decor