Green Walls and Floral Wallpaper: Updated Apartments in the Center of Milan18 photos
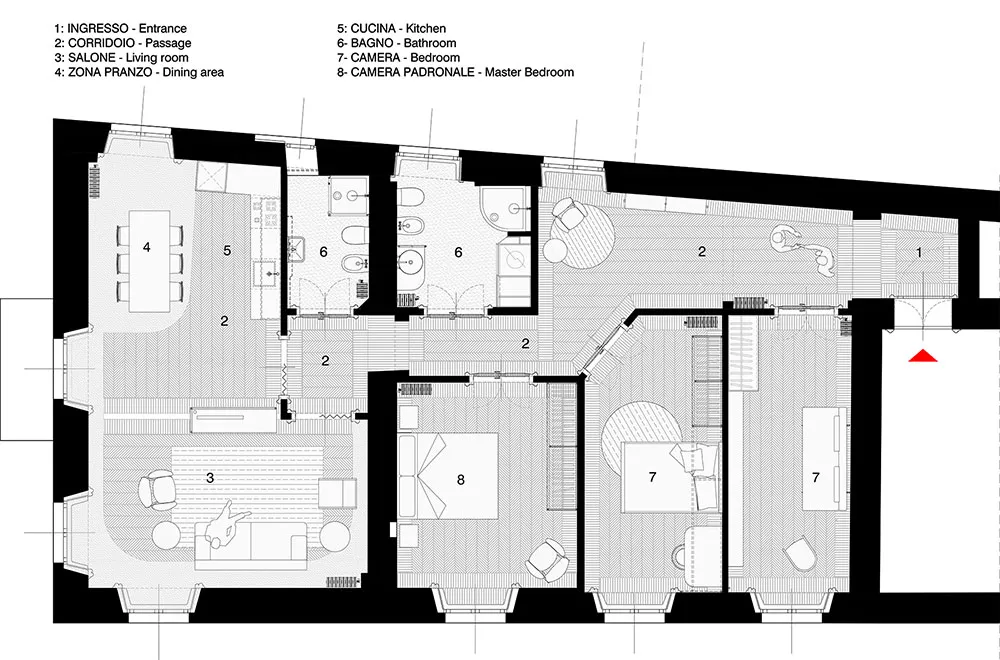
The view from the windows of this apartment in a historic building in the center of Milan influenced the interior design.


















Need a renovation specialist?
Find verified professionals for any repair or construction job. Post your request and get offers from local experts.
More photo collections
More Galleries
For lovers of gray walls: budget apartment in Sweden (54 sq. m)
Warm Natural Minimalism in Scotland
Floor-to-Ceiling Windows and Panoramic Garden Views: Luxury Modern Apartment in Kyiv
Budget and Monochrome: Small 2-Room Apartment in Stockholm (46 sqm)
Unique Neoclassical Manor House in Sweden
Flawless Traditional Interior: New House in Colorado
Home of a Clothing Designer's Family in Copenhagen Suburbs
Bright and Fresh: Holiday Interior of a Decorator's Family in Copenhagen