Villa Air by ARK-architecture: A Contemporary Moroccan Style Icon in Tunisia
Bold Statement of Contemporary Architecture in Tunisia
Villa Air by ARK-architecture represents an outstanding architectural monument located among the hills of Morneg in Tunisia. Completed in 2024, this 1500 square meter residence redefines contemporary Moroccan design through its sculptural form, refined materials, and deep respect for the natural environment.
Situated on two hectares of sloping terrain, the villa gains visual strength through its orientation toward the Jebel Er Ras mountain range, creating an inseparable bond between architecture and landscape. Rather than dominating the land, the architecture submits to it—softly emerging as a geological form shaped by time and climate.
Floaty Forms and Protruding Geometry
The villa's composition is defined by a powerful architectural duality: weight versus lift. This concept manifests in the rhythm of horizontal planes and protruding volumes—some as thin as 45 cm, extending gracefully over the landscape.
These bold projections are not only aesthetically expressive but also ecologically adapted. Their shadows reduce solar heat, demonstrating a balance between innovative design and passive climate strategies. Each structural element contributes to the sense of weightlessness, reinforcing the villa's name—Air.
Architecture as a Lens for Nature
The central idea of the villa is that architecture should frame nature, not fight against it. Each facade surface features precisely positioned openings that transform the surrounding landscape into a dynamic series of living pictures. Every direction is oriented to improve solar control and maximize views, providing changing perspectives throughout the day.
Inside, spaces are designed with smooth continuity. Movement zones are elevated into architectural pedestrian areas, connecting double-height spaces that draw light deep inside. Rather than isolated rooms, the interior flows organically—blurring boundaries between private and communal spaces.
Material Language Rooted in Context
The materials chosen for Villa Air are respectful of its location. Clean white volumes absorb and reflect the sunlight of Tunisia, while travertine and warm wooden finishes add tactile softness. Concrete painted in earth tones reinforces the structure within context, strengthening a sense of durability.
This minimalist yet sensory palette supports monotone harmony with the landscape. Textures and tones inside and out remain consistent—enhancing the architectural clarity of the villa.
Synergy Between Interior and Exterior Spaces with Endless Horizons
One of the most poetic features of Villa Air is its seamless integration of interior and exterior living. Terraces and open platforms extend the housing space outward, softening the boundaries between enclosed and open areas.
Two infinity pools stretch toward the horizon, reflecting the sky, intensifying the sensation of architectural suspension. These water elements act as design anchors and emotional touchpoints—mirroring quiet luxury and meditative tranquility of the villa.
A New Standard for Luxury Villas in Tunisia
Villa Air by ARK-architecture is more than just a house—it's a conceptual manifesto of contemporary Moroccan architecture. Its clean lines, structural boldness, and elementary elegance make it one of the most ambitious architectural projects in Tunisia today.
This residence demonstrates a broader movement in North African architecture where design no longer imitates global trends but responds meaningfully to place, climate, and culture.

Photo © Bilal Hemahem
Photo © Bilal Hemahem
Photo © Bilal Hemahem
Photo © Bilal Hemahem
Photo © Bilal Hemahem
Photo © Bilal Hemahem
Photo © Bilal Hemahem
Photo © Bilal Hemahem
Photo © Bilal Hemahem
Photo © Bilal Hemahem
Photo © Bilal Hemahem
Photo © Bilal Hemahem
Photo © Bilal Hemahem
Photo © Bilal Hemahem
Photo © Bilal Hemahem
Photo © Bilal Hemahem
Photo © Bilal Hemahem
Photo © Bilal Hemahem
Photo © Bilal Hemahem
Photo © Bilal Hemahem
Photo © Bilal Hemahem
Photo © Bilal Hemahem
Photo © Bilal Hemahem
Photo © Bilal Hemahem
Photo © Bilal Hemahem
Photo © Bilal Hemahem
Photo © Bilal Hemahem
Photo © Bilal Hemahem
Photo © Bilal Hemahem
Photo © Bilal Hemahem
Photo © Bilal Hemahem
Photo © Bilal Hemahem
Western and Southern Facades
Eastern Facade and Section
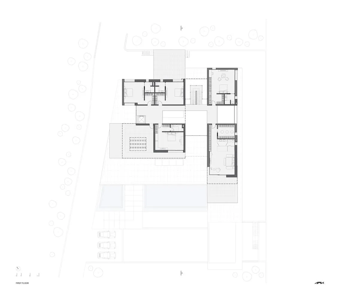
First Floor Plan
First Level Plan
Basement PlanNeed a renovation specialist?
Find verified professionals for any repair or construction job. Post your request and get offers from local experts.
You may also like
More articles:
Develop Creativity: DIY Patriotic Garland for an Amazing July 4th Celebration
Unleash Your Creative Potential with These 13 DIY Planter Ideas
Unveiling the Magic of Striped Walls and Creating an Engaging Space
Unlock the Power of Your Home Equity: Calculator Explained
Unveiling the Secrets of a Luxurious Guest Bedroom
Unleashing Potential: Benefits of Real Estate Education for Interior Design and Architecture Industries
Entertainment for Family: How to Choose the Perfect Place for Relaxation
Uncover the Secrets of Well-Designed Rooms