Ripple House by Atlas Architects: Sculptural Home in Glen Iris
The Ripple House by Atlas Architects in Glen Iris is a sculptural home for life that redefines urban living. Created using smooth curves, sustainable solutions and accessibility as its main principle, this home reflects a vision of time and adaptive architecture. More than just an expressive form, the Ripple House embodies principles of long-lasting comfort, low maintenance and harmony between architecture and lifestyle.
Project Overview
Situated in the eastern suburb of Melbourne, Glen Iris, the Ripple House was designed as a permanent residence for a couple preparing for the next stage of life. The design emphasized three key aspects:
- Accessibility: Layout allowing life in the house without needing reconfiguration.
- Low Maintenance: Materials and finishes allowing minimal upkeep.
- Sculptural Identity: Bold, expressive design that sets the house apart from typical suburban buildings.
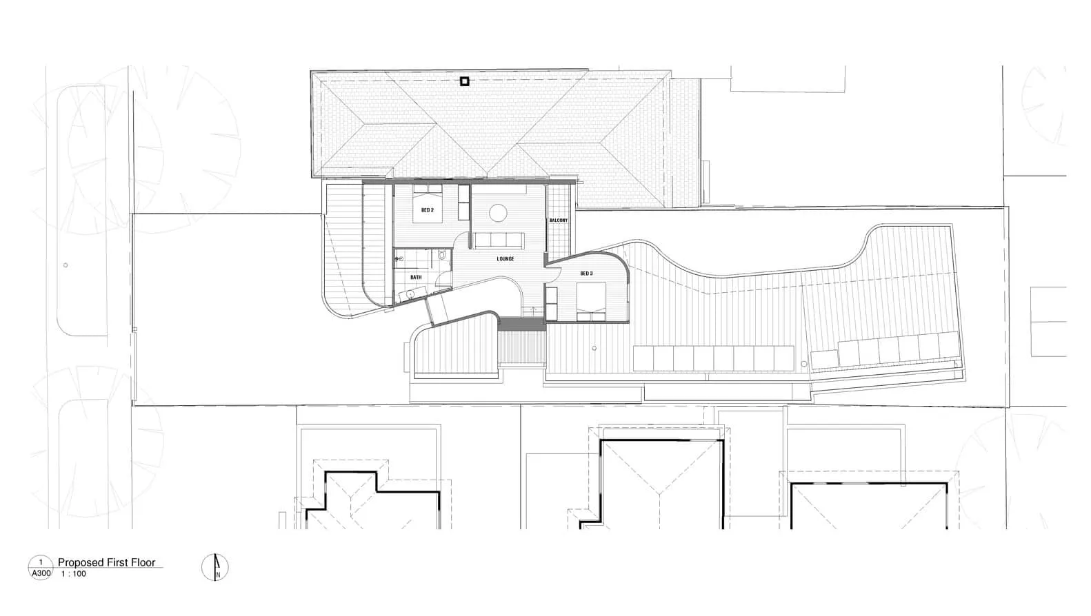
The home occupies 303 m² across two levels, with all main areas located on the first floor. Secondary spaces and guest areas are situated upstairs, providing flexibility without compromising accessibility.
Design Concept and Spatial Strategy
Sculptural Language
The distinctive feature of the Ripple House is its wavy architectural form. Rather than adhering to straight-line suburban typologies, architects used smooth curves that frame the facade and shape the interior. These gentle lines guide the eye, create a sense of movement, and make the house unique among neighbors.
Central Courtyard
The project centers around a north-facing courtyard that fills the interiors with natural light and improves fresh air circulation. This feature eliminates dark corridors and ensures all spaces feel connected to the outside world.
Aging-in-Place Approach
Clients envisioned the Ripple House as their permanent home. In response, Atlas Architects placed all key zones—kitchen, dining room, living room and bedroom—on the first floor. The upper level is designated for guests, future caregivers or flexible family needs, allowing the house to evolve gradually over time.
Materials, Facade and Details
Exterior Palette
The Ripple House combines bold form with a restrained material color palette. The first floor is based on light brick, providing strength and visual support. Above it, a curved profiled steel cladding forms a sculptural "wave" that defines the house's appearance. Vertical aluminum battens complete the composition, creating rhythmic shadows that change throughout the day.
Interior Continuity
Inside, the material palette continues with concrete flooring, wooden accents and soft neutral tones. Curved ceilings and inserts echo the external curves, creating a smooth transition between interior and exterior spaces. The result is a calm, harmonious atmosphere where every detail has intention.
Low Maintenance
All materials were selected for durability and minimal upkeep. Brick, metal and aluminum ensure the home ages with little intervention, reflecting owners' desire for a "zero maintenance" house.
Interior Space and Interaction
Entrance and Movement
Visitors enter a double-height space that immediately creates a sense of openness and light. Movement flows around the central courtyard, where curved walls and ceilings guide passage naturally.
Living Room and Kitchen
The main space opens directly onto the courtyard through full-size sliding glass doors. This seamless connection breaks down the boundary between interior and exterior space. The sculptural kitchen island serves as the heart of the open area, reflecting the house's curved aesthetic.
Private Areas
The bedroom is located on the first floor, ensuring accessibility. The bathroom features a curved, tactile and cozy shower niche. Secondary bedrooms and multi-functional spaces on the upper floor provide privacy and flexibility without disrupting the main living space.
Sustainability and Innovation
The Ripple House combines high-efficiency strategies with design:
- Passive Solar Design: Orientation maximizes winter sun, while deep eaves reduce summer heat.
- Cross Ventilation: The courtyard facilitates natural airflow, reducing reliance on mechanical cooling.
- High-Performance Glazing: Double glazing improves thermal insulation and comfort.
- Solar Energy: Solar panels on the roof enhance energy efficiency.
- Durable Materials: Brick, profiled steel and aluminum ensure long life with minimal maintenance.
Integrating sustainability with form makes the Ripple House more than a typical suburban building.
Planning Challenges and Solutions
Construction in Glen Iris required strict adherence to planning rules concerning shading, setbacks and neighborhood character. Atlas Architects addressed this as follows:
- Modular Massing: The curved facade reduces volume while maintaining a bold form.
- Responsive Setbacks: The project respects neighbors' privacy and light access.
- Architectural Elements: Shadows, textures and curved surfaces reduce scale, making the house expressive and context-sensitive.
This careful balance between regulation and creativity allowed the Ripple House to stand out without compromising its surroundings.
Unique Value and Lessons
What sets the Ripple House apart is its ability to combine art and practicality. While many homes focus solely on appearance or functionality, Ripple balances both:
- Sculptural beauty enhancing identity
- Accessibility supporting long-term living
- Sustainability ensuring future resilience
For suburban architecture, the Ripple House demonstrates that bold design need not compromise functionality. It offers a model of how modern homes can adapt to changing lifestyles while maintaining inspiring form and details.
The Ripple House by Atlas Architects is more than just housing. It's a blueprint for future urban living. With sculptural curves, universal accessibility and sustainable strategies, it offers a home that is both practical and inspiring. By solving issues of aging, maintenance and suburban limitations, the Ripple House becomes a benchmark for contemporary Australian architecture.
Photos © Tess Kelly
Photos © Tess Kelly
Photos © Tess Kelly
Photos © Tess Kelly
Photos © Tess Kelly
Photos © Tess Kelly
Photos © Tess Kelly
Photos © Tess Kelly
Photos © Tess Kelly
Photos © Tess Kelly
Photos © Tess Kelly
Photos © Tess Kelly
Photos © Tess Kelly
Photos © Tess Kelly
Photos © Tess Kelly
Photos © Tess Kelly
Photos © Tess Kelly
Photos © Tess Kelly
Photos © Tess Kelly
Photos © Tess Kelly
Photos © Tess Kelly
Photos © Tess Kelly
Photos © Tess Kelly

Need a renovation specialist?
Find verified professionals for any repair or construction job. Post your request and get offers from local experts.
You may also like
More articles:
Reasons Why Roof Maintenance Should Not Be Ignored
Reasons to Consider a Custom-Built Home
Reasons to Complete Home Renovation
Red Bathrooms That Combine Brightness and Luxury
Redefine Your Space with Industrial Style
Redefine Your Space with Wall Panels for a Cozy Interior
Redefine Christmas Comfort with Nordic Living Room Décor
Transform Your Bathroom Aesthetics with a Set of Soft Towels