Europarität 46 m² mit trendiger Einrichtung
In dieser Wohnung ist es hell, funktional und gemütlich
Designerin Anastasia Zarqua gestaltete eine Europarität von 46 qm für einen IT-Experten, der sich für Autos begeistert. Es war wichtig, einen funktionalen Interieur mit sorgfältig geplanten Aufbewahrungslösungen zu schaffen, sowie Posters zu Auto-Themen zu platzieren. Ansonsten ließ der Kunde dem Designer vollständige kreative Freiheit. Wir erzählen, was daraus entstand.
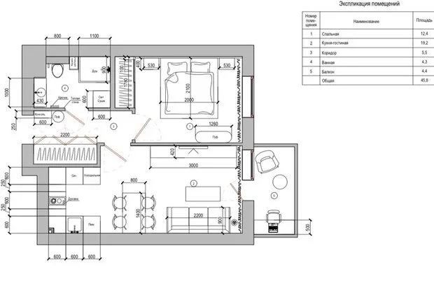
Grundriss
In der Wohnung liegt ein Standard-Grundriss für eine Europarität vor: Gemeinsame Küche und Wohnzimmer sowie eine isolierte Schlafzimmertür. Für die Aufbewahrung sind zwei eingebaute Schränke vorgesehen. Die Waschmaschine wurde im Badezimmer untergebracht – hierfür wurde anstelle der Badewanne eine Dusche installiert.

Küche-Wohnzimmer
Die Küche wurde auf Maß angefertigt, alle Geräte sind eingebaut. Das Küchenmodul ist klein, der Designer platzierte es in eine Ecke. In den unteren Modulen gibt es nicht viel Aufbewahrungsmöglichkeit, hauptsächlich sind sie oben angeordnet.
Die Küche wurde von der Esskammer und dem Wohnzimmer durch einen Bodenbelag getrennt.Für die Wandverkleidung wählte man dekorative Mörtel mit Betonoptik, er ist hell und sieht modern aus.



Für die Aufbewahrung im TV-Bereich wurde eine Konstruktion aus IKEA-Modulen aufgebaut. Funktional und bequem.


Auf der Balkonfläche, die an das Wohnzimmer grenzt, wurde eine Entspannungszone eingerichtet.

Schlafzimmer
In der Schlafzimmertür war nur eine einzige Lösung möglich, ein aufklappender Schrank dort war nicht machbar, deshalb wurde entschieden, einen Kleiderschrank zu machen.

Für die Verkleidung wurde eine ungewöhnliche Materialkombination gewählt: Die Wand hinter dem Kopfteil wurde mit Keramogranit und reliefierten Panels dekoriert.



Hall
In der Eingangshalle wurde ein spiegelnder Schrank installiert, damit in ihm die dekorative Mörteloptik reflektiert wird. Auch ist es praktisch, vor dem Verlassen des Hauses darin zu sehen.


Badezimmer
Für die Verkleidung des Badezimmers wählte man dieselbe Fliese wie im Eingangsbereich und in der Küche. Ein Akzentorange-Fliese wurde auf dem Sanitärbereich und in der Dusche hinzugefügt. Die Beschläge wurden kontrastfarbig schwarz gewählt.



Fotograf: Maxim Maximov
Stilistin: Natalia Oreshkova
Marken, die im Projekt vorkommen
Küche-Wohnzimmer
Verkleidung: Farbe, Swiss Lake; Fliese, Italon
Bodenbelag: Ingenieursdiele, Finex; Keramogranit, Stracciatella
Möbel: Konsolentisch und TV-Bereich, IKEA
Textilien und Dekor: Teppich, IKEA
Badezimmer
Verkleidung: Fliese, 41zero42; Keramogranit, Stracciatella
Möbel: Schrank, IKEA
Beschläge: Am. Pm
Schlafzimmer
Verkleidung: Relief-Panels, Orac decor; Keramogranit, Italon
Bodenbelag: Ingenieursdiele, Finex
Textilien und Dekor: Vorhänge, Irina Rusakova
Möchten Sie, dass Ihr Projekt auf unserer Website veröffentlicht wird? Senden Sie Fotos des Interieurs an wow@inmyroom.ru
Need a renovation specialist?
Find verified professionals for any repair or construction job. Post your request and get offers from local experts.
You may also like
Weitere Artikel:
Wie Sie günstig eine Wohnung in einer Woche renovieren: 9 Tipps + Fotos vorher und nachher
5 Ideen, wie man einen WOW-Interieur gestaltet
2-Zimmer-Wohnung 64 m² mit wunderbarer Aussicht auf die Moskau-Fluss
Budgetküche mit stilvollem Schürzen und Spiegelkühlschrank für 4.000 Rubel
Vor und nach: Wie eine typische Einzimmerwohnung in einem Panelhaus verwandelt wurde
Traumappartement 74 m² in ruhigen, hellen Tönen
Für Küche und mehr: Tische und Stühle von IKEA
10 coole Produkte von IKEA für Ihr Schlafzimmer