Wie man das Maximum aus einer Kleinstwohnung herausholt: Beispiel einer Petersburger Einzimmerwohnung
Das Zukunftskomfort der Wohnung hängt von der Raumnutzung ab. Die Designer von Cubiq Studio, Daniil und Anna Schepanowitsch, konnten die Wohnfläche dieser Kleinstwohnung optimal nutzen und alles notwendige darin unterbringen.
Schauen wir, wie sie das geschafft haben.
ORT: Sankt Petersburg, Moskower ViertelHAUS-TYP: Wohnkomplex „Peremena“
FLÄCHE: 28 qm
ZIMMER: 1
CEILING HEIGHT: 2,73 m
DESIGN: Daniil und Anna Schepanowitsch, CUBIQ STUDIO

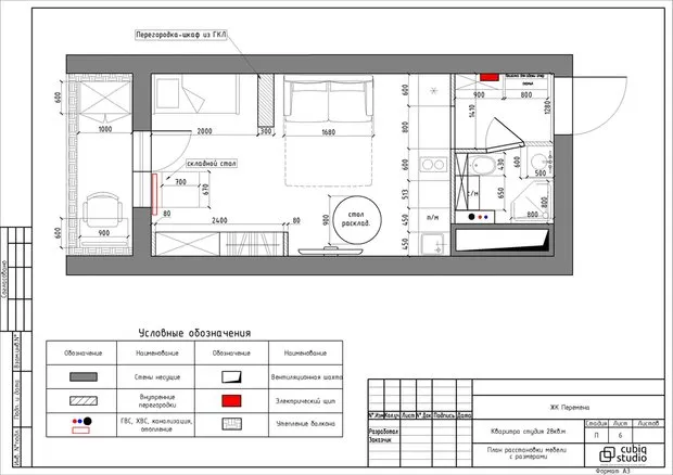
Grundriss
Die Hauptmerkmal dieser Wohnung war die lineare kleine Küchenzeile. Anstelle einer Bar wurde ein vollständiger Essplatz installiert.


Das Kinderzimmer wurde mit einem Schlafplatz, einem klappbaren Tisch und einem Spielplatz ausgestattet.

Der Balkon wurde für Erholung und Arbeit ausgestattet – dort befindet sich eine Bibliothek und ein gemütlicher Schreibtisch.


Verkleidung
Die Wohnung ist im skandinavischen Stil mit marokkanischen Akzenten eingerichtet.
Fast alle Bereiche sind in schwarz-weißen Tönen mit minimalistischer Möbelausstattung und geringem Dekor gestaltet. In der Eingangshalle, im Badezimmer und auf dem Balkon wird kontrastvolle Kachelung als Akzent verwendet.



Speicherung
Trotz der begrenzten Quadratmeterzahl ist die Einzimmerwohnung mit ausreichend Speichersystemen ausgestattet. Der Hauptspeicher ist der eingebaute Schrank im Schlafzimmer, Sportgeräte sind in einer speziellen Dachbodenprobe im Flur untergebracht.


Des Weiteren übernimmt eine Gipskartonwand die Funktion eines offenen Regals.

Beleuchtung
Die gut geplante Beleuchtung hilft, die ohnehin kleine Wohnung zu zonen. Sie umfasst eine Beleuchtung in der Küche, Hängelampen über dem Wohnzimmer und mehrere Leuchten über dem Arbeitsplatz.

Weiße Spot-Beleuchtung in der Kinderzimmer wirkt sehr natürlich, beleuchtet die Räume gut und lenkt nicht vom Interieur ab.

Need a renovation specialist?
Find verified professionals for any repair or construction job. Post your request and get offers from local experts.
You may also like
Weitere Artikel:
Ikea-Analoge: 10 Varianten stilvoller Garteneinrichtung
Wie wir selbst einen stilvollen Mikrosanitärbereich erstellt haben, in dem alles untergebracht wurde
Bewegliche Möglichkeiten, um den Eindruck von Raum zu vergrößern: Einblicke eines Architekten
11 coole Produkte im IKEA-Stil, noch besser
Innenraum-Design-Projekt: Lohnt es sich, oder besser sparen?
Hölzernes Häuschen 75 m² mit Sauna, Küche und 2 Zimmern
Coole Ideen für die Küchenorganisation, die jeder meistern kann
Atembergende Einzimmerwohnung 36 m², in der es gemütlich und nicht eng ist