Klug umgebauter Mikroappartement 29 m² für 900.000 Rubel
Wir zeigen, was dabei herausgekommen ist
Budgetrenovierung einer Wohnung – der Traum vieler Eigentümer. Scheint es wirklich möglich, alles Renovierungsarbeiten für 900.000 Rubel unterzubringen?
Genau in diesem Betrag stand das Projekt von Lyubov Utkina, die sich mit der Einrichtung einer winzigen Studio für ein junges Paar beschäftigte. Da die Kunden vorhaben, das Wohnhaus später zu vermieten, stand dem Designer nur eine Aufgabe: einen Basis-Interieur mit Schlafplatz zu erstellen.
Schauen wir, wie dies in der Praxis umgesetzt wurde.
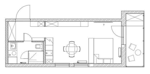
Grundriss

Materialien und Möbel
Anfängliche Planung eines teuren Renovierungsprojekts war nicht geplant, daher wurden alle Kosten im Projektplan reduziert. Baustoffe wurden auf Märkten gekauft, Möbel in bekannten Massen-Markt-Verkäufern.
Allerdings konnten Gegenstände von IKEA und Hoff durch österreichische Stühle ergänzt und das Bild über dem Bett aus einem Stück Stoff und einer „IKEA-Rahmen“ gebaut werden.



Lyubov betrachtete als höchst effektives Lösung deutsche Tapeten Rasch mit Dekorationsmuster von Putz. Sie wirken erheblich teurer als klassische Materialien und bilden gleichzeitig den geringsten Teil der Ausgaben.

Küche
Da die Studio eine langgestreckte Form hat, wurde die Küchen- und Schlafzone durch ein Regal von IKEA getrennt. Um die Arbeitsfläche zu erweitern, wurde die Arbeitsplatte bis zum Fensterbrett verlängert.
Die Küche wurde von einer privaten Firma realisiert: Standard-Garnitur, Schiebeablage und Hängeschubladen wurden installiert.



Badezimmer
Das Badezimmer wurde mit allem Notwendigen ausgestattet, darunter Waschbecken, Spiegelschrank, Wäschetrockner und Toilettensitz.
Die Duschplatform wurde umgeformt: Es musste das durchsichtige Glas der Dusche gekürzt werden. Die Dusche mit Wassererhitze konnte hinter den Türen mit dem Kollektor verborgen werden.


Momentan stehen in der Wohnung ein IKEA-Schrank im Schlafzimmer und ein Garderobenschrank im Flur, aber im Laufe der Zeit wollen die Eigentümer einen weiteren auf dem Balkon aufstellen.

Need a renovation specialist?
Find verified professionals for any repair or construction job. Post your request and get offers from local experts.
You may also like
Weitere Artikel:
Coole Designer-Interieur-Ideen, die man notieren sollte
6 super nützliche Lösungen für das Zuhause, die wir von unseren Helden gesehen haben
Wie man einen Fernseher in das Interieur einfügt: 8 ungewöhnliche Lösungen
5 Tipps für einen praktischen Interieur von einem Architekten
Dekor fürs Zuhause mit eigenen Händen: 5 tolle Ideen, die jeder nachmachen kann
5 peinlicher Fehler im Renovierungsbau, die jetzt vermieden werden können
5 Ideen für den Wanddekor. Was kann einfacher sein, wenn alles bereits erfunden ist
Wunderprodukte von AliExpress, die Ihr Leben einfacher machen