成都GROWTO Design梦幻岛屿
建筑、自然与时间的诗意对话
在充满活力的城市成都,梦幻岛屿由GROWTO Design打造,体现了超越潮流的愿景。建筑师们并非追求新颖,而是致力于恢复居住的本质——空间、自然与情感之间的对话。结果是一座仿佛超越时间、可触摸且极具人性化的住宅——一个既滋养身体又抚慰心灵的环境。
该项目基于GROWTO的设计理念:建筑应回归地域性:理解土地、气候与传统如何塑造人们的生活方式。整个一年中,团队逐层审视每个细节——从地块到结构再到室内氛围——将住宅打造成一个沉浸式的体验,连接回忆、艺术与日常生活。
庭院是家的灵魂
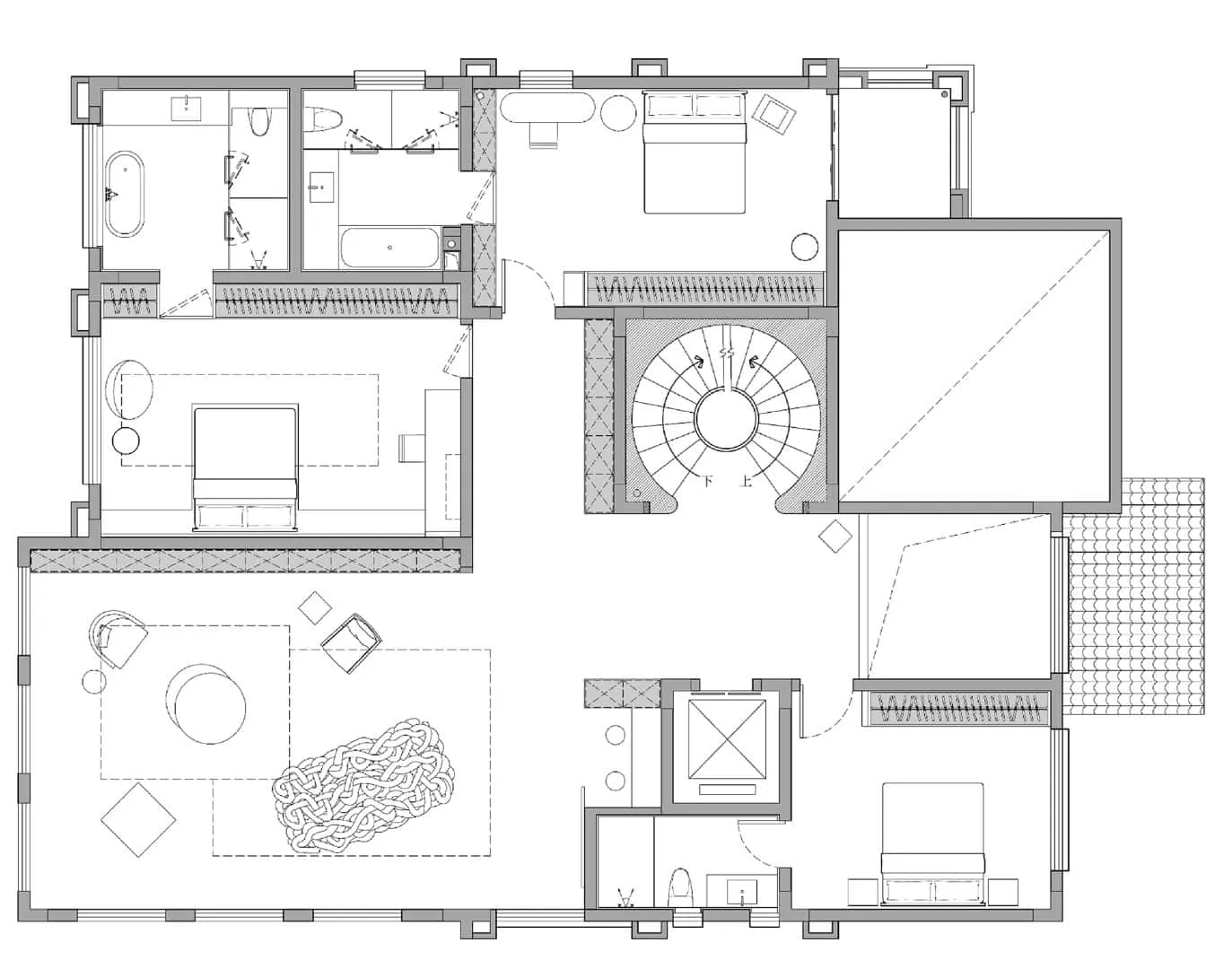
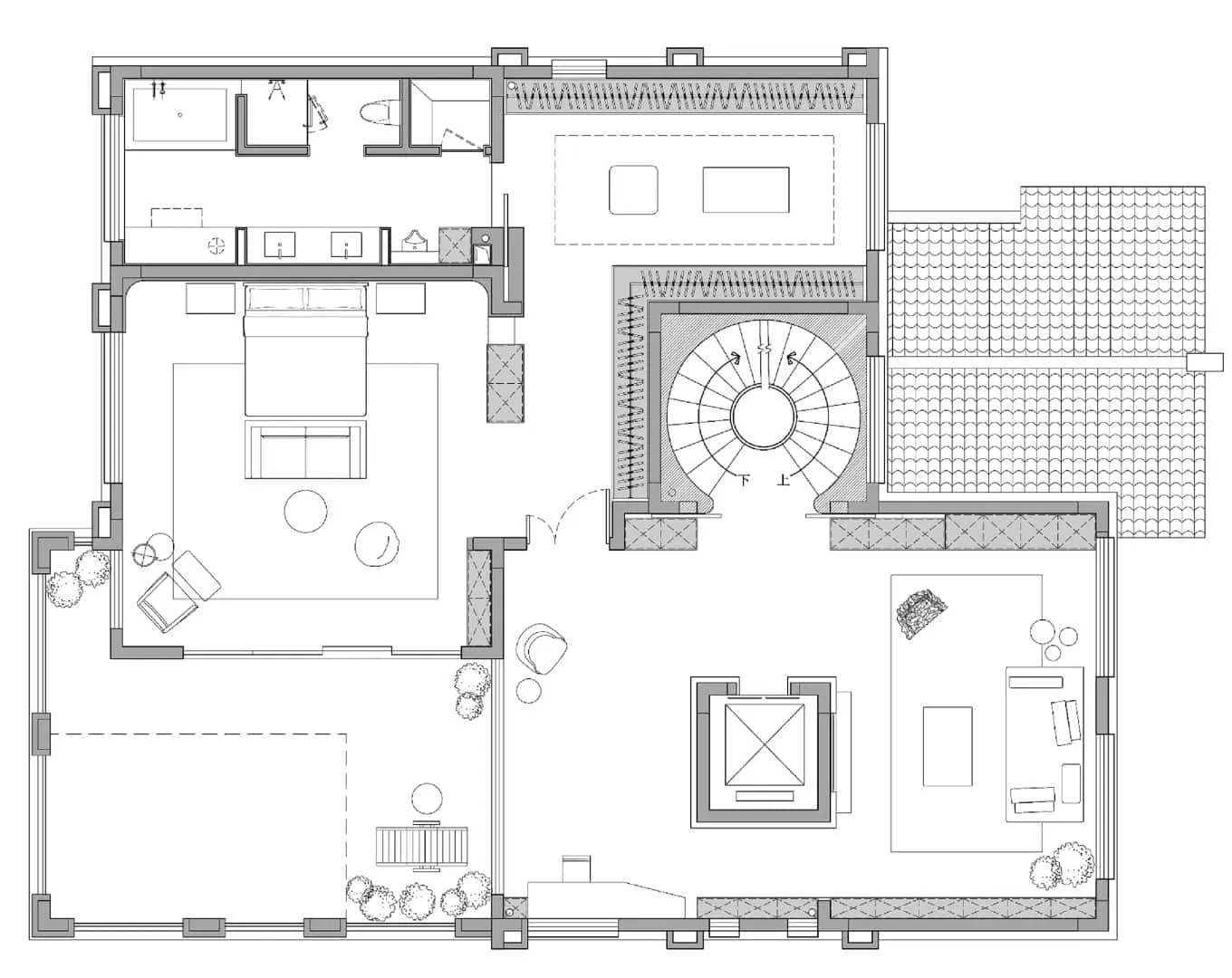
在梦幻岛屿的中心,是一个垂直花园庭院,连接上下两个层级。这个充满诗意、被自然光照亮的空间成为住宅的空间与情感核心。
从一楼到地下二层,它构成了一幅宁静的玻璃、绿色与倒影组成的构图。功能上,它通过流畅的空间序列连接客厅、茶区、酒吧和艺术空间。象征意义上,它将住宅的对立特质——宁静与活力连接起来,在光影、封闭与开放之间创造出诗意的平衡。
庭院采用中国古代“四水归堂”概念,引导自然光与气流深入建筑内部。室内外之间模糊的边界创造出“分隔而不隔离,界限而无束缚”的效果。这种体验是一种冥想式的宁静——一个对自然节奏开放的私人世界。
光线与空间节律的层次
梦幻岛屿的每一层都展现出其独特的特征和功能,同时通过材料与节奏保持统一的对话关系。
一楼作为主要公共区域,以现代极简主义重新诠释传统空间秩序。自然光通过重构的开口和木质格栅传播,创造出明暗平衡的光影舞蹈。半开放的设计促进了内外空间的自然流动,在这里家庭聚会、艺术饮食和茶道仪式无缝融入日常生活。
一些细节如可开合的隔断为日常增添戏剧性。每一束光线与每一个视角都参与了宁静与沉思的叙事。
游戏、成长与想象的空间
二楼包括儿童卧室和公共休息区。在这里,GROWTO Design呈现了一个富有游戏感的调色板和更自由的空间布局,促进创造力与探索。
这一层成为想象的微型景观——“梦境之林”,色彩与形式支持成长和好奇心。每一块表面和每个角落都提供探索的机会,同时保持整体的宁静氛围。
高处的私密现实
登上三层,建筑变得更加安静与内敛。主卧和私人休息区通过其材料的克制与有机形态,散发出谦逊的优雅。
拱形空间和柔和边缘模糊了天花板与墙面的界限,分散光线并创造出柔和的空间过渡。这里的氛围深具个人性与沉思感,是一个颂扬宁静之美和简约之尊的庇护所。
基于自然的可持续设计
除了美学,梦幻岛屿还体现了低排放的生活方式。通过引入光井、地下花园和自然通风路径,住宅全年保持舒适温度,能耗极低。
闭环回收系统降低了水和电的消耗,新的保温外墙与高效玻璃提升了声学与热工性能。因此,住宅不仅是一个艺术宣言,更是一种环保意识和长期可持续性的典范。
当代东方杰作
梦幻岛屿展现了GROWTO Design哲学的成熟——现代中国住宅,尊重传统和谐、平衡与自然的理想。它既现代又超越时代,在工艺与沉思之间相遇,建筑成为情感共鸣的工具。
在克制的色调、精心调节的光线与流畅的空间关系中,梦幻岛屿将日常生活转化为艺术——一个在快速变化世界中恢复宁静的现代避风港。
摄影师 © BIJISPACE
摄影师 © BIJISPACE
摄影师 © BIJISPACE
摄影师 © BIJISPACE
摄影师 © BIJISPACE
摄影师 © BIJISPACE
摄影师 © BIJISPACE
摄影师 © BIJISPACE
摄影师 © BIJISPACE
摄影师 © BIJISPACE
摄影师 © BIJISPACE
摄影师 © BIJISPACE
摄影师 © BIJISPACE
摄影师 © BIJISPACE
摄影师 © BIJISPACE
摄影师 © BIJISPACE
摄影师 © BIJISPACE
摄影师 © BIJISPACE
摄影师 © BIJISPACE
摄影师 © BIJISPACE
摄影师 © BIJISPACE
摄影师 © BIJISPACE
摄影师 © BIJISPACE
摄影师 © BIJISPACE
摄影师 © BIJISPACE
摄影师 © BIJISPACE
摄影师 © BIJISPACE
摄影师 © BIJISPACENeed a renovation specialist?
Find verified professionals for any repair or construction job. Post your request and get offers from local experts.







