杭州 cong banquet 餐厅设计项目
项目: cong banquet
建筑师: Associat Interior Design
位置: 杭州余杭区莲珠路
面积: 19375平方英尺(地块),16145平方英尺(总面积),13993平方英尺(内部)
年份: 2023
摄影: 宋E
杭州 cong banquet 餐厅设计项目
cong banquet 餐厅名称源自 cong 形状——一种长形中空的翡翠石,具有矩形边框和中央圆形孔洞,象征着神圣权力或身份认知的形成以及文明的开端。
致敬传统仪式遗产,cong banquet 是一座独立建筑,灵感来源于 cong 的形状、颜色、意义和品质,用以诠释新融合菜系的口味、魅力、价值与灵魂。目标是打造一个具有永恒吸引力的经典午餐空间。

cong 形状• 水平台面
扩展空间感
坚固墙体与玻璃构成边界,限定 L 形开放水台,为室内空间提供充足的自然光,并将季节性景观引入其中。
倾斜的屋顶、绿色树木、天空云朵与微风形成的壮丽景色,倒映在水面上,营造出镜面效果。水不仅具有独特的物质属性,更承载着深厚的文化意义。它与高贵气质相关联,其柔和湿润的内涵如同翡翠。
呼应 cong 的方形与圆形形态,餐厅外部区域配备不同尺寸的环形功能元素,布置于方形水面上。最大的圆形户外休息区通过屋檐和建筑外挑立面连接,形成一个理想的聚会与朋友交谈场所。
在东方艺术中,平台被视为室内空间的延伸,用于扩展视野、延长地平线并创造艺术意境。内外元素无缝融合,形成有机统一的整体。

cong 色彩• 舞台布景设计
情绪变化
物件的颜色与情感紧密相连,进而反映在物理空间中。路径蜿蜒曲折,创造出不同大小、宽度和高度的节奏感。使用翡翠质感材料以突出主题,通过地板覆盖、部分立面与结构节点营造仪式走廊。
入口装饰着艺术装置,体现喜悦、热情与花卉的有机动感,形成与周围环境黑暗与秩序之间的强烈对比。
角落设有轴线视角和不对称平衡,创造出新的视觉语言。舞台布景设计方法有助于柔化生硬通道。从地面生长的石头、悬挂于天花板的树枝、照明天花板与特制石块共同构成三维动态景观。
空间中的深色作为土壤色彩的隐喻,有效强调并突出关键的空间表达元素。

cong 含义• 欢聚时刻
宴会中的祝酒辞
宴会厅窗户面向平台,使外部景观成为其外观的重要组成部分。深色木材框定合适高度,将立面分为上下两部分:下部贴近用餐区域尺度,上部与天花板相呼应。
方形元素依次排列并连接,营造出庄严仪式感,反映 cong 的外形。朋友被邀请在此聚会共饮,享受独特而难忘的体验。
该空间中的收银区不同于传统设计,因为它不位于单一功能区域。相反,它隐藏在走廊之后,同时作为休闲区和茶室使用。此决定优先考虑整体空间的纯净与完整性而非商业属性。
玻璃酒柜兼具展示与视觉穿透功能,在光影效果下适度扩展并丰富最终装饰。背景墙上挂着一幅“莲珠”拼贴画,展现历史与现代之间的戏剧性对话。

cong 质感• 和谐融合
现代意义
圆形天空与方形大地的概念不仅通过图形形式传达,也根植于古代哲学。体现在墙面的圆形孔洞中,允许改变直径并调整内外圆的位置关系。它们相互关联,在与相邻空间共同构成景观画面时,使厚重立面变得轻盈诗意。
为解决转角沙发问题,采用了半透明 L 形墙体设计。这一补充增加了丰富的色彩和可感知的材质纹理,同时体现出现代美学风格的独特与不平衡。
cong 质感不同于其他材料,因为它代表了一种和谐且均衡的融合。构建广泛而统一文明的基础原理在于多重性、包容性和连续性的原则。
在 cong banquet 室内设计中,颜色、材料和装饰元素经过精心挑选,旨在打造一个多样化且视觉丰富的空间,融合粗犷与精致细节。
因食物随文明发展而演变,cong banquet 品牌起源与场地历史紧密相连。设计团队准确捕捉品牌精髓,并将其转化为空间形式。
无论烹饪技艺或餐具如何,个人口味、美学感知及联想总是随时间更新,但追求内在状态的渴望从未改变。
- 项目描述和图片由 Current-Newswire 提供

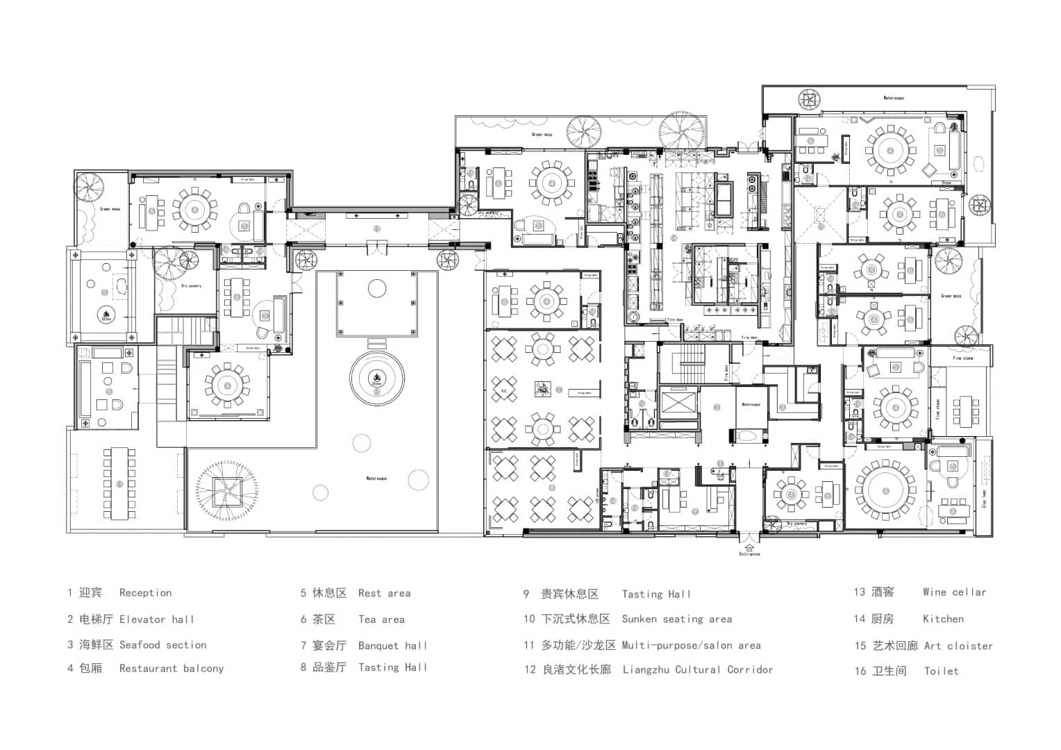
平面图

Need a renovation specialist?
Find verified professionals for any repair or construction job. Post your request and get offers from local experts.







