色彩公寓 / 亚历山大·蒂施勒 / 俄罗斯
由Alexander Tischler设计的这间位于叶卡捷琳堡的彩色公寓体现了现代家庭生活方式的核心。这个面积为1280平方英尺的空间,是2021年的项目,融合了明亮的点缀、灵活的功能分区和专为有青少年女儿的家庭量身定制的空间解决方案。室内设计巧妙地结合了现代风格与日常实用性,创造出一个既充满活力又宁静的空间。
摄影师 © Askar Kabjan
摄影师 © Askar Kabjan开放布局与鲜明和谐的搭配
公寓中央是一个明亮宽敞的客厅,通过拆除走廊、厨房与客厅之间的隔墙实现。统一的区域非常适合接待客人或家庭休闲时光。厨房采用白色瑞克斯抛光砖装饰,并配有至顶的白色厨房家具,内置拉手保持极简外观。白色的电器、台面和餐桌形成对比与和谐。
摄影师 © Askar Kabjan
摄影师 © Askar Kabjan弯曲沙发是客厅的雕塑式中心,与餐桌和电视对齐,确保全方位的互动体验。通过鲜明纹理和几何线条增添个性而不显繁杂,保持简洁的建筑线条。
摄影师 © Askar Kabjan
摄影师 © Askar Kabjan
摄影师 © Askar Kabjan
摄影师 © Askar Kabjan日常区域的功能优化
洗衣房
原面积为2.9平方米的洗衣房被扩展至6.9平方米,显著提升了使用便利性。高大的壁柜内含洗衣机和烘干机,而开放式架子与隐藏式热水器则提供整洁有序的存储解决方案。门的位置调整增强了私密性,并更好地区分了洗衣房与走廊。
摄影师 © Askar Kabjan
摄影师 © Askar Kabjan阳台
未供暖的阳台被改造成舒适的角落,配有坐垫座椅和柔和灯光,非常适合在温暖天气阅读或静思。
摄影师 © Askar Kabjan私密区域的智能分区
主卧室
主卧设有步入式衣帽间,包含开放与封闭区域,通向分区的卧室。使用木质屏风门将工作区与睡眠区域柔和分隔。悬挂式柜子、隐藏灯光和简约台灯进一步丰富了宁静的色调。卫生间配备到顶镜子、仿石洗手盆和带有储物柜的悬挂马桶。
摄影师 © Askar Kabjan
摄影师 © Askar Kabjan
摄影师 © Askar Kabjan
摄影师 © Askar Kabjan儿童房
青少年房间专为创造力和独立性设计,入口处设有书桌,由双面柜与床分隔,平衡了开放与封闭元素。窗边的置物台提供第二个工作或休息区。水彩涂装暖气片与可调光天花板灯增添趣味性和舒适感。
摄影师 © Askar Kabjan
摄影师 © Askar Kabjan
摄影师 © Askar Kabjan
摄影师 © Askar Kabjan细节中的克制优雅
玄关走廊通过到顶镜面柜门和集成照明最大化实用性,增强功能性和空间感。次级储物柜用于季节性物品存放,隐藏面板则收纳电气与通讯系统,确保整栋建筑的整洁外观。
摄影师 © Askar Kabjan
摄影师 © Askar Kabjan
摄影师 © Askar Kabjan
摄影师 © Askar Kabjan
摄影师 © Askar Kabjan
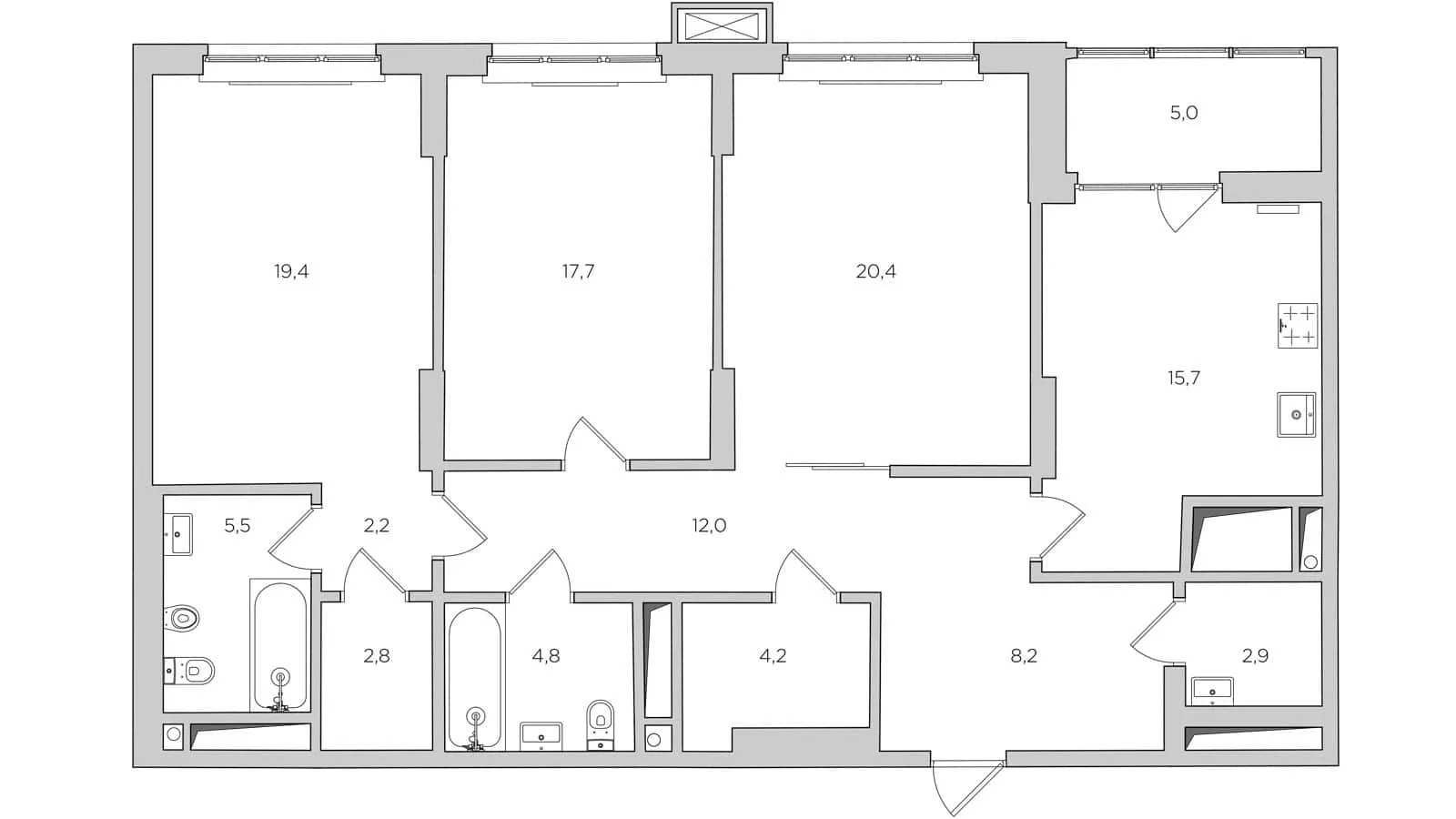
摄影师 © Askar Kabjan平面图
改造前
改造前与改造后
改造后Need a renovation specialist?
Find verified professionals for any repair or construction job. Post your request and get offers from local experts.







