Aranya theTANG 酒店由 B.L.U.E. Architecture Studio 在中国设计
基于场地与社区打造的酒店
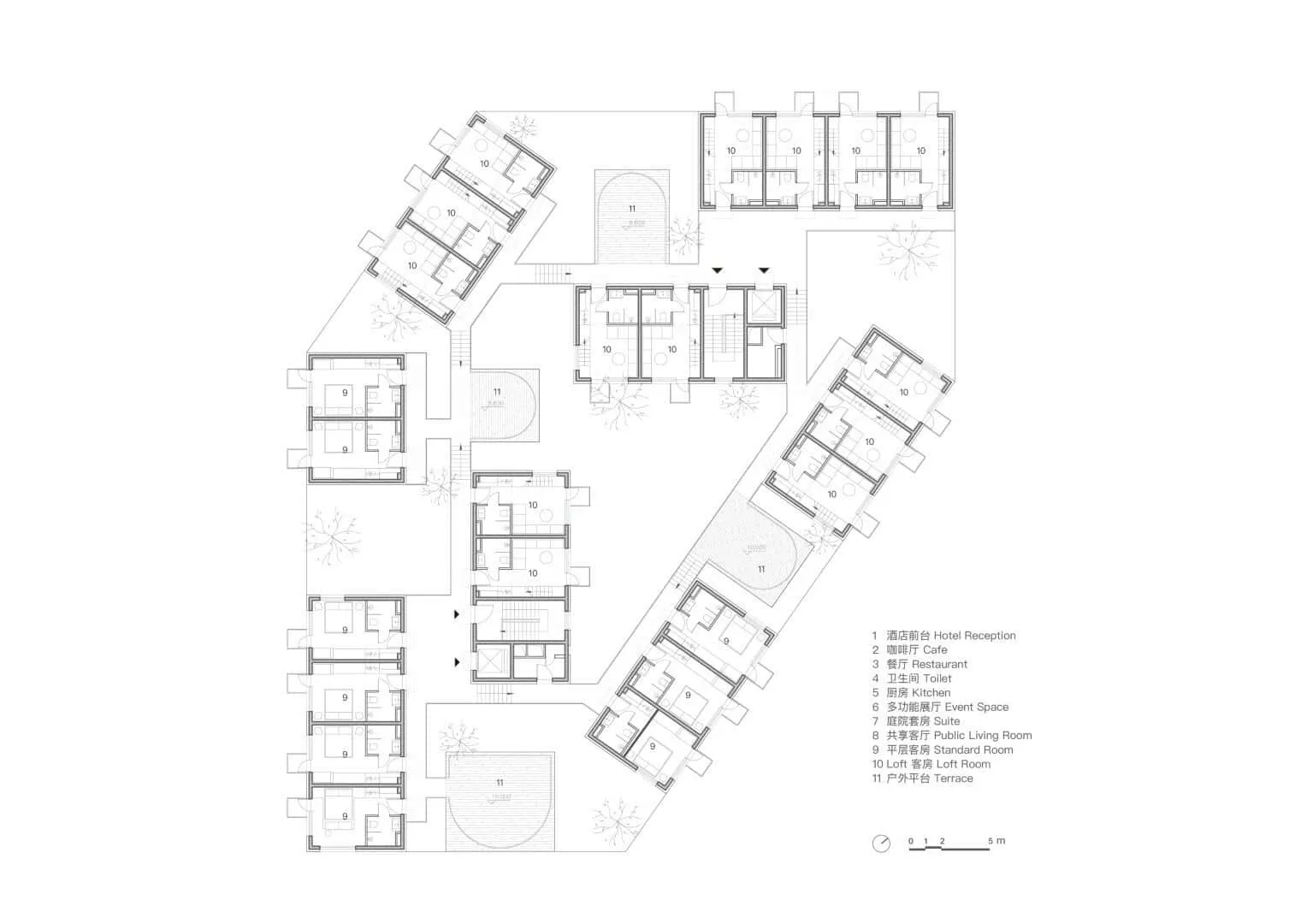
位于文化底蕴丰富的阿尼亞社区,Aranya theTANG 酒店坐落在一个六边形的区域,四周环绕着欧式住宅。酒店面向黄金海岸开阔视野的东侧,其余三面则形成一个类似小型欧洲小镇广场的空间。
B.L.U.E. Architecture Studio 利用场地独特的几何结构,创造了一种面向21世纪的新住宿模式。他们的目标是打破传统以隐私和独处为主的酒店模式,转而创造一个以社区、共同体验与情感连接为核心的生活空间。
重新定义酒店类型学
传统酒店强调房间的专属感。在这里,B.L.U.E. 努力打破隔离,赋予公共区域同等重要性。设计鼓励互动、开放与集体体验——将酒店转化为一种城市微社区。
建筑形式
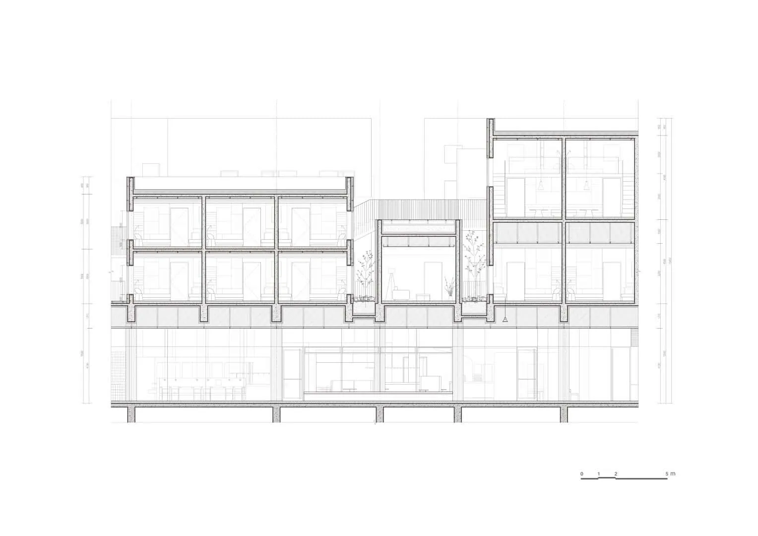
建筑物被组织为一个低矮封闭的复合结构,一楼采用透明玻璃幕墙,设有公共大厅、咖啡馆和酒吧。在这基础平台上,八座比例失调的白色体量拔地而起,用于客房。
悬浮效果:突出的平台和造型钢饰营造出轻盈感。
温暖点缀:覆膜竹板打破白色立面,增添自然元素。
露台:每个客房都配有小型露台,加强室内外生活连接。
动态视角:外部走廊与不同高度的建筑创造出不断变化的景观,从广场生活到开阔海景。
空间构图看起来不像单一建筑,更像是一个小型漂浮社区,强调酒店内部的邻里感。
室内空间
室内设计融合了极简主义与温暖感。
公共区域:一楼的大厅、咖啡馆和酒吧形成连续流动的空间,通过从地板到天花板的墙体引入自然光。极简装饰引导视线关注自然元素——海风、树木和光线。
客房:一楼设有家庭房;上层提供26平方米的紧凑型房间和36平方米的Loft风格房间。天然材料如木材、石膏和石灰华营造出宁静而低调的氛围。
气候考量:经过防潮处理和独立空气净化器,确保在潮湿的海滨环境中保持舒适。
共享空间:二楼设有全景海景的公共大厅,鼓励客人在私人房间之外进行交流。
通过略微缩小私人客房尺寸,设计为公共功能释放更多空间,促使客人将酒店视为一个集体共享环境。
迈向新型的酒店社区模式
Aranya theTANG 酒店提供了一种新的住宿类型。它不像传统酒店将客人隔离在私人套房中,而是鼓励他们与公共庭院、露台和共享空间互动。
该项目反映了城市住宅更广泛的趋势:随着私人空间缩小,社区变得尤为重要。在这里,建筑成为互动、探索和情感连接的平台——让生活从房间延伸到开放而流畅的空间。
摄影师:Kano Eiichi
摄影师:Kano Eiichi
摄影师:Kano Eiichi
摄影师:Kano Eiichi
摄影师:Kano Eiichi
摄影师:Kano Eiichi
摄影师:Kano Eiichi
摄影师:Kano Eiichi
摄影师:Kano Eiichi
摄影师:Kano Eiichi
摄影师:Kano Eiichi
摄影师:Kano Eiichi
摄影师:Kano Eiichi
摄影师:Kano Eiichi
摄影师:Kano Eiichi
摄影师:Kano Eiichi
摄影师:Kano Eiichi
摄影师:Kano Eiichi
摄影师:Kano Eiichi
摄影师:Kano Eiichi平面图






Need a renovation specialist?
Find verified professionals for any repair or construction job. Post your request and get offers from local experts.







