Aquavillas 公寓酒店由 Babayants Architects 设计——格勒区海滨度假胜地

Babayants Architects 完成了位于阿布哈兹格勒区的 Aquavillas 公寓酒店 项目,该项目占地46,284平方英尺,是一个现代化的海滨综合体。作为附近 Aquamarine Gagra 酒店 的延续,该项目提供 36至42间现代公寓,建筑外形由功能、位置和景观决定。
生活方式定义的功能性概念
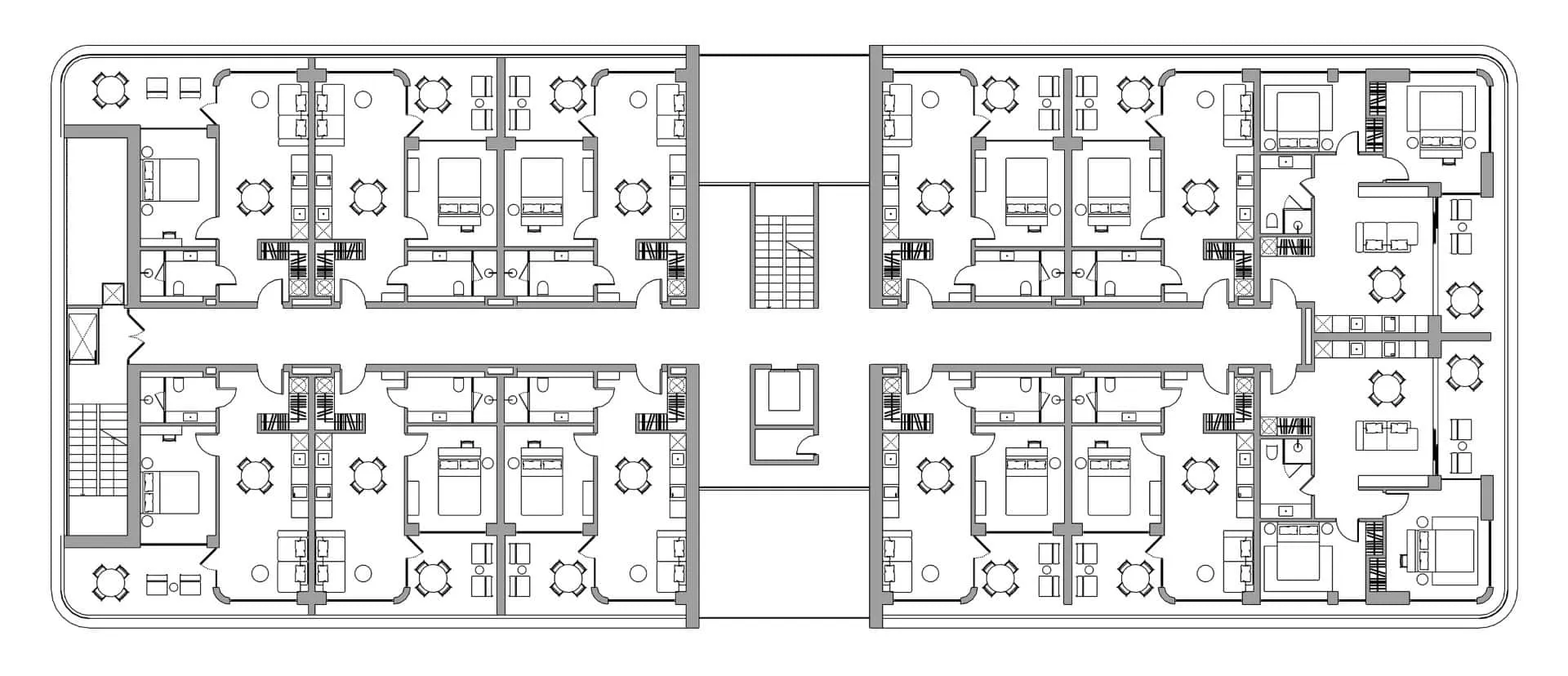
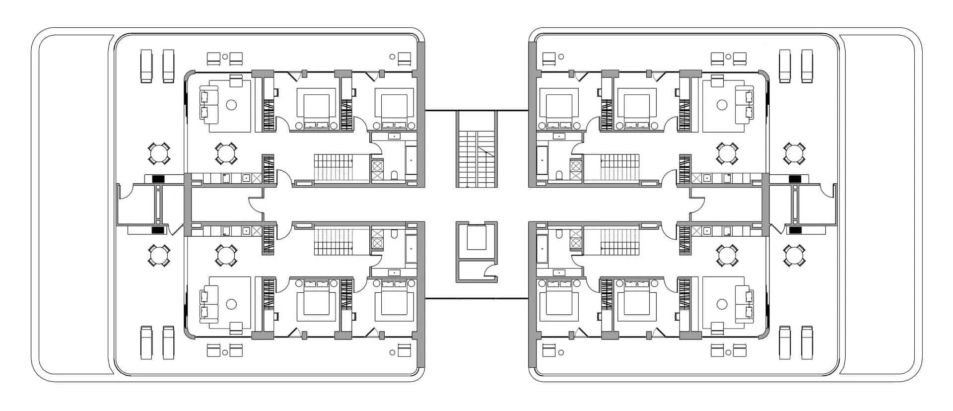
公寓酒店设计为 三层至六层楼,公寓按尺寸和容纳人数分布:
二至三层: 一居室豪华公寓(35-45平方米),适合最多4位客人。
四楼: 两居室豪华公寓(50-60平方米),适合6位客人。
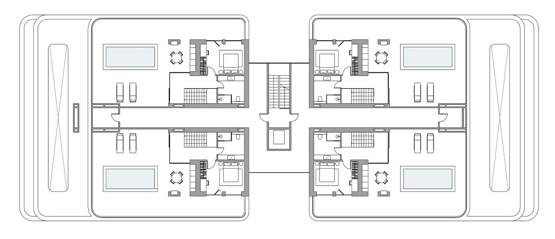
顶层: 三居室豪华公寓(65-80平方米),适合8位客人,每间都配有 私人泳池。
这种功能性布局赋予了 Aquavillas 独特的轮廓,具有阶梯式露台和分层体积,直接反映了内部布局。建筑既是 酒店也是投资物业——单位可购买或季节性租赁。
灵感源于海洋与山峦的建筑
位于 黑海和山脉之间 的公寓酒店强调通透性和开放性:
深邃的雕塑式露台,仿佛是风吹浪打雕琢出的形状。
大面积玻璃开口 打破了室内外空间的界限。
纹理化的抹灰层和天然木材 增添了温暖与触感。
透明的中央轴线 从大堂直达花园和大海。
建筑设计轻盈流畅,使其既成为景观的一部分,又是一个独立的结构。
类似项目请参见 海滨酒店项目。
宾客体验与基础设施
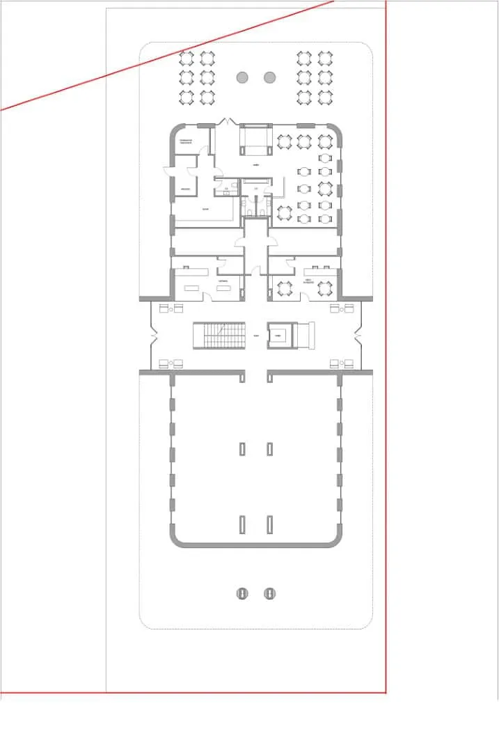
除了私人公寓外,Aquavillas 还设计为 功能齐全的公寓酒店:
双层大堂 包含接待区和休闲区域,迎接宾客。
一楼 包含商业设施,如咖啡厅、商店和健身房。
景观区域包括 带自然溪流的池塘 和一个风景优美的公园,种植着棕榈树、香蕉树、桉树、雪松和竹子。
这种综合性的设计方法使公寓酒店不仅仅是一个住宿场所,更是一个 沉浸式旅游环境。
格勒海岸的标志性建筑
Aquavillas 公寓酒店体现了 海滨度假胜地建筑的本质:功能性规划、适应性材料和与自然的融合。结合 海景、雕塑式露台和现代设施,Babayants Architects 创造了一个既可作为 生活方式地标又可作为投资的项目,位于阿布哈兹海岸。
照片 © Courtesy of Babayants Architects
照片 © Courtesy of Babayants Architects
照片 © Courtesy of Babayants Architects
照片 © Courtesy of Babayants Architects
照片 © Courtesy of Babayants Architects
照片 © Courtesy of Babayants Architects
照片 © Courtesy of Babayants Architects
照片 © Courtesy of Babayants Architects
照片 © Courtesy of Babayants Architects
照片 © Courtesy of Babayants Architects
照片 © Courtesy of Babayants Architects
照片 © Courtesy of Babayants Architects
照片 © Courtesy of Babayants Architects平面图
照片 © Courtesy of Babayants Architects
照片 © Courtesy of Babayants Architects
照片 © Courtesy of Babayants Architects
照片 © Courtesy of Babayants Architects
照片 © Courtesy of Babayants Architects
照片 © Courtesy of Babayants ArchitectsNeed a renovation specialist?
Find verified professionals for any repair or construction job. Post your request and get offers from local experts.







