1800平方英尺公寓 / 亚历山大·提舍勒 / 俄罗斯
由亚历山大·提舍勒设计的这套1800平方英尺莫斯科公寓,完美融合了精致、功能性和温馨的舒适感。该项目于2023年完工,专为一对经常接待孩子和孙子的家庭设计,灵活与舒适成为设计的核心理念。
摄影师 © 尤金·库拉比哈
摄影师 © 尤金·库拉比哈
开放布局,智能过渡
开发商最初的布局将厨房和休闲区分开。提舍勒团队重新规划了楼层平面图,将这两个区域合并成一个宽敞的55.5平方米开放式厨房和客厅空间。透过大窗户进入的自然光,凸显了橡木威尼斯百叶窗和浅色瓷砖地板。桌面R9音响系统与激光投影仪及隐藏式屏幕相结合,使空间同时具备温馨的家庭影院功能。
深色的厨房搭配日常电器功能区,与石英岛台相得益彰,包含隐藏插座、抽屉和酒柜。极简主义风格延续至边缘瓷砖护墙板、带抽油烟机的炉灶台面以及来自Vibia和CVL的时尚吊灯。
摄影师 © 尤金·库拉比哈
摄影师 © 尤金·库拉比哈
摄影师 © 尤金·库拉比哈
摄影师 © 尤金·库拉比哈
摄影师 © 尤金·库拉比哈
实用的门厅
玄关配有带照明的全身镜、边桌和舒适的坐垫。走廊一侧的储物柜及瓷砖装饰营造出既美观又实用的过渡空间。客用浴室通过扩大一小段走廊而扩展,提供一个配有深色Italon瓷砖和木纹陶瓷的淋浴间。
摄影师 © 尤金·库拉比哈
摄影师 © 尤金·库拉比哈
摄影师 © 尤金·库拉比哈
多功能客房,可转换为家庭办公室
多功能的客厅同时作为家庭办公室和儿童卧室。可转换的Clei沙发可以展开成两张单人床。沿窗设置的嵌入式工作台面配有内置抽屉,周围是高柜用于衣物和文件收纳。这个灵活的空间体现了公寓的设计理念:为当下的生活设计,面向未来。
摄影师 © 尤金·库拉比哈
摄影师 © 尤金·库拉比哈
摄影师 © 尤金·库拉比哈
静谧卧室,点缀精品细节
主卧展现了这对夫妇对柔和色调和触感丰富的喜爱。橡木威尼斯百叶窗装饰床头,带纹理的石材瓷砖用于电视墙。绿色扶手椅和Kartell杂志桌增添了柔和的色彩点缀。
卧室后方设有奢华衣帽间,配有带照明的架子、镜面边框模块、造型器和一个与落地镜相邻的化妆台。每层架子都配有照明,营造出芭蕾舞演员更衣室的氛围。隐藏式储物柜用于存放香水收藏,通信设备则藏于镜面面板后。
摄影师 © 尤金·库拉比哈
摄影师 © 尤金·库拉比哈
摄影师 © 尤金·库拉比哈
摄影师 © 尤金·库拉比哈
时尚客用浴室和洗衣房
原本是10平方米的浴室被重新设计为7.3平方米浴室和一个独立的洗衣房。浴室包括独立式浴缸、配有黑色人造石材壁龛的淋浴间和宽敞空间。洗衣区功能最大化,设有烘干机、衣物烘干机、干燥柜和熨烫区,位于悬挂式照明储物柜下方。单独的储物柜存放清洁用品和吸尘器。
摄影师 © 尤金·库拉比哈
摄影师 © 尤金·库拉比哈
阳台客厅,适合放松
阳台延续了橡木威尼斯百叶窗的设计,营造出宁静的避风港。配有Bonaldo金属桌和两把椅子,该区域专为休闲和非正式的家庭时光而设。
摄影师 © 尤金·库拉比哈
摄影师 © 尤金·库拉比哈
摄影师 © 尤金·库拉比哈
摄影师 © 尤金·库拉比哈
摄影师 © 尤金·库拉比哈
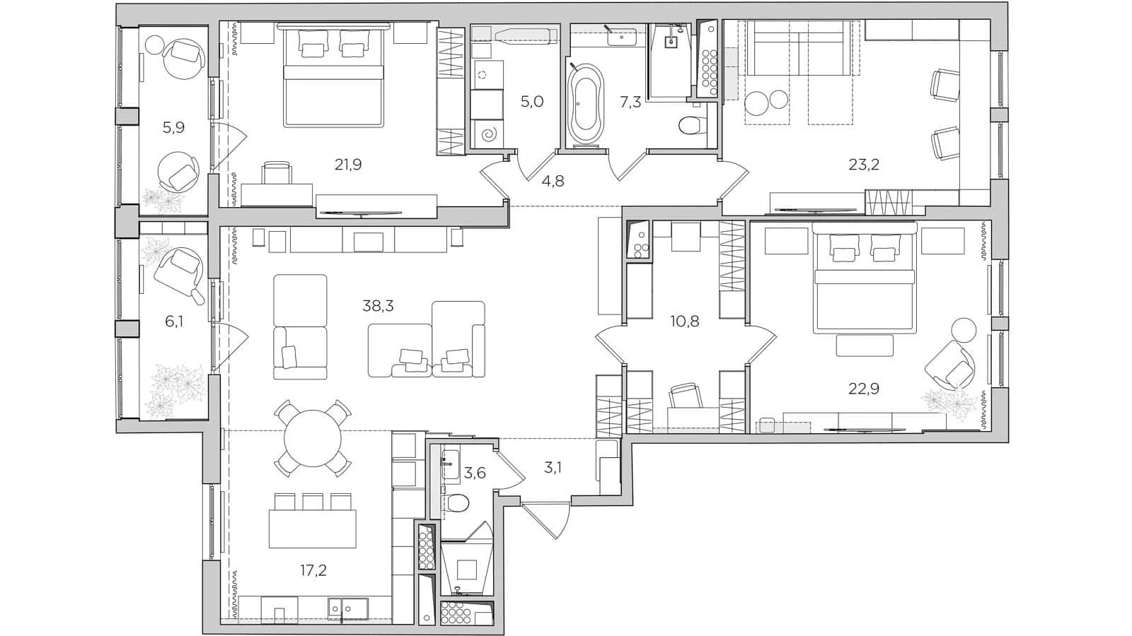
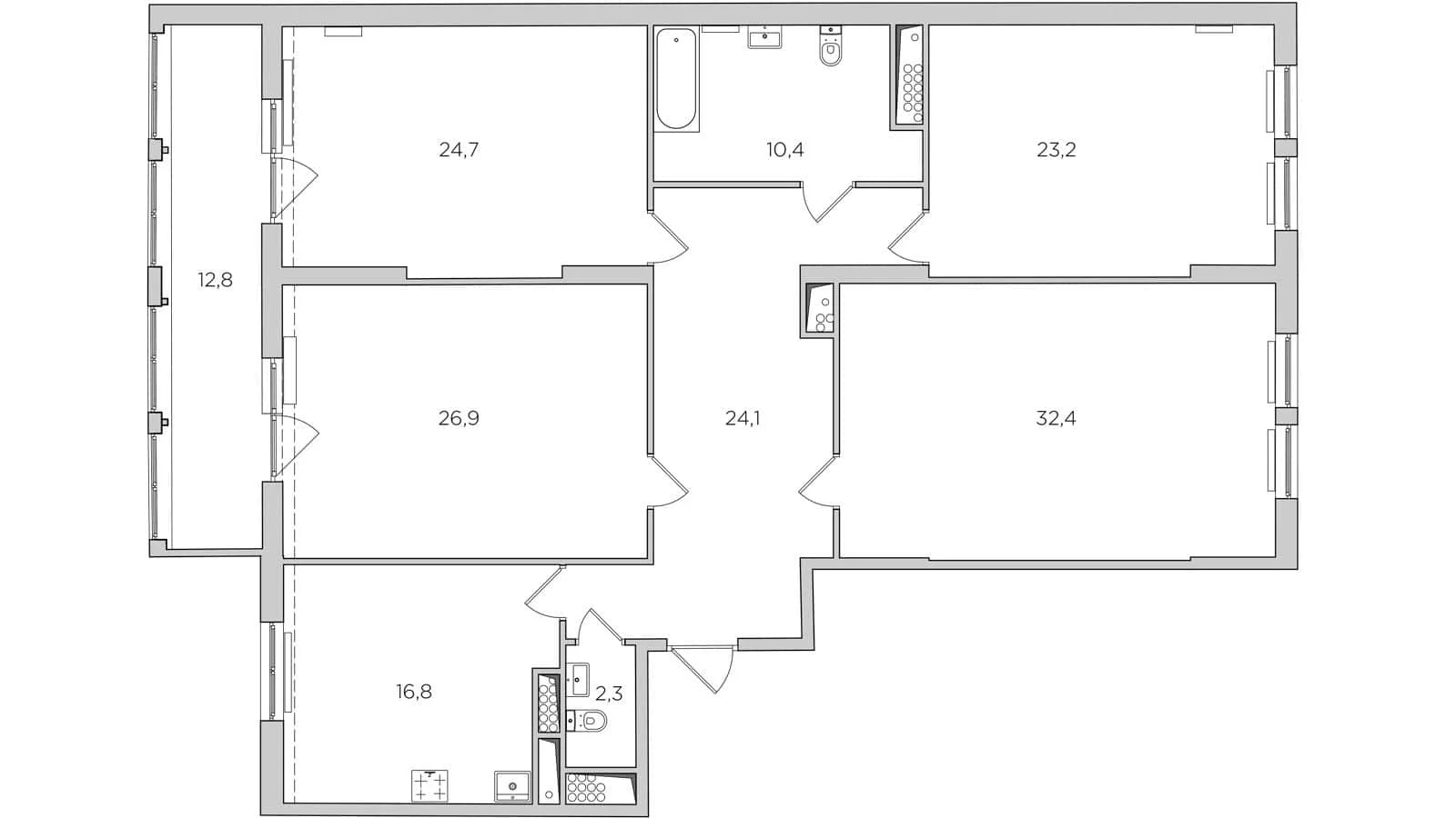
平面图
改造前
平面图 — 改造前
改造后
平面图 — 改造后Need a renovation specialist?
Find verified professionals for any repair or construction job. Post your request and get offers from local experts.







