7个经济实惠又时尚的室内设计灵感,打造舒适实用的空间
激发您的创意,值得收藏!
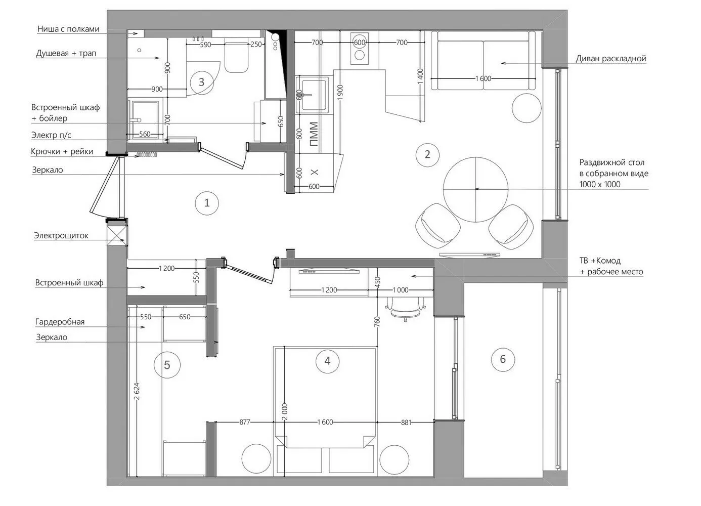
这个一居室由Ya Design工作室的设计师雅娜·亚历山德罗夫娜设计,专为年轻活跃的人士打造。需要创造一个功能性强、富有亮点的室内环境,同时保持耐用性和合理的预算。我们展示该项目中的精彩设计灵感,帮助您打造一个时尚且符合人体工学的生活空间。
L型厨房厨房设计注重功能性和便利性。岛台作为额外的工作区域,将厨房与沙发休息区分开。嵌入式电器提供了最大的舒适度。在角落部分放弃昂贵的滑动机构,从而实现大型家电和餐具的大容量存储。
增添色彩绿色成为灰色的伴侣,为室内增添了新鲜感和深度。厨房沙发、卧室床和玄关扶手的祖母绿色调与餐厅区域的装饰墙纸相协调。具有涂鸦效果的墙纸易于用抹布擦拭,使其耐用且实用。
图形装饰元素橱柜上层门板、抽油烟机和踢脚线的颜色选择旨在创造对比。踢脚线延续了厨房的线条,为地板和天花板增添了额外的视觉效果。墙面的装饰条将所有对比元素协调成一个整体。
精心设计的储物空间通过卧室重新规划,设置了宽敞的衣帽间,并在玄关安装了从电商平台选购的衣柜。这大大降低了成本。现成的衣帽间系统包含了所有必需的存储组件,还设有熨烫板和吸尘器的位置。衣帽间的门设计为推拉式,以避免阻挡床与通道之间的通行。
时尚的雕刻工艺波纹门板赋予了节奏感,并在其他房间延续这一风格。床头柜、五斗橱和两个悬挂式置物架保持统一的风格。垂直线条通过黑色装饰条得以强化——这是一种低成本解决方案,可在墙面添加视觉亮点,并巧妙地处理墙纸接缝。带有波纹底座的桌子将所有室内元素整合成一个整体构图。
关注视频:垂直储物设计在淋浴区与洗手台之间有一个凹槽,巧妙地利用了该空间安装两个从电商平台购买的悬挂式储物架。这一设计有效利用了空间,节省了定制物品的成本,并提供了充足的存储空间来放置必需品。
小型洗衣区卫生间内已预留了洗衣机的凹槽。设计师放弃了嵌入式橱柜,转而选择了一个与洗手台下方柜子属于同一系列的时尚悬挂式储物盒。这个储物盒与整套家具的颜色保持一致,不仅节省了开支,还突出了现代卫生间的设计感,使其更加实用和美观。

该项目融合了现代设计元素、实用性和节俭,同时不失美感。最终实现了既时尚又功能性强的室内设计,完全符合客户的需求。
Need a renovation specialist?
Find verified professionals for any repair or construction job. Post your request and get offers from local experts.







