梦想之家 65 平方米,适合迎接秋天
充满乡村风格的时尚室内设计
简要介绍
这款模块化房屋是“DoubleHome”公司与Stokmann百货公司的联合项目。它充满温暖、舒适,并采用北欧风格,融合了乡村风格元素。为了打造这样一个独特的空间,“DoubleHome”选择了最受欢迎的家庭型号KEDR。房屋装饰由Stokmann的顶级品牌提供,营造出舒适感和和谐美丽的氛围。
纪念Stokmann 35周年
今年,Stokmann将迎来其成立35周年纪念——自俄罗斯第一家百货公司开业以来的第35年。对于计划为自己和家人购买这种房屋的Stokmann会员,“DoubleHome”将提供20万卢布的折扣。此优惠仅限Stokmann常客会员。
同时,购买“DoubleHome”的顾客可在Stokmann享受20%的商品折扣。
广告。stockmann.ru。AO“Stokmann”。税号 7717145242。

黑色屋顶材料与红色外墙形成鲜明对比,为房屋增添精致和现代感。
详细信息
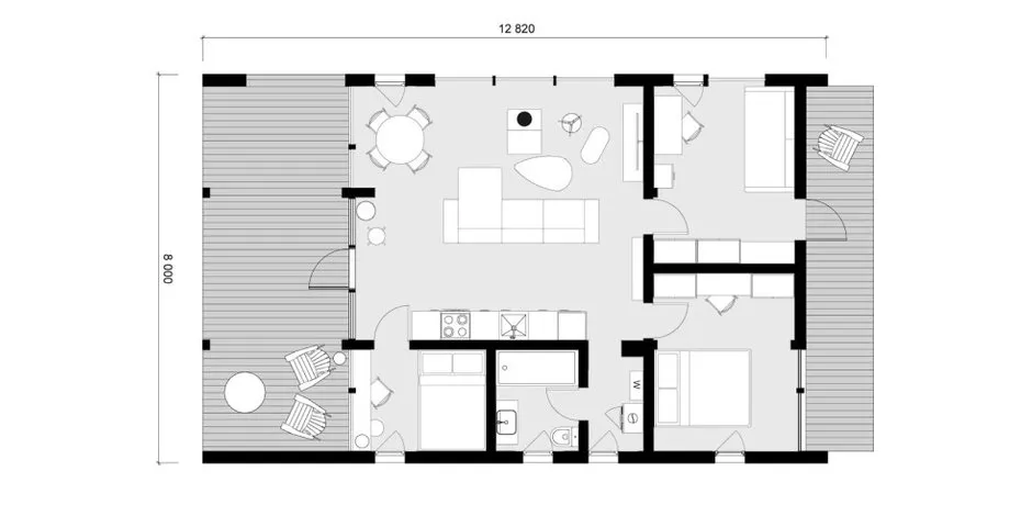
总建筑面积为102.8平方米,房屋面积为65平方米。房屋设有宽敞的厨房-客厅、两间卧室、玄关(可用作书房或额外卧室)、锅炉房和带浴缸的卫生间。房屋的设计与技术采用最新成果:全景壁炉、天然木材地板、带有纹理的黑色橱柜,以及智能家居系统等。

客厅、厨房和餐厅融为一体,形成宽敞的共享区域。优雅的黑色橱柜为明亮的空间增添了严谨感、整洁感和深度。黑色门板与白色台面(内置白色水槽和炉灶)完美搭配。厨房配备了所有必需的设备,包括独立的黑色冰箱和抽油烟机。
特别注重烹饪辅助用品——这些元素使设计更加完整。包括用于储存食材和香料的罐子、切菜板、餐具架、托盘和木制酸橙盘,均由品牌21maison提供。这种木材具有出色的防潮和抗损性能。其制品外观时尚、高档且持久耐用。



用餐区域采用圆形木质餐桌和简洁的灰色布艺座椅。黑色框架与室内图形装饰相得益彰,保持了空间的表达力。餐桌布置选用100%棉质桌布、优雅的高脚杯、马克杯和盘子,来自意大利品牌Coincasa。餐具与纺织品共同营造出独特且时尚的组合,所有配件都完美协调。



宽敞的空间内设有豪华壁炉区。坐在舒适的沙发上,可以欣赏壁炉火焰和全景窗外的风景。亮红色靠垫和烛台来自Coincasa,为空间增添活力与动感。由同一意大利品牌提供的编织厨房垫、装饰性枝条花瓶、篮子、首饰盒等,为空间注入温馨与美感。




房屋设有两间卧室。每间卧室均配有舒适的双人床,透过全景窗可欣赏自然景色。床铺配有来自21maison的优质缎面床品——这些套件因其品质而广受世界顶级酒店认可。木质搁板兼具梳妆台和紧凑型办公桌功能,可用于放置笔记本电脑。黑色插座和开关在白色木质墙面背景下为卧室增添温馨感。智能家居系统确保舒适便捷的使用体验。






房屋内设有一个小型办公书房,配有沙发,可根据需要转化为客房。为方便客人,房间设有独立入口。明亮的装修成为蓝色软装的理想背景,而黑色元素则突显其美感与深度。




黑白配色的浴室设计优雅且逻辑完整。墙面上内嵌式混合水龙头的简洁设计营造出空间的空灵感和纯净感。浴缸呈现出现代甚至略带未来感的外观。对比纹理搭配为空间增添体积和质感,同时保持色彩的宁静。例如,来自Coincasa的衣物收纳篮、21maison柔软的毛巾和其它配件轻松营造出SPA氛围,使室内功能性强、时尚且富有吸引力。



房屋内设有宽敞的露台,配有时尚悬挂式扶手椅。户外烧烤区则为温暖的秋季夜晚提供了舒适的户外聚会空间。这里特别实用的是温馨的毯子、小物件篮和意大利品牌Coincasa提供的烛台灯。这些设计让房屋充满温暖与好客氛围。带有意大利风格的精美制品成为房屋的点缀,彼此协调并营造出令人流连忘返的氛围。





任何人都可以参观Stokmann房屋。它位于“DoubleHome”公司在Berezovaya Allee(Shiryaevo村)的展览空间。详情请见链接。
Need a renovation specialist?
Find verified professionals for any repair or construction job. Post your request and get offers from local experts.







