巧妙改造彼得堡26平方米的小公寓
设计师阿纳斯塔西娅·基谢列娃成功实现了对居住空间的有趣设计构想。任务并不简单:需要将狭小的26平方米改造成宽敞舒适的生活空间。
这项工作的难度不仅在于无法进行重新布局,还因为这套公寓位于圣彼得堡历史中心的河滨大道上。
在这种情况下,如何既保留“时代精神”,又为室内增添亮点呢?最终实现了宽敞的厨房区域、舒适的办公角落和充足的储物系统。请继续阅读,了解具体实现方式。

原本状况这套公寓所在的房屋是一座现代风格的建筑,由建筑师N.K. 普拉涅希科夫于1910年设计建造。2001年,该建筑被列入城市最重要的文化地标名单。
年轻业主购买的这间小工作室原本装修简陋,显得单调乏味。那么,拥有河滨大道、BDT剧院、桥梁和圣三一教堂穹顶景观的公寓怎么会单调呢?为了使住宅与所在位置相匹配,业主决定对其进行翻新。
由于房屋具有文化属性,100%的重新布局不可行,因此所有房间都保留在原位。所有管线和整体装修均进行了翻新。
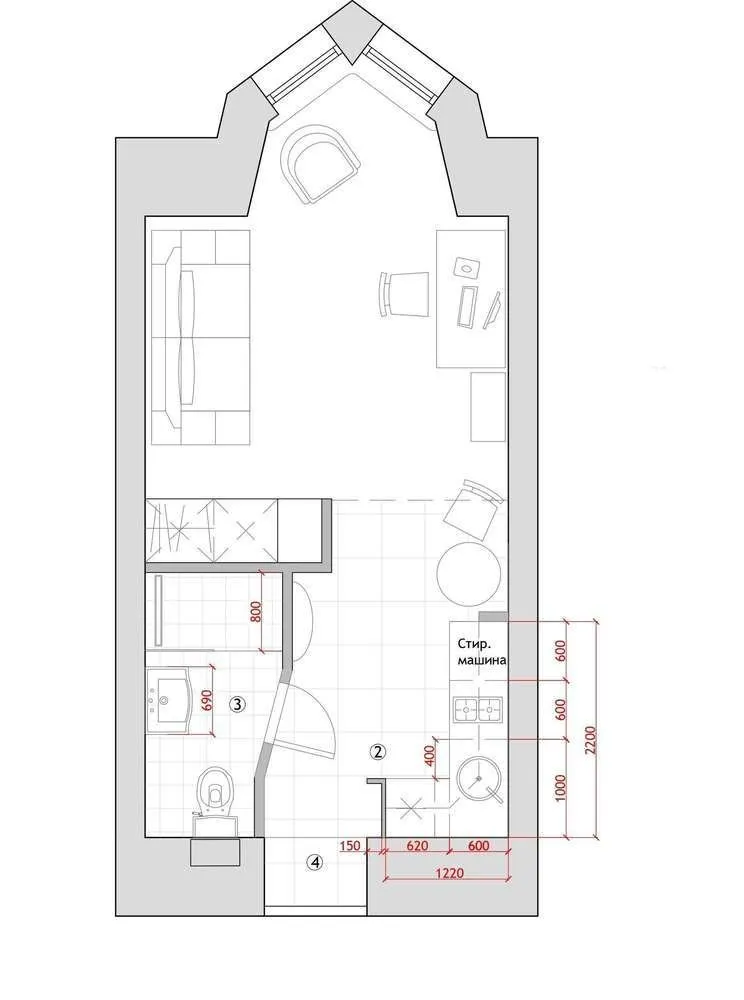
平面布局
厨房设计设计团队在厨房布置方面遇到了主要难题。厨房一侧是门厅,另一侧是工作角落,而卫生间甚至没有洗衣机的空间。最终,厨房下方区域整合了内置洗衣机、小型冰箱、抽屉式储物柜和大角度储藏盒,用于厨房台面下的日常用品。

厨房装修方面,设计师稍作尝试,融合了不同质感。例如,在橱柜区域使用了马赛克瓷砖,而在厨房区域则采用经过磨损处理的陶瓷砖。聚氨酯窗帘和踢脚线突显了原本就严谨的比例感。厨房墙面与沙发区域分别采用与墙面同色和鲜艳蓝色装饰砖,为空间增添了轻松与新鲜感。
储物系统设计由于这间小工作室被设计为长期居住使用,因此必须提及储物系统的安排。入口处设有专门的衣帽间隔断。高度为3.4米的衣柜完美容纳了主要储物空间。

有趣之处:该衣柜并未使用常规门,而是采用了窗帘。这一决定并非偶然,因为推拉门和折叠门并不方便开启。上层架子可放置行李箱,左侧放吸尘器、熨斗和熨衣板,右侧则存放其余衣物。


就这样,在没有过多奢华和复杂技术操作的情况下,原本简单乏味的小公寓变成了充满复古元素的温馨且独特的工作室。


Need a renovation specialist?
Find verified professionals for any repair or construction job. Post your request and get offers from local experts.







