如何将一居室改造成两居室?
在43平方米的空间里能否找到独立卧室、客厅、宽敞厨房和餐厅的位置?甚至储物问题也轻松解决
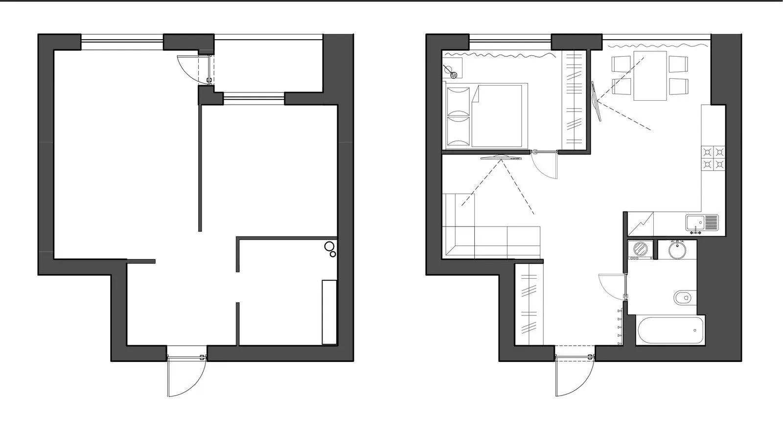
在布置这套公寓时,设计师安娜·莫贾罗为业主提供了五种改造方案。只有将阳台与主空间合并,才得以在43平方米的面积内容纳所有必需功能。如今这里不仅可以供自己休息,还能接待客人。看看他们是如何实现这一目标的。
面积43 平方米房间数1预算210 万卢布
拆除厨房与客厅之间的隔墙
由于对业主而言,首要任务是设置独立卧室空间,因此厨房与客厅被合并。此举不仅为房间增加了光线和空气流通,还视觉上扩大了小玄关的空间。



将阳台连接至厨房
在获得阳台改造许可后,所有布局都安排妥当。阳台位置被改为一个小型餐厅,配备可容纳5至6人的餐桌。


打造独立卧室
这是业主的主要要求。在小卧室中设有窗户(因此拥有自然光线)、双人床以及整面墙的衣柜用于衣物收纳。这是衣帽间的完美替代。

最终效果如何?

Need a renovation specialist?
Find verified professionals for any repair or construction job. Post your request and get offers from local experts.







