如何在标准卫生间中合理布局:3种成功的规划方案
我们来看一个实际案例,如何将开发商提供的不舒适的卫生间改造成配备齐全的舒适浴室
常见的情况是:开发商交付给您的房屋配备标准浴室,其中马桶和洗手台位置不便,没有洗衣机空间,而且管道弯曲沿着所有墙壁延伸。
一些人只能被迫接受这种情况。而另一些人则会寻求专业人士的帮助——这是明智的选择。在我们这个案例中,设计师提出了三种合理且实用的卫生间改造方案。下面我们详细说明。
娜塔莉亚·沙姆舒里娜 室内设计师 她的灵感来源于人们的生活方式、品味和个性
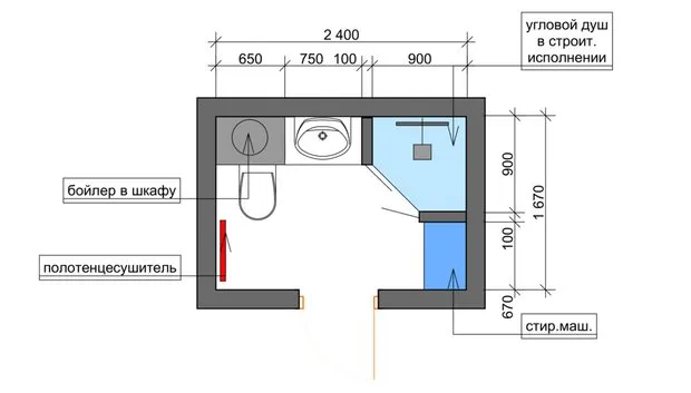
条件:一个2.4×1.7米的矩形空间,总面积为4平方米。
需要布置的内容:- 淋浴间(或浴缸),
- 挂墙式马桶,
- 洗衣机,
- 热水器,
- 存放清洁用品的柜子,
- 衣物篮,
- 装饰区域(展示架或壁龛)。
这种布局的主要优点在于所有管道仍保持原位,如开发商所设计:热水毛巾架、马桶、洗手台和淋浴用水管。
在这种布局下,洗衣机放在方便的位置,但为了连接排水管,需要在两个墙面布设管道。然而这种解决方案并不总能获得批准。
带浴缸的卫生间在这种布局下,可以设置一个750×1600毫米的大浴缸、宽敞的台面和储物柜。此外,还可以在整块台面上挂一面宽大的镜子,从而在视觉上扩大小卫生间空间。
缺点是需要移动马桶和毛巾架的排水管道,这会在预算中增加额外费用。
带淋浴间的卫生间由于玻璃隔断,淋浴间卫生间看起来更宽敞。在这种布局中,所有管道仍保持原位:热水毛巾架、马桶、洗手台和淋浴用水管。
不太方便的一点是,洗衣机和热水器正对着马桶放置——这意味着必须选择小型或顶装式洗衣机。

我们认为这三种方案都非常成功,适用于其他标准卫生间。娜塔莉亚的客户最终选择了第三种方案。

该卫生间的装修采用了瓷砖与涂漆相结合的方式。选用的亮色调木纹瓷砖与冷灰色涂料形成对比。地面铺了黑白双色图案的瓷砖。
白色门板的挂墙式储物柜搭配木质台面,其颜色和质感与装饰层一致。上方是一面圆形镜子,带有装饰性灯光。淋浴区旁边还留有挂式储物柜空间,下方放置了一个编织的衣物篮。



Need a renovation specialist?
Find verified professionals for any repair or construction job. Post your request and get offers from local experts.







