新楼一居室公寓改造:如何实现的
尽管这间公寓只有一扇窗户,设计师还是成功打造了一个舒适且实用的空间
最近,我们介绍了基于亚历山德拉·尼古林娜设计项目的单间公寓内部装修,今天我们将更详细地讲述其改造过程。客户收到的是一个带独立厨房和两个浴室的一居室公寓。专业设计师对空间进行了完全重构,并设计了厨房-客厅、卧室和衣柜。我们来详细介绍。
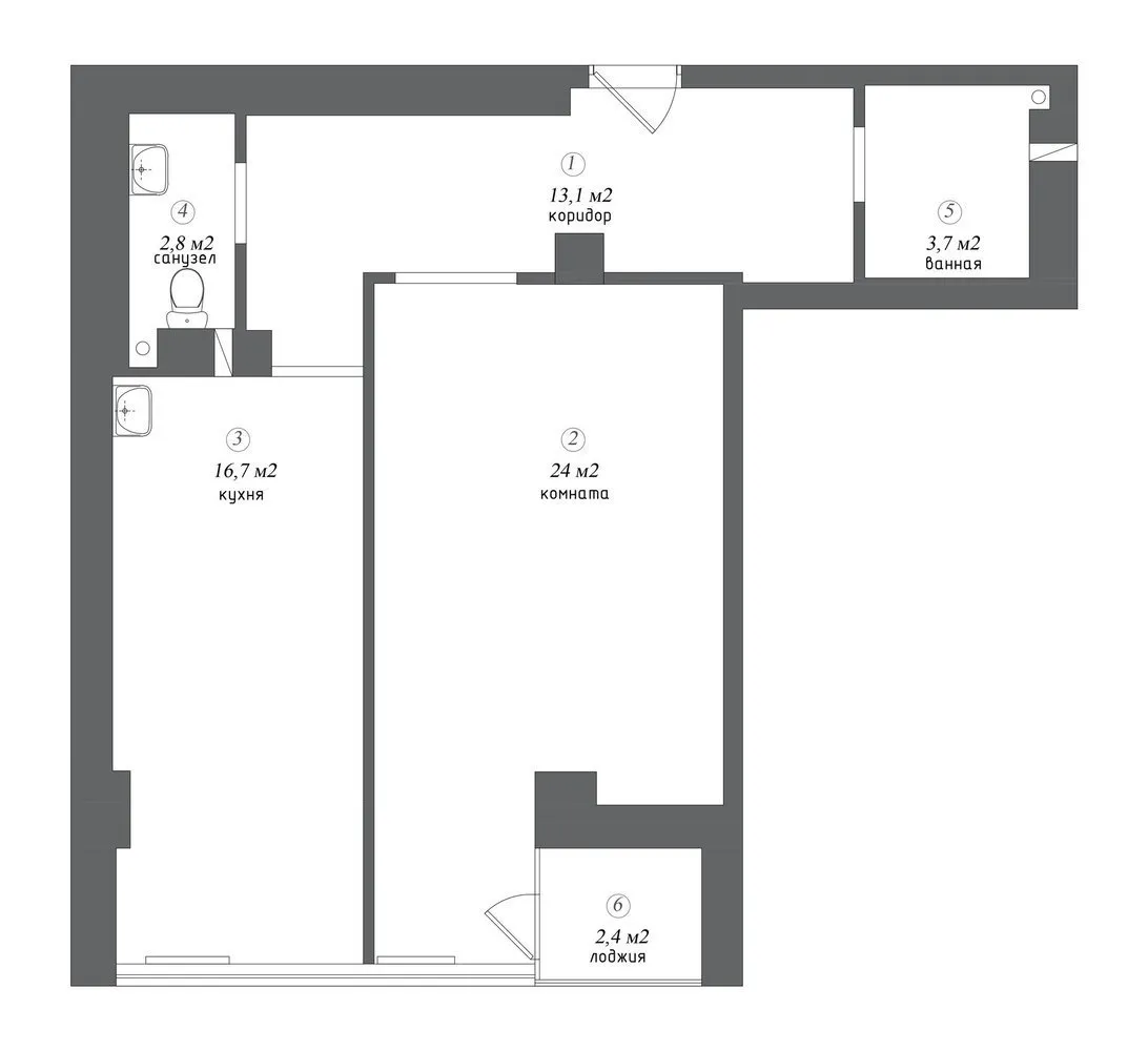
关于这套公寓我们知道什么?房间数1面积63平方米层高2.9米
厨房与客厅一体化
最初的设计是独立的厨房和客厅。设计师建议将部分房间与厨房合并,打造宽敞的起居用餐区。这里足够放置一个大型线性橱柜和一个舒适的休闲区域,配有电视。
房间内还有一个小凹槽——这里安装了壁挂式衣柜和工作区,方便在家办公。
卧室布置在公寓中央通过窗帘与主要区域隔开:当窗帘关闭时,仿佛房间里有一扇窗户。卧室中还放置了衣柜,用于存放日常衣物。
扩大浴室通过走廊扩展了浴室面积,现在成为一个完整的淋浴间。不过没有空间放置洗衣机——它被移到了衣柜中。
设置洗衣区的衣柜
为此,利用了第二个浴室的空间——因为第一个浴室扩大后,第二个变得多余。这个房间被布置为衣柜,用于存放大部分衣物以及洗衣区。
改造的结果如何?
Need a renovation specialist?
Find verified professionals for any repair or construction job. Post your request and get offers from local experts.







