如何进行经济实惠的装修:专业人士的建议
我们解释了如何在墙面和地板装修以及大型家具上省钱,基于一个已完成的室内设计项目
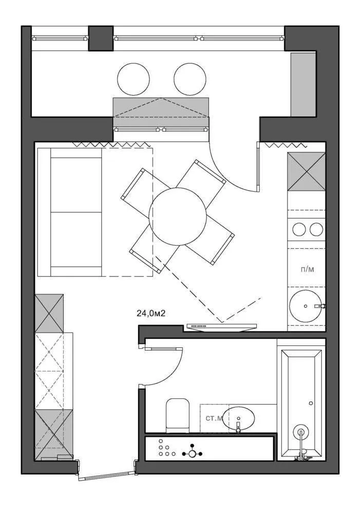
塔玛拉·基谢列娃为一套22平方米的出租公寓进行了装饰。这个空间需要显得年轻、现代且吸引未来的租客。此外,它还必须允许快速更新内部装修。整个装修(包括粗装和细装工作及家具)花费了130万卢布。设计师分享了帮助她节省预算的技术。
塔玛拉·基谢列娃 - 专家 - 室内设计师,MArH-I毕业生
简单布局解决方案
主要规则:减少隔断 = 更少的门,更小的涂漆面积,更少的壁纸卷数,更低的成本。最重要的是,更多的开放空间。在可能的情况下,将厨房与客厅、餐厅或走廊结合。
专业提示: 使用颜色、质感、家具、照明和纺织品来划分这些空间。
家具布局图经济实惠的墙面处理
人们普遍认为,贴壁纸比刷漆更便宜,因为它不需要良好的表面平整度。然而,并非总是如此。在使用过程中,你不可避免地需要更新墙面的某些部分(例如,你的孩子可能会突然展现出艺术天赋并在墙上画画)。如果你有壁纸,你将不得不把整个房间的壁纸撕掉、重新打底并贴上新壁纸。

选择可擦洗的普通颜色油漆,你就不会面临频繁重新贴壁纸的问题。只需清洗脏污区域或仅重新涂刷一面墙,而无需拆除任何壁纸。或者,你也可以只用对比色涂刷那面“受损”的墙。
专业提示: 选择覆盖效果好的油漆,确保即使只涂两层也能呈现出良好的颜色。使用壁纸作为强调墙。

预算地板
在整个公寓中使用一种材料(卫生间和厕所除外)更好。你购买的单一类型材料越多,越容易获得折扣和有利的送货条件。
专业提示: 在预算装修中,你可以在走廊和厨房使用33级复合地板。在安装过程中用专门的复合地板密封胶密封接缝。在小公寓中,你可以使用仿木纹陶瓷石作为全屋地板。为了使空间更舒适,可以在厨房和卧室区域加入地暖。通过用“树形”图案铺设陶瓷石,可以营造出类似拼木地板的外观。相比昂贵的拼木地板的优势:价格更低、使用寿命更长、维护更容易。

仅需两种照明方案
照明方案越多,装修成本就越高:需要更多的布线和开关。在预算解决方案中,最好只规划两种照明方案:“工作用主要照明”和“放松/浪漫晚餐时间”。对于工作照明,你可以使用嵌入式射灯或表面安装灯具,均匀分布在整个房间中,提供强烈的“工作”光线。这些灯具在家居建材店很容易买到。
作为第二种照明方案,你可以规划一个有吸引力的设计师吊灯、落地灯或一对壁灯,在促销时购买。将吊灯悬挂在厨房岛台上方,把落地灯放在沙发或扶手椅旁边,将壁灯安装在床边附近的墙上。这些物品能营造出正确的氛围和舒适感。

节省瓷砖费用
为了避免瓷砖成为省钱的难题,不要使用超过两种或最多三种类型的瓷砖。首先,制造商对大量材料采购提供折扣。其次,你在运输方面也能节省。
专业提示: 在浴室和厕所中,你可以使用相同的瓷砖铺设地板和靠近浴缸或马桶的强调墙。为了增加变化,在地板和墙上铺设瓷砖时可以制作不同的图案。其他墙面可以直接用可擦洗的油漆涂刷。剩余的瓷砖可用于厨房后挡板。


正确的材料计算
始终检查建筑商提供的材料用量估算。如果你没有带有装修材料清单的设计方案,应自己计算墙面面积和踢脚线周长。只需测量房间的周长并乘以墙高。然后减去窗户和门的面积,即可得到总墙面涂刷面积。所有油漆都标明了每平方米的材料用量(升)。你可以轻松计算出需要多少桶油漆或多少卷壁纸。
专业提示: 自己购买清洁材料,而不是留给建筑工人或与设计师一起购买。这样可以确保采购的质量和数量,并能够谈判折扣。

标准尺寸家具
从装修阶段就开始规划厨房和橱柜家具的购买。这有助于避免为非标准尺寸的家具支付过多费用。记住,成品家具总是比定制家具便宜。创建一个购买最大和最必要物品的清单。确保用卷尺现场检查选定家具的尺寸。
专业提示: 许多网站都有在线家具规划工具,你可以根据房间尺寸规划家具布局。设计师灯具可以被复制品替代。
Need a renovation specialist?
Find verified professionals for any repair or construction job. Post your request and get offers from local experts.







