重新布置小户型一居室:3种方案
如何在仅24平方米的空间里容纳所有舒适生活的必需品?设计师提出了三种布局方案——快来查看并投票选出你最喜欢的
小空间,不是问题。对于面积为24平方米的微型一居室公寓,建筑师安娜斯塔西娅·沙拉波娃准备了三种布局方案。她在其中安排了一个带全尺寸床的客厅、一个设有用餐区的厨房、一个工作区以及储物系统。更多详情如下。
安娜斯塔西娅·沙拉波娃 — 专家。建筑师和室内设计师,毕业于MAARHI
条件
公寓面积:24平方米
层高:3.1米
房间数:1
卫生间:1
厨房:有电力供应
住户:公寓由一位计划将其出租给一个人或一个家庭夫妇的人购买。
偏好:安排所有生活必需品,同时不要忘记储物系统。

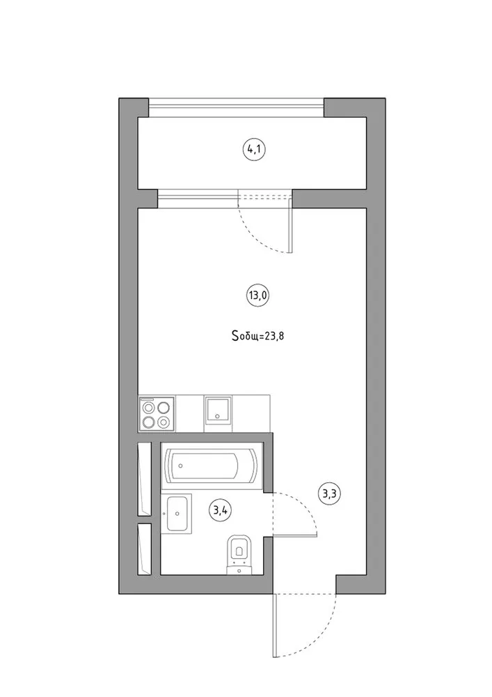
方案一
- 在起居区,厨房和休闲区域被安排在一起。所有家用电器(冰箱、炉灶和烤箱、洗碗机和水槽)被线性布置。这里还有放置电视的空间。吧台代替了餐桌。
- 为了节省空间,安装了可拉出的沙发。留出了足够的空间放置一个大衣柜。
- 通过附加并保温阳台来扩大房间空间。在那里设置了一个工作区和小型储物系统。
- 由于公寓面积非常小,卫生间未扩大。安装了淋浴间、马桶、带柜子的洗手台和洗衣机。
- 入口厅通过一个小隔断而未设门以节省空间。甚至有足够空间放置一个带衣服的大衣柜。

2020年流行色:如何使用及搭配建议
您是否已经听说品牌Tikkurila命名了即将到来的一年主色调?我们解释如何在公寓或房屋内部使用它,并分享来自我们项目的启发性想法
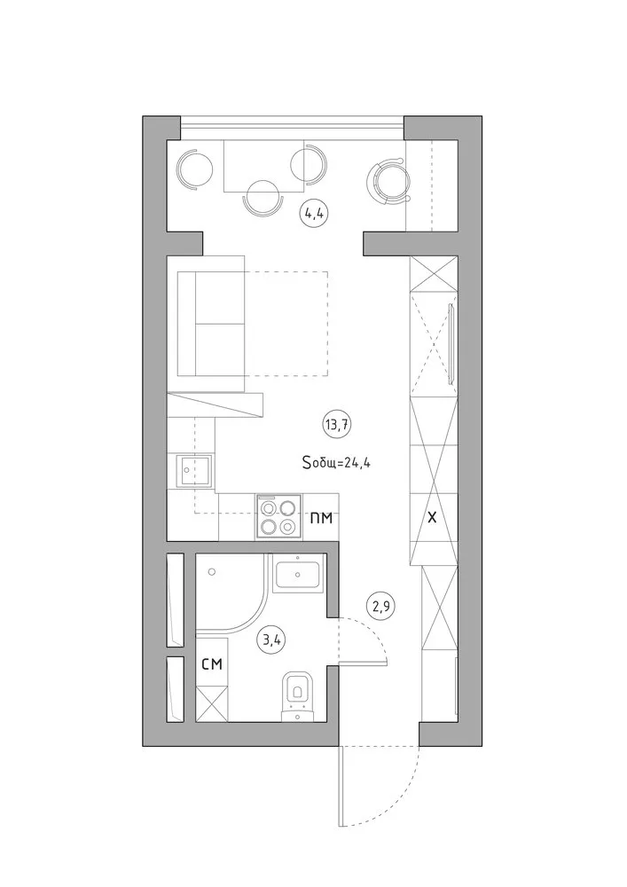
方案三
- 厨房橱柜放在角落——也留出了放置家用电器的空间。
- 卧室区域通过一个高高的开放式搁板与厨房隔开。
- 在附加的阳台上,除了工作区外,还放置了一张小餐桌。如有需要,可以移动到沙发旁边。
- 卫生间区域未做更改,但放置了一个小型储物系统。
- 入口厅没有通过隔断与客厅分开——储物系统和柜子呈一行排列。其中一个衣柜中嵌入了冰箱。

Need a renovation specialist?
Find verified professionals for any repair or construction job. Post your request and get offers from local experts.







