设计对决:标准浴室中放置洗衣区的两种方式
设计师们被要求规划一个标准浴室的布局,以容纳洗衣机、烘干机以及三口之家所需的一切。
对于设计师娜杰达·莫佳切娃和玛格丽塔·福明来说,挑战是在两居室公寓的标准浴室中打造一个舒适且实用的空间。他们还需要在其中安置洗衣机,如果可能的话还要有烘干机。看看他们提出的解决方案,并为你喜欢的投票。
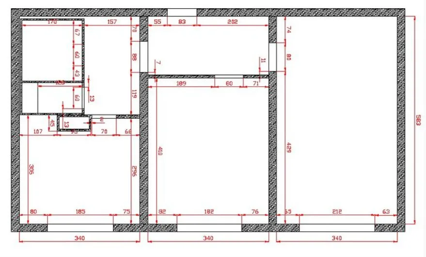
设计师任务书:浴室位于КОПЭ系列板楼中,浴室和卫生间面积分别为2.9平方米和1.1平方米,家庭成员为三人,包括青少年的夫妻家庭。
КОПЭ系列两居室公寓测量图
玛格丽塔·福明的设计
玛格丽塔·福明,室内设计师。偏好从设计到实施全程参与的项目,唯有如此才能实现让客户多年满意的成果。
关于布局
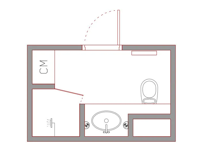
此公寓仅住三人,因此我将卫生间与厕所合并。这种设计使空间更大、更实用。
入口对面是一面墙挂式洗手台,配有水槽和旁边的马桶。通过使用特殊的低矮马桶安装设备,我使洗手台台面与安装架处于同一高度。这创造了统一便捷的表面。
用宽敞的淋浴间代替浴缸,洗衣机安装在距地面70厘米的壁龛中,下方放置洗衣篮,上方设置储物架。

关于风格
在色彩搭配上,我选择了几种灰色调与天然木色的组合。墙面瓷砖的图案定义了室内风格——美式经典。地板铺的是类似木材纹理的瓷砖。您可以在公寓其他房间中找到相同色调和质感的地板,从而在视觉上统一整个空间。
为了镜子区域的额外照明,我选择了带有防水保护的浴室灯——IP44等级。这款灯具创造了所需的对称感,同时也是极佳的装饰元素。
总的来说,室内设计显得宁静但不沉闷。我认为它将吸引所有家庭成员,并且不会过时。

您需要:
集成灯具 Novotech “Damla” 370386
陶瓷瓷砖 Wood Natura,尺寸15x60厘米
带架子的毛巾架 M5,尺寸80x50厘米
悬挂式马桶 AM PM Jump
高喷头洗手盆混合器 Nove
壁挂式灯具 Escada
淋浴套装 Grohe Vitalio Comfort,3种模式,喷头10厘米,软管175厘米
娜杰达·莫佳切娃的设计
娜杰达·莫佳切娃,室内设计师。她主要从分析和逻辑角度出发,挖掘每个项目最大的潜力。
关于布局
有青少年的家庭通常更喜欢淋浴而非浴缸,且倾向于将卫生间与厕所合并。这使浴室更具功能性和舒适性。
КОПЭ系列的板楼不仅允许拆除卫生间和厕所之间的隔墙,还能利用宽敞的走廊扩大浴室面积。为此,您可以调整厨房门的开口位置,因为卫生间和厨房之间的墙体是非承重墙,这使得操作变得简单。
通过这种扩展,两个小房间变成了一个宽敞的5.75平方米空间。该空间容纳了家庭日常护理所需的一切,包括洗衣区配有洗衣机和烘干机,以及一个大型储物柜用于存放家庭物品。管道检修面板也隐藏在该储物柜中,但可以轻松取用。

在室内设计中有一条原则:人们应始终优先考虑美观。因此,我将引人注目的洗手台区域直接设置在入口正对面,并将马桶放置在其右侧,使其进入时不会首先映入眼帘。马桶后方是一个橱柜,用于安装设备并设置一个小架子,您可以放空气清新剂或将手机远离水源。在宽敞的120x80厘米淋浴间中,您可以舒适地淋浴。

关于洗衣区
将空间结合的最大优势在于专用的洗衣区域和家庭物品储物区。该区域隐藏在入口左侧高米白色门后。通常放在家里、阳台或角落的东西都收纳在一个柜子里,这非常方便!
热水器放在柜子顶部以便于取用,中部下方用于存放脏衣物,上方储物架则放置家用化学品、毛巾和熨斗。熨衣板放在相邻的柜子部分。真空吸尘器旁可以放置一个小梯子,便于取用。

关于风格
越来越多的客户要求现代室内设计中融入一些其他风格元素——古典或乡村风。这是我设计的基础原则。
浴室下半部分使用对比黑色棕色陶瓷瓷砖,因为这是大多数可能弄脏墙面的活动发生的地方。上半部分则涂成令人愉悦的桃色,与淋浴区的马赛克相呼应。
浴室是您可以使用鲜艳色彩的地方,如果您喜欢的话。由于在该房间中,不像客厅那样长时间逗留,您不会因鲜艳颜色而感到厌倦。

您需要:
悬挂式马桶 AM PM Jump
排水龙头 “Omega 30”
淋浴底盆 Orange Solo Slide Acrylic,尺寸120x80厘米
单管洗手盆混合器 “StartEdge MS”
淋浴门 Orange Solo Slide,120x80厘米
储物篮 “Knitting”,容量7升
热水器 Electrolux Maximus 不锈钢,容量80升
淋浴套装 Grohe Vitalio Comfort,3种模式,喷头10厘米,软管175厘米
封面:卡季和叶戈尔·沃赫因的设计项目
Need a renovation specialist?
Find verified professionals for any repair or construction job. Post your request and get offers from local experts.







