成功改造单间公寓:如何实现
如何在仅35平方米的空间中容纳完整的厨房、餐厅、客厅和卧室?设计师只用了四个步骤
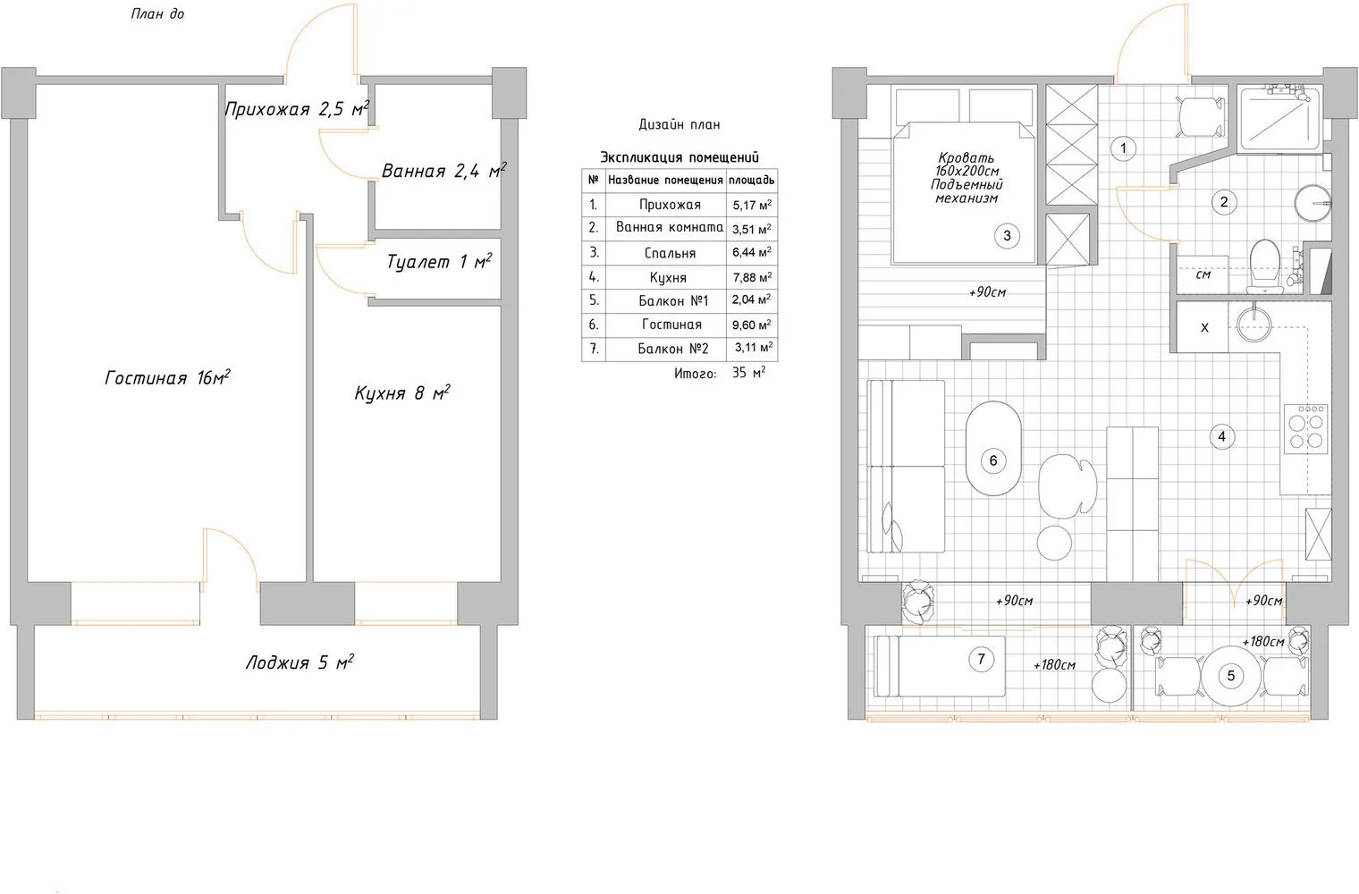
我们最近介绍了由Julia Telnova设计的单间公寓内部装修。让我们看看她是如何改进布局并扩大实用面积的。
关于这套公寓我们了解什么?面积35平方米房间数2预算230万卢布

厨房与客厅一体化
原始布局包括一个八平方米的小厨房和一个独立的客厅。为了功能性和增加空间感,这两个房间被合并成一个。它们之间仅由开放式书架分隔。

附带阳台
餐厅区域被移至此处。暖气片更换为垂直型,窗户更换为全景滑动隔断。这样当有客人来访时,空间可以轻松扩展。
专用卧室区域
由于客厅现在有足够的空间,房间的一部分被隔断分出一个卧室区域。隔断部分采用玻璃材质以确保卧室全天明亮。房间虽小,但非常适合双人床及带升降功能的储物空间。
多功能浴室
空间不再显得局促或不适。此外,现在的多功能浴室还能容纳洗衣机和小型储物系统。

最终成果如何?

Need a renovation specialist?
Find verified professionals for any repair or construction job. Post your request and get offers from local experts.







