在板式房屋中设计公寓:3种布局方案
设计师巧妙地安排了空间,并提供了几种布局解决方案。看看同一套公寓可以呈现出不同的外观
为了使公寓空间尽可能舒适和实用,SOVA Interiors的设计师提出了几种布局选项。通过一些创意,一个68平方米的公寓可以容纳家庭办公室和用餐区。我们提供详细信息。
Sofya和Valeria是设计专家,莫斯科国立艺术学院S.G. Stroganov的毕业生,SOVA Interiors设计工作室的创始人
简要概述
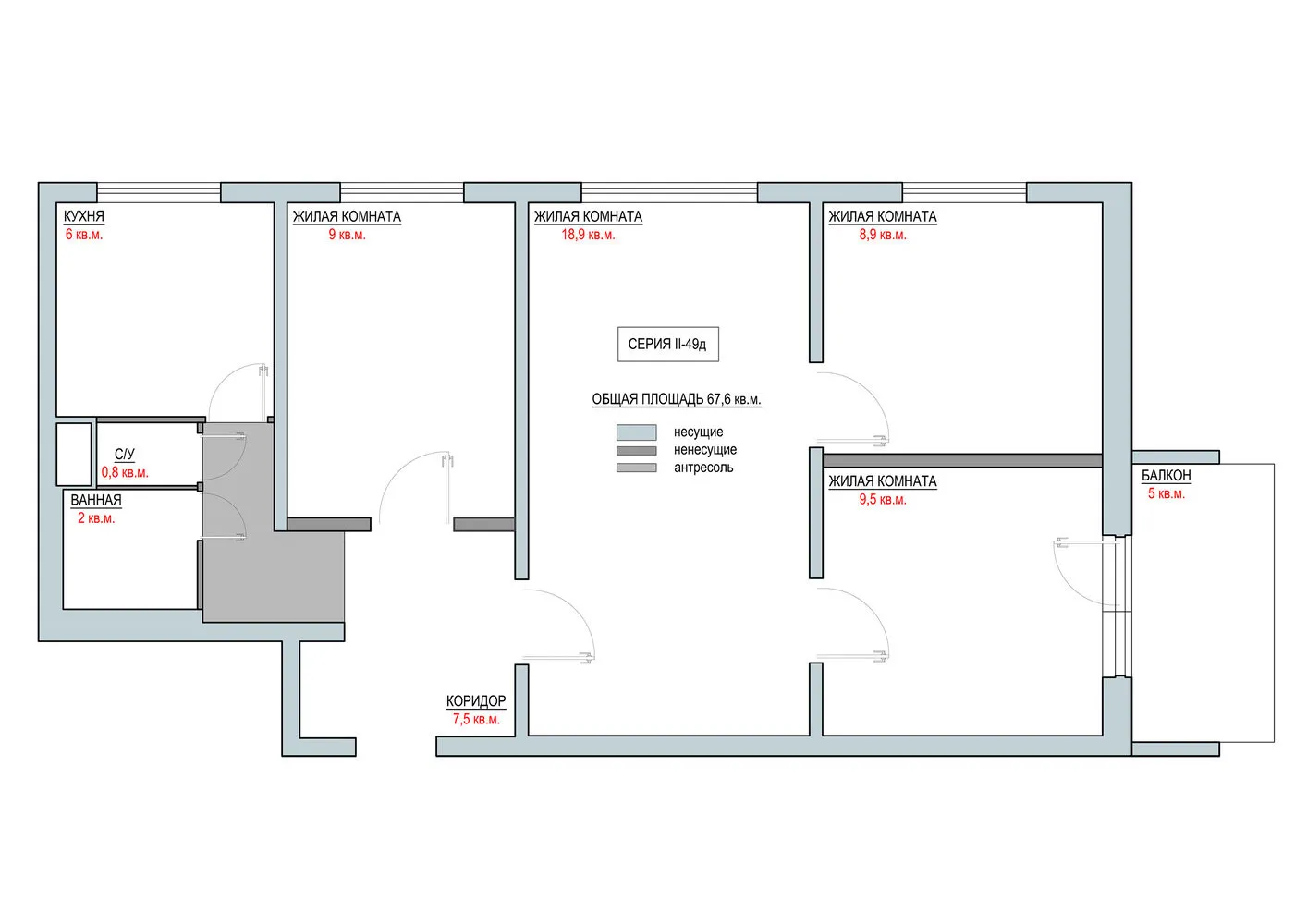
这套II-49系列板式房屋公寓有四间房。配有独立浴室、过道和阳台。看起来空间似乎足够,但如果没有合理的规划,即使是宽敞的房间也可能变得拥挤且不便。让我们与专业人士一起看看最常见的布局方案。

方案一:适合居家办公的夫妻家庭
- 扩大厨房工作区——将入口移至客厅一侧,在承重墙上开洞并加固。
- 每个家庭成员都有自己的工作区。在独立的办公室里,我们安装了一张桌子、一个大书架和一张舒适的阅读椅。
- 将办公室从衣柜移至过道——即改到了过道区域。
- 公寓应有充足的储物空间——阳台和过道。我们设计了一个隐藏式衣帽间。
- 合并浴室并设置淋浴间,为洗衣机和厨房柜子留出位置。

方案二:适合有孩子的家庭
- 用玻璃滑动隔断将客厅与过道分开。搭配可拉出的沙发,入口大厅可以变成客房。
- 在厨房中定制了一个冰箱和电烤箱的单元柜。
- 大房间是父母卧室。除了宽敞的内置衣柜外,还留有梳妆台和电视区及边柜的空间。
- 为儿童房选择了中央房间。我们在这里放置了一个由多个模块组成的储物系统:桌子、电视区和衣柜。入口左侧设置了一面瑞典墙。
- 在保温阳台上设立了一个工作区,以便父母需要时在家办公。
- 为安置洗衣机,我们合并了浴室并改变了马桶的位置。

方案三:适合成熟夫妻
- 客厅很少使用,有时客人会过夜。为了舒适,我们在角落放置了一张折叠沙发、电视区和一个大型内置衣柜。
- 在餐厅中,我们安装了一张可折叠餐桌和额外椅子——在有客人来访时非常实用。还有两个玻璃展示柜用于存放餐具。
- 在有阳台视野的房间里,我们设计了卧室。在小面积空间里,只放置了必需品——一张双人床、床头柜和一台平板电视。
- 阳台经过保温处理,改造成冬季花园。
- 在第三间房中,我们设置了一个书房,配有工作区和展示柜,用来存放家庭珍藏。
- 我们没有合并卫生间和浴室——确保每个人都能感到舒适。在浴室中,为了方便,我们增加了洗手台并移动了门。在浴室中设置了带内置隔板的淋浴间。洗衣机仍留在厨房。

封面:由SOVA Interiors设计的项目。
Need a renovation specialist?
Find verified professionals for any repair or construction job. Post your request and get offers from local experts.







