巴塞罗那垃圾房:开放式设计与丰富的色彩
在糖果般的调色板和几乎玩具般的家具之下,是人体工学的室内设计和真正富有创意的想法
在巴塞罗那最古老的街区,这套公寓原本有三个拥挤的卧室、一个小小的厨房和一个昏暗的客厅。而这一切对业主来说完全不能接受——她从事时尚行业。

由于女孩计划独自生活在这里,三个卧室对她毫无价值。她真正需要的是存放和试穿衣服的空间——当然还有新鲜且非传统的设计。

这套公寓所在的建筑建于13世纪。当它被改造成多户住宅时,其历史背景被层层石膏板和灰泥掩盖。因此,在进行新的室内设计之前,建筑师CaSA Colombo和Serboli Architecture决定尝试恢复公寓的原始外观。

通过清理表面处理,设计师发现传统四米高的天花板、独特的横梁以及它们之间的拱门。拱门主题非常受欢迎,因此在厨房台面、吧台和餐桌的曲线中也重复使用。

储物和试衣空间被安排在走廊中。它实际上成为了一个无门的小房间,内部窗户为该空间带来了光线。此外,还有一个宽敞的内置衣柜系统。

至于客用浴室,它被设置在……厨房里。为了实现这一点,设计师创建了一个拱形扩建部分——再次呼应天花板设计——连接在吧台旁边的墙上。

由于创意设计方案,浴室突然成为室内设计的中心元素和主要特色。毕竟,在一个富有创造力的人的公寓里还能找到什么呢!








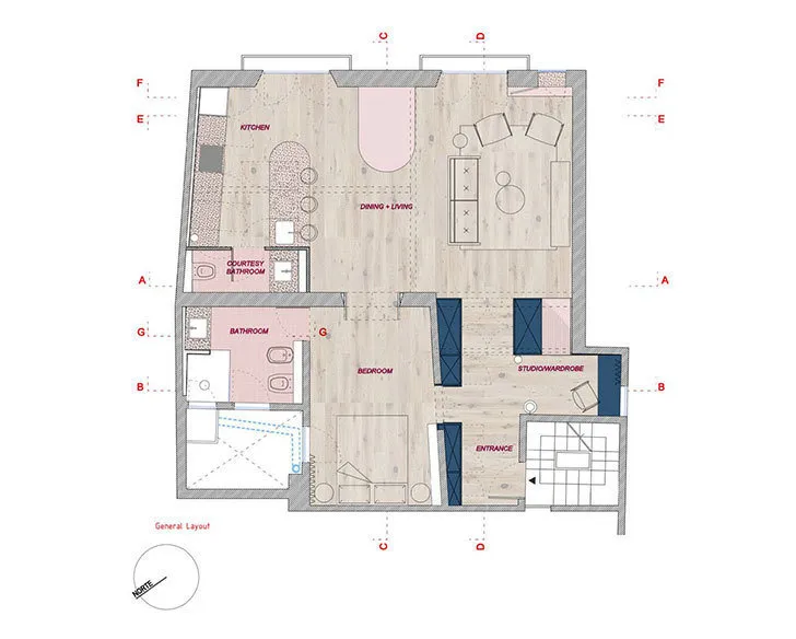
平面图
Need a renovation specialist?
Find verified professionals for any repair or construction job. Post your request and get offers from local experts.







