为有两个孩子的家庭设计的时尚室内装修:Aiya Design项目
了解如何打造美观且实用的空间
即使是105平方米的公寓对于有两个孩子的家庭来说也可能显得局促。特别是如果还需要一个家庭办公室和步入式衣帽间。来自Aiya Design工作室的设计人员为“Symbol”住宅区的一套宽敞公寓开发了解决方案,并展示了如何在保持室内风格的同时使其尽可能实用。
Aiya Lisova — 设计师,Aiya Design工作室创始人,国际设计学院和伦敦切尔西艺术学院Lundall Fernie课程毕业生
项目概述
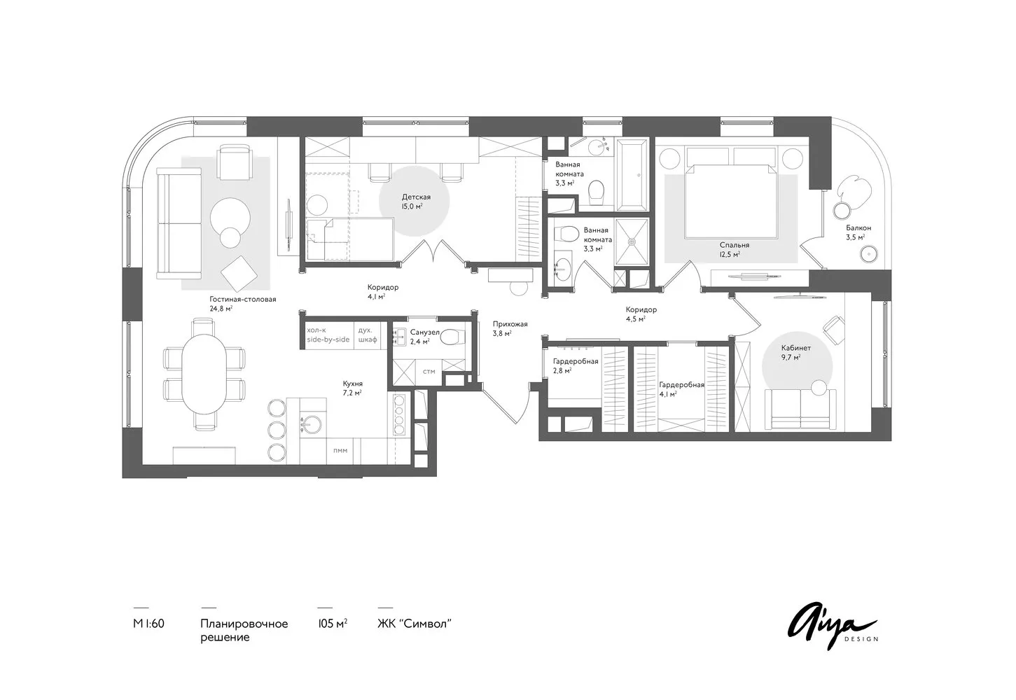
“Symbol”住宅区这套宽敞公寓的窗户朝向三个方向,还有一个额外的好处——可以俯瞰“绿河”公园。这套公寓可容纳三间卧室、客厅和厨房,如有需要,这些空间可以轻松合并。重新规划的可能性仅限于“湿区”的布局,其余部分设计师可以实现任何解决方案。
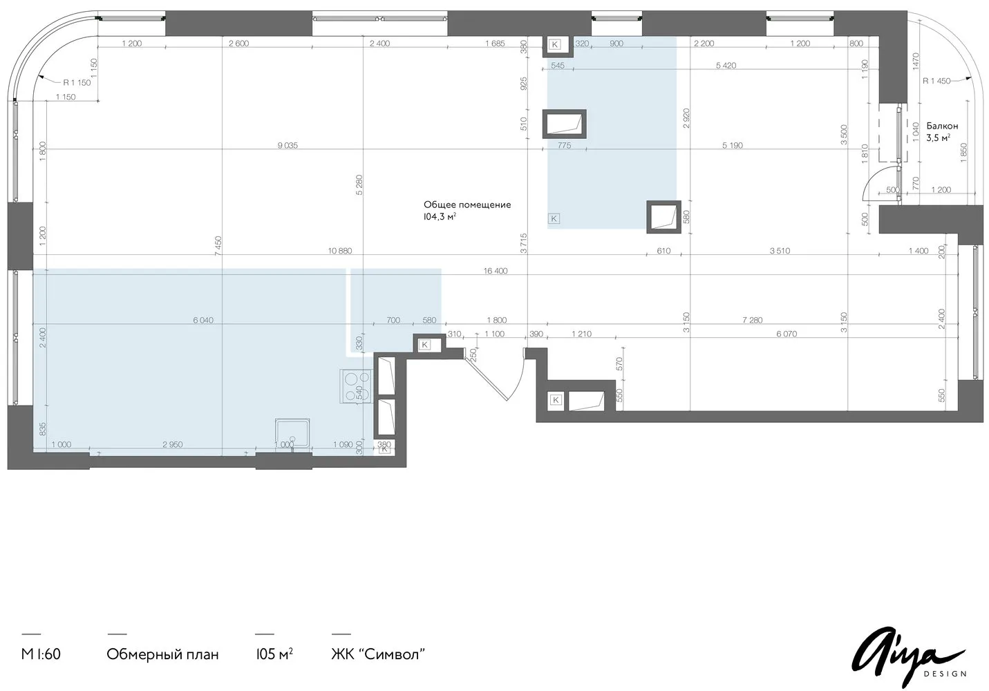
“Symbol”住宅区公寓(105平方米)的测量平面图“Symbol”商务住宅区的发展由英国建筑公司LDA Design和UHA London参与。莫斯科领先开发商Donstroy打造了时尚且实用的居住空间,注重完善的基础设施,包括文化、体育和社会设施,其中包括一个包含鲍曼寄宿学校的教育集群。此外,一条名为“绿河”的公园贯穿整个住宅区。这一切距离环城路仅1.5公里,离“伊里奇广场”地铁站仅五分钟路程。
谁会住在这个室内设计中?
“我们的目标客户是一个有两个三岁和五岁孩子的家庭,”Aiya Lisova说。“父母有时在家办公,所以我们决定为他们设置一个书房。此外,年轻人喜欢和孩子一起度过时光并招待客人。”
设计解决方案介绍
他们没有将厨房、餐厅和客厅分开,而是创造了一个25平方米的宽敞空间供家庭放松和招待客人。厨房呈U形布局,由吧台隔开,从客厅角度看是视觉上隐藏的。餐厅则在视觉上与休闲区相连。
“Symbol”住宅区公寓设计,Aiya Design餐厅的餐桌可容纳6人,折叠式模型可容纳8-10人。与餐桌同轴的位置设有一个展示柜,用于摆放餐具和酒杯。
大户型家庭必备的双门冰箱。在它旁边的一个壁龛中,他们安装了一个内置烤箱和微波炉的柱子。为了充分利用壁龛中的窄台面,他们使用了不寻常的灶台:所有炉头排列成一排。
“Symbol”住宅区公寓设计,Aiya Design公寓右侧完全分配给父母。走廊连接卧室、浴室、步入式衣帽间和书房。卧室将配备床和一对床头柜,以及一个电视柜。
可能可以移除窗台并安装落地玻璃,以视觉上连接阳台。在那里放置一张小扶手椅、一张桌子和一盏舒适的落地灯。
书房窗户旁放置了一张书桌,还有一个书架、电视和折叠沙发,以防客人需要过夜。未来,这个房间可以重新配置为额外的儿童房。
“Symbol”住宅区公寓设计,Aiya Design入口旁边将设有儿童房,配有双层床、窗边的学习和绘画书桌,以及沿墙设置的衣物和玩具存储系统。
房间中央区域是开放的,可以根据孩子们的兴趣和偏好进行调整。
儿童房的双层门允许将房间空间与走廊结合。此外,母亲可以从客厅或厨房观察孩子们。儿童房配有专用浴室。一个独特的解决方案是在窗户附近设置一个带镜面的旋转式洗手台。
除了儿童房和书房,室内几乎没有衣柜。
主要的储物功能由两个步入式衣帽间承担。一个位于卧室对面,另一个位于进入公寓的正中央。入口处无需额外挂杆或鞋柜,所有物品都可以直接放入衣帽间。
带洗衣机的客房浴室隐藏在与墙面颜色一致的隐形门后。洗衣机、烘干机、熨烫板和清洁用品储存在封闭式柜子中。
注意公寓中大理石地板的独特布局。由三种不同石材组成的几何混乱图案从走廊向步入式衣帽间、客房浴室和厨房扩散。如需,自然石材可以替换为大规格瓷砖。室内风格和实用性不会因此而丧失。
封面上展示:Aiya Design项目。
Need a renovation specialist?
Find verified professionals for any repair or construction job. Post your request and get offers from local experts.







