情侣时尚工作室:维多利亚·基奥萨克的设计项目
设计师维多利亚·基奥萨克展示了如何在住宅区“Symbol”中时尚而舒适地布置一个小工作室。现代功能性强的室内设计可从私人卧室转变为宽敞的起居室兼餐厅。厨房被移至走廊中。
维多利亚·基奥萨克 — 设计师。维多利亚·基奥萨克室内设计公司创始人
简要信息
“Symbol”住宅区中公寓的开放式布局允许将厨房移至几乎任何方便的位置并划分空间。高达3.2米的层高使储物系统宽敞。扩大窗户让房间明亮温暖,视野直面维护良好的步行公园。
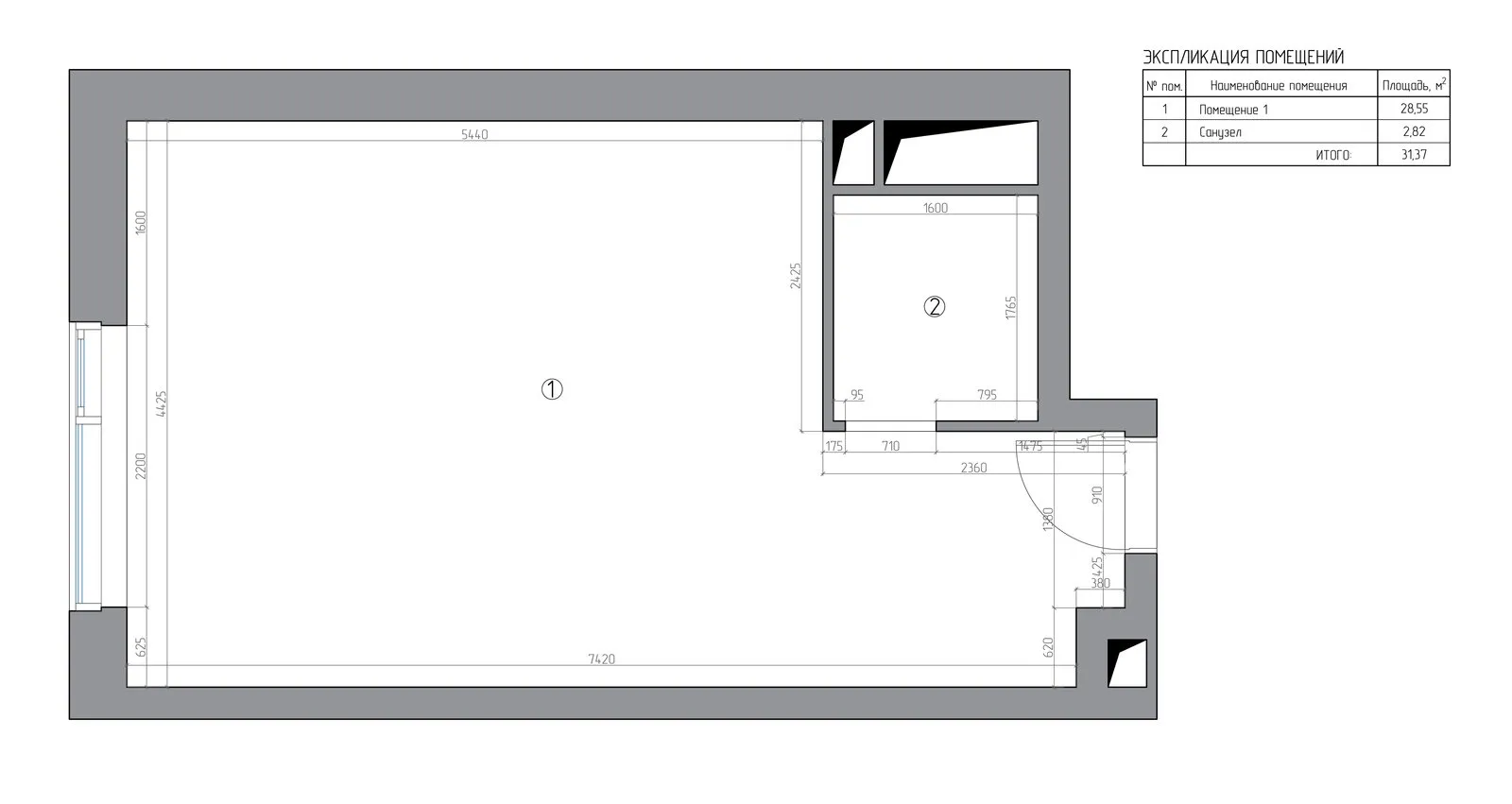
住宅区“Symbol”中工作室公寓的测量平面图(31.4平方米)商务级住宅区“Symbol”是一个设计精良的空间,拥有完善的社交、文化和体育基础设施。该项目由英国LDA Design和伦敦UHA建筑事务所共同设计。
该住宅区位于莫斯科中央行政区边界,距离花园环线约1.5公里。交通便利和地铁临近与绿色庭院及私人公园“绿河”的舒适环境相结合,其贯穿整个住宅区长达两公里。
谁会住在这个室内设计中?
该工作室公寓的潜在居住者是一对热爱招待客人和举办派对的情侣。他们很可能是创意行业从业者或有抱负的年轻人。他们重视室内设计不仅实用,而且美观。工作室应反映出他们的个性和特质——大胆而令人难忘。
关于设计解决方案
维多利亚·基奥萨克并未对单个房间进行分区,而是利用可变形家具创造了多功能空间。此外,她选择了在俄罗斯不常见的布局——将厨房设置在走廊中。
家具布置图,由维多利亚·基奥萨克设计结果是一个面积达4米线性长度的大厨房,并配有内置冰箱。在如此小的公寓中,这是一大奢侈!橱柜延伸至天花板,可以放置所有必要的家用电器、餐具和厨具。
住宅区“Symbol”中的公寓平面图,由维多利亚·基奥萨克设计由于工作室空间不大,合理规划的关键之一是逻辑上和视觉上将卧室区域与入口区分开。
在此案例中,一个特殊的模块化单元不仅在需要时可以变成餐桌区,而且还能“封闭”卧室区域,营造更温馨的氛围。椅子也是可折叠的——可以轻松收纳在橱柜内并隐藏于台面转换器后面。
所有隐藏台面的墙面都被改造成两个独立衣柜——一个供男性,一个供女性。这对情侣来说是一个非常方便的解决方案。
两者之间设有一座装饰性壁炉。这种元素总能为室内增添额外的温暖感。我不喜欢人造壁炉,但漂亮的黄铜门框中放入真实木柴是一个完美的室内装饰元素。

客厅中的沙发也具备变形功能。它可以展开成一张配有舒适、高质量床垫的床。模块化结构允许快速取下沙发靠垫并放下床体。沙发两侧设有书架和装饰架。
在如此狭小的空间中,设计不仅重要,客户便利性同样重要。因此我尽量避免折叠沙发——它们对脊椎极为不友好,也几乎无用。
走廊中还有一个内置柜子,用于隐藏锅炉。在其下方便于存放重物——例如行李箱。浴室非常小,为了扩大空间,设计师将两个墙面设计为镜面——这是一种现代而时尚的解决方案。
住宅区“Symbol”中的公寓平面图,由维多利亚·基奥萨克设计Need a renovation specialist?
Find verified professionals for any repair or construction job. Post your request and get offers from local experts.







