适合有孩子和宠物的家庭公寓:阿莲娜·尤金娜的设计项目
设计师阿莲娜·尤金娜为一间总面积为116平方米的四居室公寓进行了装饰:她提供了一个宽敞且实用的厨房客厅、一个家庭办公室,甚至为宠物设置了淋浴间
现代公寓可以将莫斯科城市生活的所有优势与乡村别墅的舒适度结合起来。阿莲娜·尤金娜展示了如何实现这一点。她选择了一套位于甲级住宅区“象征”的宽敞四居室公寓,并为一个大家庭设计了室内装修方案。让我们来看看?
阿莲娜·尤金娜是一位室内设计专家,也是英国皇家艺术学院的毕业生
快速信息
请注意,“象征”住宅区的这套自由布局公寓原本就规划得相当合理。它有三间卧室、衣帽间空间、三间浴室和一个独立厨房。我唯一觉得的缺点是连接所有房间的走廊长达7平方米。

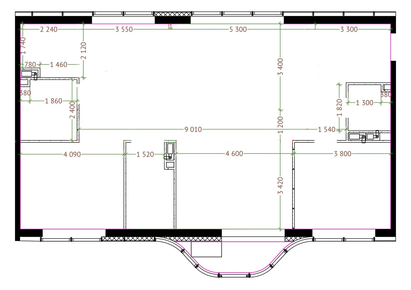
测量平面图,‘象征’住宅区四居室公寓,116平方米
现代商务级住宅区“象征”的设计方案由英国建筑公司LDA Design和UHA London为莫斯科主要开发商Донстрой设计。
它位于莫斯科中央行政区分界线,距离花园环路仅半公里,距伊丽莎白广场地铁站五分钟路程。附近规划了商店、餐厅、咖啡馆、商业空间和创意工作室,并特别注重创建社会、文化和体育基础设施。一条名为“绿河”的公园将贯穿整个住宅区,长达两公里。
谁适合住在这样的室内环境中?
我为自己设计了一个翻新方案,后来发现我的朋友们中也有很多人会觉得它很合适。
关于设计解决方案
我先从家庭办公室开始。近期趋势表明,许多新兴专业不再需要在办公室工作。这不仅适用于室内设计师。当然,有许多很棒的联合办公模式,但它们也各有优缺点。
我支持在家里拥有一个全天候的工作空间。不仅仅是厨房角落、卧室或阳台上的一个位置,而是一个隔离的房间,正如这套公寓的情况一样。办公室应尽可能远离其他区域。一旦我确定了平面图中的空间,我可以继续进一步规划。
客厅是家庭成员和客人最多聚集的地方。因此,这间房间应该是最大的。
为了实现这个目标,我将客厅与厨房连接起来:现在可以在桌子上舒适地坐15人。图中标注了组装后的餐桌。
接下来是卧室。最好把它放在衣柜旁边。然而,紧邻衣柜的一间13.69平方米的房间对于放置一张180×200厘米的床和床头柜来说太狭窄了,更别说想放衣柜和扶手椅了。此外,基于我朋友有孩子的经验,必须为婴儿床留出空间。
因此,紧邻衣柜的房间被改造成儿童房,卧室则成为相邻房间。由于每天穿过儿童房去衣柜不太方便,因此在卧室墙上设置了整面墙的储物衣柜。衣柜将更多地用于存储季节性衣物和鞋子、行李箱、运动装备。
对于这样一个面积来说,两个浴室已经足够了,所以入口处的第三个浴室被改造成洗衣间兼宠物淋浴间。它还用于洗鞋、滑板、自行车和在清洁时装水的桶。因此,原本无用的长走廊减少到了4平方米。现在入口处有了一个宽敞而引人注目的区域,所有私人房间都对客人隐藏。无需争论谁拥有阳台。

‘象征’住宅区公寓布局,由阿莲娜·尤金娜设计
封面:阿莲娜·尤金娜的设计项目。
Need a renovation specialist?
Find verified professionals for any repair or construction job. Post your request and get offers from local experts.







