如何打造温馨的垃圾风格公寓:室内盒子项目
设计师奥尔加·库利科夫斯卡娅-埃什比为住宅小区「Symbol」中最有趣的公寓之一创建了一个设计项目。让我们来看看?
室内盒子服务的创始人奥尔加·库利科夫斯卡娅-埃什比展示了年轻活跃夫妇的现代公寓可能的样子。为此,他们选择了一套位于商务级住宅小区「Symbol」中的宽敞三居室公寓。
该设计解决方案的作者提出了一个符合人体工学的空间布局和时尚的室内设计。预期居民希望即使在莫斯科永久居住时,也能在酒店式客房中保持舒适和功能性。
奥尔加·库利科夫斯卡娅-埃什比 —— 设计师。室内盒子服务的创始人,该服务提供适用于特定客户的多种风格的现成室内解决方案。
简要信息
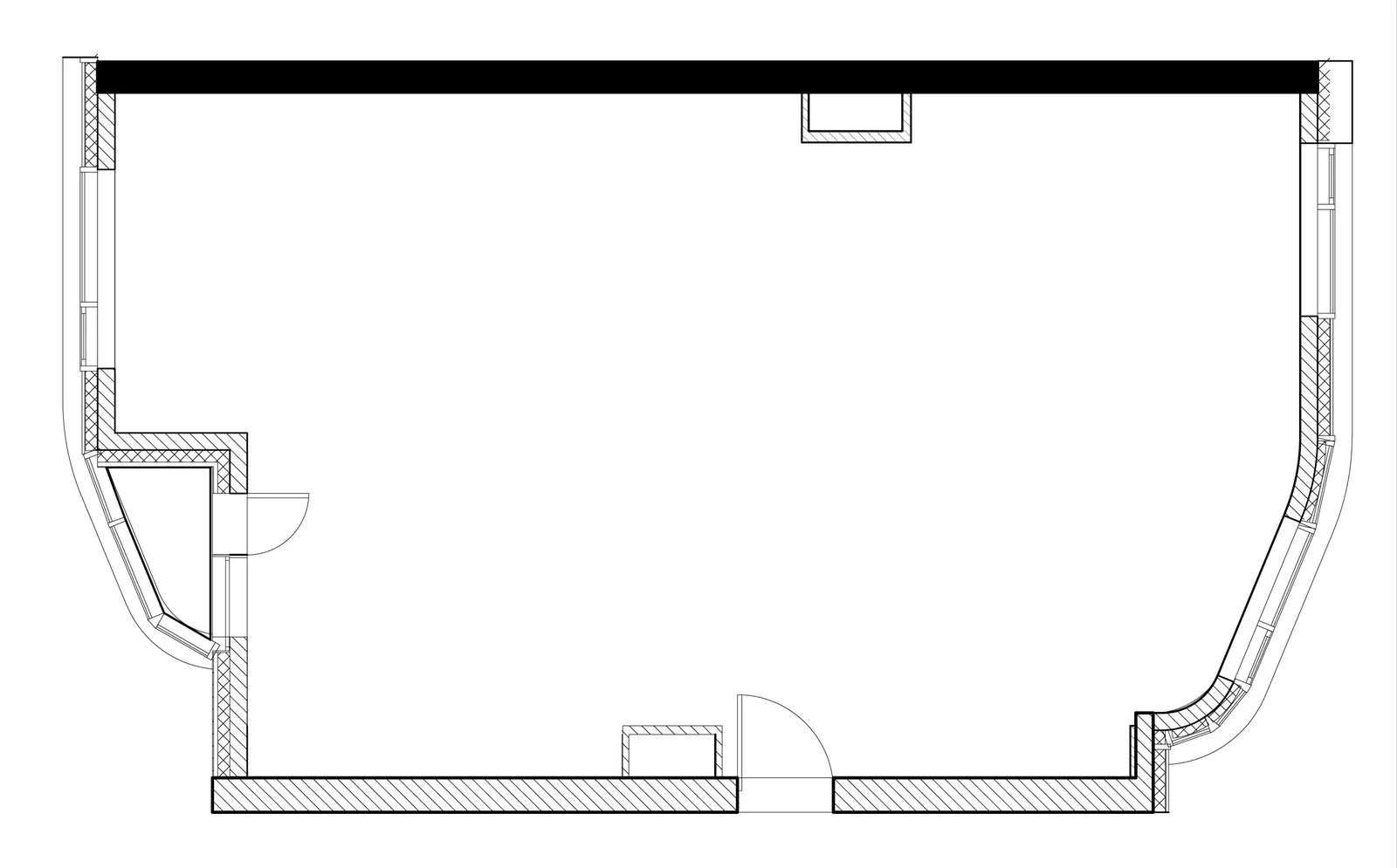
在「Symbol」住宅小区中,面积为96.8平方米、自由布局的公寓原本就相当实用。房间可以隔开,卧室也可以从宾客接待区分离出来。这里的层高很高——从3.2米到3.5米不等。

Symbol住宅小区中96.8平方米公寓的测量平面图
Symbol Quarter — 现代商务级住宅,基础设施完善,并拥有2公里长的绿色河公园。
莫斯科领先的开发商DONSTROY与英国建筑公司LDA Design和UHA London合作完成了这个项目。他们成功创造了适合积极生活方式的舒适空间,拥有众多社交、体育和文化设施。该区域距离花园环线仅1.5公里——从「伊丽莎白广场」地铁站步行5分钟即可到达。
谁会住在这个室内设计中?
「我们为喜欢招待客人的夫妇设计了布局,」设计师奥尔加·库利科夫斯卡娅-埃什比说。「因此,创造一个开放空间非常重要。年轻人经常住在酒店里,知道如何欣赏舒适感。他们希望在家里重现同样的氛围。我们指定的一个房间作为客房,但当这对夫妇决定要孩子时,它很容易转换成儿童房。」
设计解决方案介绍
在这个项目中,特别注重了带有餐厅和厨房的宾客区域,目前该区域占地39平方米。一个长3.5米的半圆形沙发、几把扶手椅和一张咖啡桌被放置在大窗户旁。这种布置可以舒适地容纳一大群人。其他客人可以在附近的桌子旁坐下。
对于厨房,选择了L型橱柜,其中一部分由带有内置电器的高柱组成:一对冰箱、烤箱、微波炉、洗衣机和咖啡机。这释放了台面,使烹饪更加方便。
对于欧洲住宅来说,拥有卧室——衣柜——浴室组合是正常的。
在这里,主卧室按照相同的原则创建。然而,我们提供了滑动门,可以隐藏在墙内,这样如果需要,所有三个空间都可以连接起来。紧邻客房的浴室扩大了,并安装了淋浴间。当房间将来变成儿童房时,孩子将能够使用它。
这对夫妇的室内设计中应有许多储物系统。这个问题通过卧室和走廊之间的墙体布局解决,两个空间都创建了三个衣柜。在浴室中提供了一个存放家用化学品和清洁用品的储物系统——安装在马桶后面的柜子中。

Symbol住宅小区中公寓的布局,室内盒子设计
封面图片:室内盒子设计项目。
Need a renovation specialist?
Find verified professionals for any repair or construction job. Post your request and get offers from local experts.







