5个在板楼中布置卧室的创意
建筑师兼设计师Ruslan Kirnichansky在他的博客《建筑师日记》中提供了5种在典型公寓中布置卧室的成功方法。欢迎查看并收藏。
Ruslan Kirnichansky 专家
建筑师,室内设计师
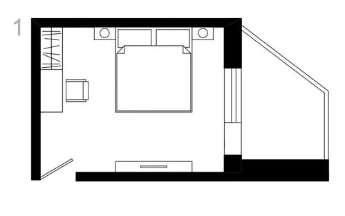
方案一:配备大床
一张尺寸为1800厘米×2000厘米的床垫大床,床头靠墙放置。距离窗户70厘米,方便从两侧上下床。
床边放置两个床头柜,可摆放美观的台灯。正对床墙中央位置设有电视柜和多媒体设备。另一面墙上放置衣柜用于储物,以及一张带舒适椅子的桌子。

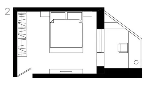
方案二:配备衣柜
如果需要更多衣物存储空间,书桌将被取消,其位置由衣柜代替。在床前可以放置一个脚凳,用于储存床上用品、额外枕头和毯子。
我们在阳台上设置了工作区,已进行保温处理。但不可拆除窗框与门,因为这属于结构改造。最终我们打造了一个新的办公区域,并在阳台上使用电暖设备供暖。
严禁将暖气片移至公寓其他区域。

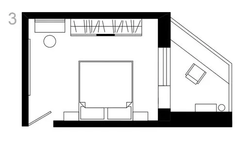
方案三:双个人区域
床靠墙放置,对面墙面设有一个宽敞衣柜并内置电视。此方案有趣之处在于最大化利用空间:阳台被改造为个人办公区(如第二个方案),入口门旁设有一张化妆台配镜子和圆形椅子。
桌子左侧墙面设有一面搁板:画作可以按任意顺序摆放并经常更换,无需打孔固定,保护墙面不受钻孔损害。此版本中,个人区域尽可能分开布置以避免互相干扰(让他坐在阳台的加热器旁,而她则拥有整间房间)。

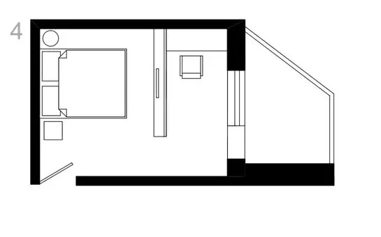
方案四:独立工作区
如果您需要专门的工作空间,但暂时没有机会或意愿对阳台进行保温处理,则可以采用此方案。您可以通过在房间内放置一个高书架来划分空间,工作区设于书架后方。
重要的是,书架需带有背板。这不仅为了工作区的隐私,也为了保持良好的视觉效果。
如果电视放在窗边,视线会受到影响,因为即使反射的阳光也会比电视屏幕更亮。您可以拉上窗帘,但您是否愿意长期生活在人工照明下?何不尝试不同形状和风格的床头柜呢?

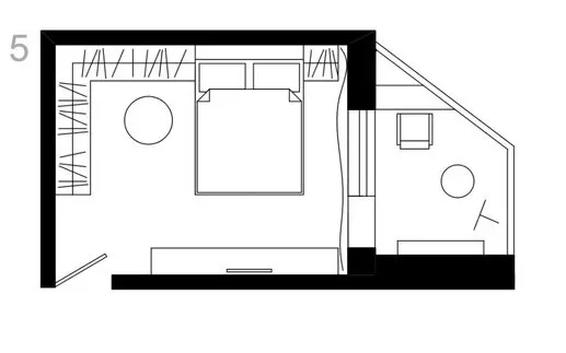
方案五:储物系统
如果您需要大量存储空间,应充分利用房间的每一平方厘米。一张尺寸为1600厘米×2000厘米的床垫大床被整合进衣柜,提高其存储能力。衣柜沿两个墙面布置。
柜门选用单色款式,搭配隐藏式拉手或推拉开启系统——避免产生身处衣柜内的压抑感。
床对面设有一款大型电视柜,兼具储物和办公功能。在保温阳台上,我为女孩打造了一个化妆间。房间包括:化妆台、椅子、地板镜和储物搁板。地板镜旁放置一个圆型脚凳,适合存放包袋。房间内还有一张更大的圆形脚凳。

封面图:由Cultura-Design设计的项目。
另请阅读:
- 美式经典风格客厅在P44-T住宅中的设计
- 带凸窗小厨房的三种实用布局方案
- 自己动手装修:板楼中的设计师公寓
Need a renovation specialist?
Find verified professionals for any repair or construction job. Post your request and get offers from local experts.







