设计总统风格的厨房
设计总统风格的厨房
想了解总统厨房的秘密吗?我们与Mr.Doors专家一起,研究了电视剧《Card House》中设计师的工作方式,分析了安多弗住宅的厨房装饰特点,并挑选出能帮助打造类似风格的物品——几乎就像那位直接向观众传达世界命运之人Frank Andover所使用的厨房一样!
Mr.Doors公司自1996年以来一直致力于定制内置家具和橱柜。根据空间的具体特征并考虑客户的需求与愿望,公司为任何生活区域提供独特解决方案:厨房、客厅、卧室、儿童房、办公室和走廊。
安多弗夫妇厨房的亮点是什么?
让我们仔细看看Frank Andover这位忙碌人士夜间主要出现的厨房,了解它为何如此出色。

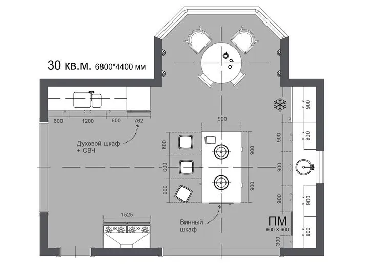
从布局开始。我们有一个大型矩形厨房平面图,配有大窗户。操作台沿周边延伸,窗台也是其一部分。岛台上方的两盏灯在此营造出私密氛围,适用于秘密会议。

Frank Andover在该厨房中通常站在岛台附近——从这里他可以一览整个厨房、门和窗户,一切都尽在掌握。在这种情况下,岛台不仅是小食吧,也是Frank发表演讲的讲台。这再次证实了岛台是一个实用功能。

Frank和Claire的厨房由封闭式橱柜组成,可以存放食物和餐具。橱柜包括玻璃展示柜。框架式门板赋予厨房正面体积感,并涂成中性白色。整体而言,这是美国家庭中相当普通的厨房。

Frank和Claire住宅中的厨房布局

家具、照明和配件
美式厨房以实用性著称。如果你想采用Frank Andover的生活方式,请寻找能高效完成任务的物品:高品质钢材制成的锋利刀具、经典设计的白色瓷器杯。当然,你还需要一个香槟桶来庆祝下一次胜利。

创建类似厨房
材料选择
Mr.Doors专家呈现了Frank和Claire Andover厨房的详细版本。橱柜由“White Premium”饰面的层压板制成。Shaker门板采用MDF材料,表面为哑光白色漆面。设计师提供了多种饰面组合,允许改变厨房氛围。例如,您可以选择不同深浅的灰色门板:“Fog”色调较淡,“Twilight”色调更深。台面由Stone Twelve系列的人造石材制成,饰面为“Nuare”,但如有需要,黑色可替换为浅色或深棕色。

从屏幕到现实:Mr.Doors厨房项目
就像电视剧中的厨房一样,它可以划分为几个功能区:食品准备(两个炉灶、烤箱)、快速用餐和私密交谈(厨房岛台)以及实用区(冰箱、水槽、洗碗机和橱柜)。

如同电视剧一样,橱柜门板涂成白色并带有装饰线条。白色的门板与黑色的人造石材台面形成美丽对比。唯一的区别是:设计师增加了两排架子以提高存储空间。

在电视剧的五个季节中,安多弗一家的生活发生了许多变化,厨房外观也有所改变。例如,把手。Mr.Doors设计师采用了圆形、更优雅的设计作为参考。至于家用电器,完全复制Frank和Claire厨房的精确复制品需要双灶炉,但那些没有如此雄心壮志的夫妇可以选择常规型号。

材料由Mr.Doors支持提供。
阅读更多:
- 打造电影《内政》中的厨房
- 打造电视剧《疯狂者》中的客厅
- 打造凯莉·布雷德肖和麦克·比格的衣帽间
Need a renovation specialist?
Find verified professionals for any repair or construction job. Post your request and get offers from local experts.







