如何布置客厅家具:专业建议
几乎每个公寓都有客厅:它是家人一起看电影、与朋友交谈以及围坐在一起用餐的地方。建筑师和设计师瓦莉亚·丹科夫斯卡娅解释了如何布置客厅家具,使其与所选风格相匹配。
瓦莉亚·丹科夫斯卡娅,建筑师,设计师
瓦莉亚·丹科夫斯卡娅创作公共和住宅室内设计,并领导自己的工作室Floors & Doors。
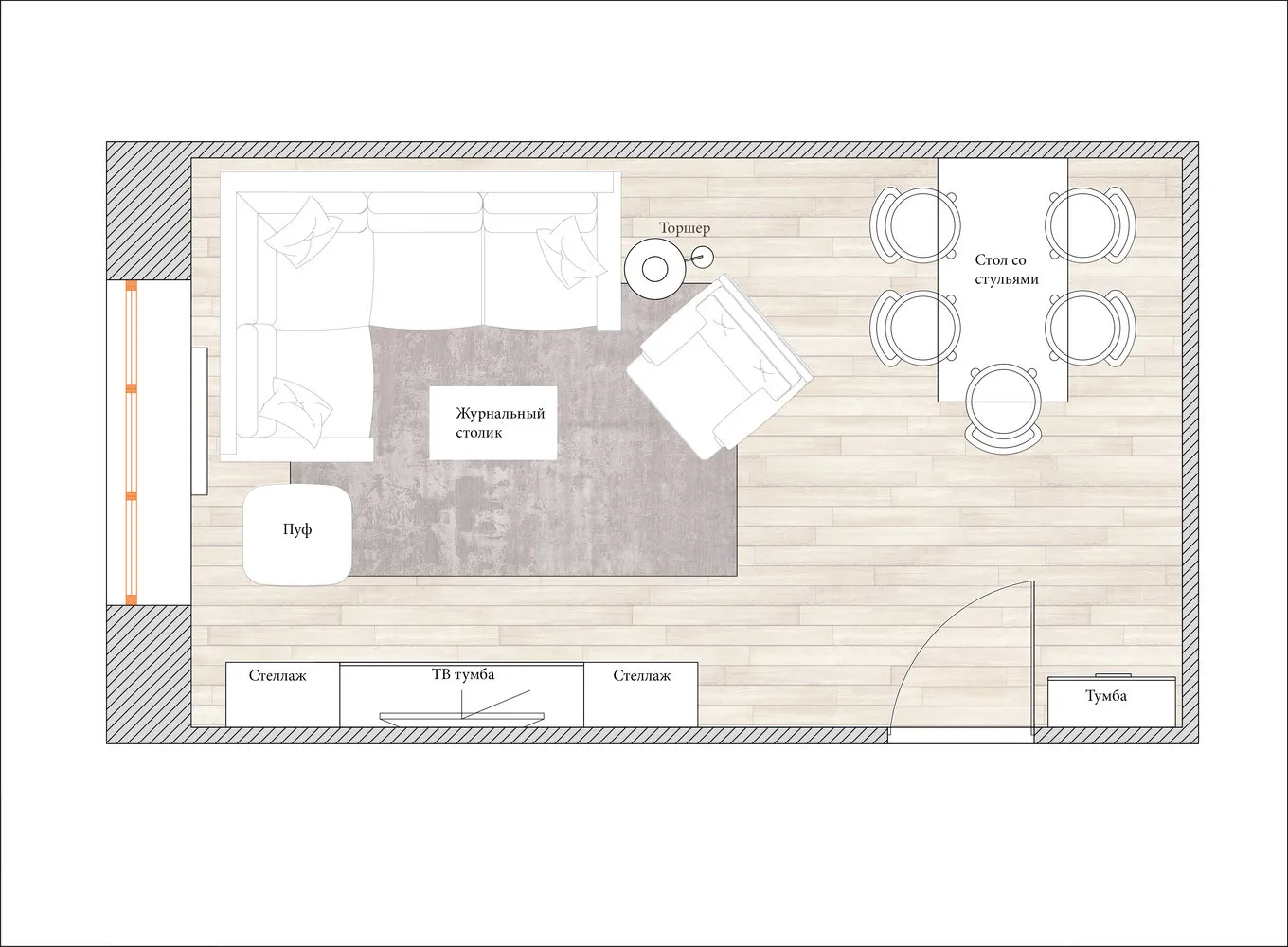
1. 古典风格客厅
古典风格首先体现为优雅、对称和比例协调的元素。通常,在这种室内设计中,空间被明确划分为区域:例如用餐区和软座区。尝试将餐桌和椅子放在靠近窗户的地方:一边欣赏风景一边享用午餐和晚餐是很惬意的。

壁炉是古典客厅的中心元素。在它周围放置柔软的家具:两张沙发,或一张沙发和两张扶手椅配脚凳和地毯。所有这些家具应相对于壁炉对称布置:别忘了在中央放置一张优雅的茶几。壁炉两侧可以放置配套的衣柜、台灯、边柜、书架(放书、画或瓷器)。

设计师建议:古典风格喜欢对称,因此不要杂乱地摆放物品。两个区域都应有充足的照明,所以不要吝惜灯具。
古典风格客厅布局2. 极简主义风格房间
极简主义的特点是功能性强、简洁,且没有严格的造型限制。重要的是正确放置大型家具元素,使房间看起来不显杂乱。这种布局中的家具较少,但舒适实用。这可能是一个大型角落沙发供客人使用,一张咖啡桌。对面则可以放置电视柜或电壁炉。这里的壁炉仅作为装饰元素,而非功能性使用。

极简主义以开放布局著称:最好不通过隔断将房间划分为用餐区和客厅区域——这样会视觉上缩小空间。可以在空角设置一个小型餐桌。

设计师建议:使用多功能家具——例如可以轻松变成额外睡眠空间的沙发。不要过度使用开放式储物系统——最好把所有物品都隐藏在实面后面。
极简风格客厅布局3. 斯堪的纳维亚风格客厅
斯堪的纳维亚风格与极简主义相似,但主要区别在于丰富的自然材料和温馨的装饰。斯堪的纳维亚人对自然怀有特殊的敬畏之心,因此不会追求奢华:这样的室内设计不会出现浮夸昂贵的衣柜或沙发——但所有家具都舒适且质量优良。

客厅应宽敞:只需放置一张沙发、一把扶手椅、一个柔软的脚凳和一套餐桌。一张大而舒适的沙发是构图的中心。欢迎开放式的架子,绿植必不可少。关于餐桌组,可以在中央放置一张白色台面、极简设计腿的桌子和轻巧塑料椅子。

设计师建议:在开放式架子上适度使用装饰——不要让空间显得拥挤。为房间规划几种照明场景:从壁灯和落地灯到童话灯。
斯堪的纳维亚风格客厅布局4. 工业风格房间
工业风格的布局自由灵活,线条笔直。软家具在室内起主导作用,因此沙发是构图的中心,额外的家庭或朋友座位也应提供。别忘了木质、金属或塑料咖啡桌,或者用旧柜子或陶瓷凳子替代。

在工业风格客厅中,没有封闭式衣柜或内置隐藏储物系统的位置。客厅中的餐桌组通常包括少量座椅,甚至完全不设置。

设计师建议:房间应暗示创意混乱。用靠垫、海报、画作、复古电器和复古室内装饰品来装饰空间。
工业风格客厅布局Need a renovation specialist?
Find verified professionals for any repair or construction job. Post your request and get offers from local experts.







