两居室公寓室内设计:极简主义与装饰艺术风格
两种截然相反的风格结合在一起通常并不令人印象深刻。特别是当每种风格在室内设计中都需要空间来充分展现其魅力时。

照片1 - 安德里·伊万uk的设计项目可以称为大胆。设计师不仅使用了出色的饰面,还在房间分区中采用了完全不同的风格——装饰艺术和极简主义
公寓:新建筑中的两居室,面积93平方米。客户愿望:明亮、现代的室内设计,包含装饰艺术元素,房间最好能划分为接待区和私人区域。

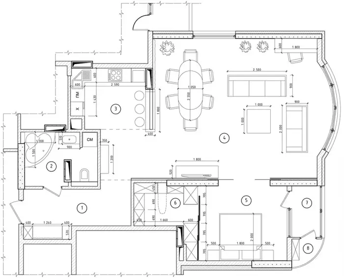
平面图1 - 基辅两居室公寓的重新布置方案
年轻业主经常招待客人,因此她需要一个组织良好且宽敞的客用区域。根据设计师的建议,厨房和客厅被合并成一个空间。吧台作为分隔元素。
为了通过室内设计传达房间的氛围并表达其功能目的,选择了极简主义结合装饰艺术元素的组合。
在装修中使用了各种材料和质感,主要采用浅色调和温暖的色彩搭配(柔和白色、米色、深棕色)。
因此,除了对比鲜明的风格外,也使用了对比性的装修方式。

照片2 - 时尚解决方案——将入口家具嵌入墙体。对于狭窄的走廊来说,这种设计非常宝贵
玄关。天然木材装饰镶嵌与简洁的浅色墙面形成鲜明对比,为玄关增添了动感。此外,照明装置安装在较为厚重的柜子上方:暖色调灯光进一步突出了柜子的丰富饰面。玄关室内设计中的讽刺感通过放置在经典框架中的简单主题画作体现(这些也可以替换为自制拼贴画)。

照片3 - 玄关区域允许这样的设计,因此在公寓内部没有经济型衣柜,而是放置了一个高大的壁挂式柜子
如上图所示,还有一个风格融合的例子:镀铬大花瓶是装饰艺术的元素,而地板和柜子表面的天然纹理则更偏向极简主义。
两居室公寓客厅室内设计:将不可结合的元素结合在一起
在组合客厅的设计中,折衷主义无法忽视:
- 靠近厨房的墙面柔软且有绗缝,而房间平行墙面则覆盖着具有克制经典图案的壁纸;
- 房间中使用了三种不同风格的灯具;
- 电视观看区采用极简主义风格,对面则布置了一个舒适的装饰艺术用餐区。

照片4 - 两居室公寓客厅室内设计

照片5 - 现代客厅中的小办公角落也以装饰艺术风格装饰
白色背景下的室内设计创意几乎可以每天更换!

照片6 - 客厅充满白色光线,任何彩色元素都能清晰突出——无论是书籍堆、光盘还是高脚花盆中的常春藤

照片7 - 隐藏式照明,由走廊的一条线布置,延续到开放厨房的大型天花板系统中
厨房。除了天花板照明之外,还有其他厨房照明方式——例如通过嵌入式射灯在厨房柜子中或通过一个灯罩下的明亮灯泡照亮吧台。
如果……或者卧室设计。
卧室面积将来足以将其与新生儿房间合并。当家庭成长时,无需重新设计和装修——只需在父母床和婴儿床之间安装隔断,并在衣柜中加入一个架子,既可放置母亲的连衣裙,也可放孩子的睡衣。这间房的设计风格和使用的材料对儿童的身心健康是安全的。

照片8 - 衣柜门上的精美镶嵌提升了极简主义卧室的室内设计,为其增添了个性

照片9 - 角落浴室——这是公寓业主的基本要求之一。室内设计的基础是结合古典舒适感与极简主义线条严格性的浴室设计方案

照片10 - 在这套公寓中设置组合浴室时,在厕所和浴缸之间放置了一个小隔断,以确保使用浴室时的更大舒适度
Need a renovation specialist?
Find verified professionals for any repair or construction job. Post your request and get offers from local experts.







