三层户型公寓设计项目,卧室设在露台上
三层户型公寓设计项目,卧室设在露台上。现代大型公寓通常配有宽敞的阳台、门廊,甚至夏季露台。这些空间可以明智地利用,而不是被用作杂物储藏室——相反,最好通过这些空间扩展公寓的居住区域。
三层户型公寓设计项目,卧室设在露台上。现代大型公寓通常配有宽敞的阳台、门廊,甚至夏季露台。这些空间可以明智地利用,而不是被用作杂物储藏室——相反,最好通过这些空间扩展公寓的居住区域。以下是一个三层户型公寓设计项目,卧室设在露台上。
图1 — 这套公寓室内设计的主要特色,除了布局改变外,是装饰中鲜艳的颜色
公寓:三室,面积150平方米(圣彼得堡)。
客户愿望:明亮现代且有趣的室内设计。

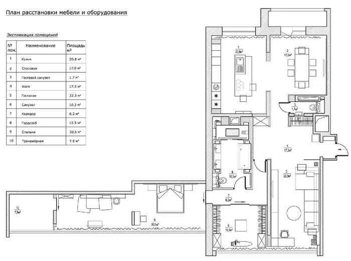
图2 — 家具与设备布置平面图
由娜塔莉亚·泽尔托乌赫娃设计的典型三室公寓设计项目被转化为一个“非典型”的设计。事实上,这套公寓在改造前已经进行了重新布局:业主决定自己进行装修,拆除了几乎所有的隔墙和墙体,订购了制造商提供的现成厨房设计方案,然后就卡住了。如何分配公寓区域以及如何布置实际上像工作室公寓的设计,他们并不知道。

图3 — 全景玻璃窗也影响了客厅,使公寓变得异常明亮
从公寓的细节来看,你可能会想:“哇,150平方米——令人印象深刻!”不要急于下结论。在设计师提出的改造方案之前,这套公寓的总面积正如大多数现代标准建筑一样为92平方米(对比:在KOPÉ中,面积从75到109.1平方米,而典型的三室赫鲁晓夫公寓面积较小,平均为52-57平方米)。

图4 — 初看之下,没人会猜到眼前的是一个曾经的夏季露台
通过使用宽敞的露台和门廊,这套公寓面积扩大到了150平方米。经过重新布局后,原本冬季、秋季和春季都未被使用的露台变成了一个拥有全景窗户和城市美景的超大卧室。小型健身房也设置在那里(见下文)。

图5 — 全景玻璃窗,加上露台的翻新和保温,使这套圣彼得堡公寓变成了豪华公寓
经过改造后,这套公寓中出现了两个主要区域:私密区域(卧室布置在原来的露台上、小型健身房、宽敞的衣柜和浴室)和公共区域(拥有全景玻璃窗的客厅、餐厅、厨房和门厅)。

图6 — 嵌入式等离子电视的餐厅区域
这套巨大的三室公寓(!)每个房间都有自己的亮点。
例如,在走廊中,是一个艺术作品——一个人体大小的雕塑;在餐厅中,是电视墙的非标准处理方式;在明亮宽敞的客厅中,是墙面的鲜艳画作,甚至在浴室里也有设计师的点缀——淋浴间内的几何面板。

图7 — 走廊中的雕塑群

图8 — 家庭客厅

图9 — 几何面板由陶瓷砖制成
这套公寓内部装饰使用的理念也可以应用到较小的空间中:例如,三室公寓P-44T的设计项目可以利用明亮的点缀来提升一个适度简约装修和布置的房间,即使在KOPÉ公寓中加入更多颜色也并不突兀。
Need a renovation specialist?
Find verified professionals for any repair or construction job. Post your request and get offers from local experts.







