现代风格的公寓设计
如果这套公寓原本是为一个人居住而设计的,那么现在有三个人住在这里。在年轻家庭加入后,这套公寓再次被改造。由斯坦尼斯拉夫·奥列霍夫设计的单间公寓。

照片1 — 如果这套公寓原本是为一个人居住而设计的,那么现在有三个人住在这里。在年轻家庭加入后,这套公寓再次被改造
由斯坦尼斯拉夫·奥列霍夫设计的单间公寓
这套公寓对设计师斯坦尼斯拉夫·奥列霍夫来说是一份真正的礼物:能与如此“柔韧”的材料合作并不是每个人都能遇到的。从最初的48平方米面积,通过利用阳台区域,实现了56平方米的空间。设计项目的工作也因此变得简单起来,因为房间中央只有一根柱子作为支撑元素,这很容易被隐藏或融入室内设计中。
然而,重新布置也带来了一些缺点:新的区域划分迫使通风管道几乎横穿整个公寓。不过,最终几乎察觉不到它的存在:通风通道被隐藏在复杂的吊顶后面。

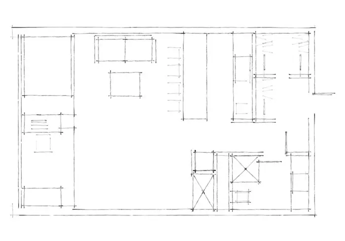
照片2 — 公寓改造方案示意图
通过利用阳台区域,设计师获得了额外8平方米的可用空间。原来的阳台现在被划分为卧室和工作区。

照片3 — 斯坦尼斯拉夫·奥列霍夫设计的单间公寓中,阳台位置的工作区和卧室区域
由于厨房和客厅空间因此变得宽敞,设计师建议公寓主人不要在房间内摆放过多家具,而是通过减少家具或采用极简主义设计来强调开放区域。

照片4 — 您可以亲自感受到这套宽敞单间公寓的魅力。从工作区看向房间的视角
与通常用于分区的隔断不同,这套现代风格的单间公寓中包含一个简单但有效的元素——绳帘。

照片5 — 绳帘不仅是一种划分空间的方式,也能起到装饰作用,增添氛围和东方风情
储物系统也设计得非常完美:床架配有滑动抽屉,入口区域的封闭空间可用于储物,客厅中也设有书架。

照片6 — 时尚实用的平台设计适合使用矫形床垫,而非普通双人床
空间允许用更宽大的设备替代普通的电视。例如,投影仪。顺便说一下,放置它的理想位置就在沙发后面,使沙发变成家庭影院座椅。

照片7 — 厨房视角
关于厨房布置,一切都极其简洁且功能性强:甚至在吧台下面隐藏了架子,让主人无需担心锅具或婴儿食品的存储空间。
我们之前提到,这套室内设计是在这位年轻男子的未婚妻和新生儿孩子进入他的生活之前创作的。这套我们刚刚展示的室内设计可以轻松适应家庭生活的变化:例如,婴儿床被放置在窗边,代替了其中一张书桌,换尿布台放在附近,婴儿洗护用品的架子也布置好了。
世界各地的单间公寓室内设计
这里是一些来自世界各个角落的小户型公寓内饰精选。

照片8 — 西班牙,40平方米公寓。使用对比鲜明的亮色和中性白色

照片9 — 纽约,35平方米公寓。丰富的装饰品营造出舒适且充满生活气息的氛围,让人忍不住想回来

照片10 — 曼哈顿,34平方米公寓。注意如何将睡眠区以极简方式融入现代设计中(嵌入壁龛,位于房间中央;床被卷帘遮挡)

照片11 — 哥德堡,42平方米单间公寓。注意如何突出放松区——一个小型但极简的平台

照片12 — 瑞典,41平方米公寓。这不仅美观而且非常实用的室内设计。没有隔断但有明确功能分区的空间并不显得局促

照片13 — 瑞典小户型公寓——如何实际应用最佳人体工程学设计建议的范例
Need a renovation specialist?
Find verified professionals for any repair or construction job. Post your request and get offers from local experts.







