彼得疗养院 / N+P 建筑事务所 / 丹麦

位于丹麦西部海岸戏剧性的沙丘之上,N+P 建筑事务所设计的彼得疗养院提供了一个紧凑但宽敞的休憩空间,拥有广阔的180度北海景观。建筑以谦逊的方式融入环境——几何形态、材料与朝向共同营造出对周围沙丘和海洋光线的尊重。
海边沙丘中的极简主义房屋
设计理念基于简洁、连续性和连接性。封闭的体量完全面向大海,同时扎根于沙丘背景之中。所有主要房间都通向环绕式露台,在不同季节中持续地连接室内与室外世界。房屋后方的二战混凝土掩体被改造成酒窖和木材储藏室——与房屋的轻盈感形成鲜明对比。
摄影 © N+P 建筑事务所概念与空间布局
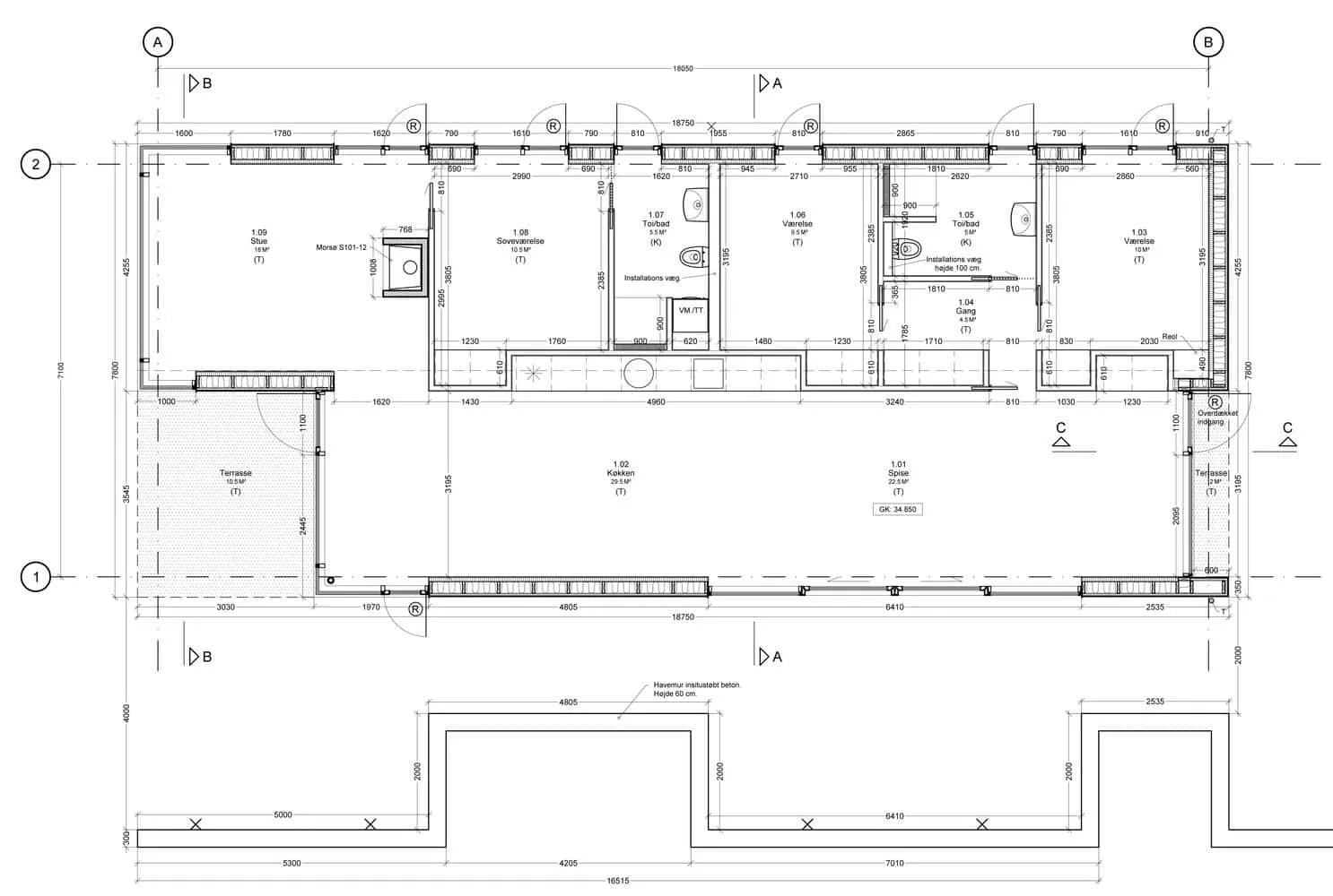
平面设计紧凑高效,优先考虑动线清晰和构图式景观。完整的玻璃墙与转角窗使每个空间都能与地平线建立视觉联系。连续的露台让每间房间都直接感受到风、光与声音——将日常仪式转化为风景瞬间。
摄影 © N+P 建筑事务所
摄影 © N+P 建筑事务所
摄影 © N+P 建筑事务所材料与外观表达
木框架结构覆盖着经过热处理的木材(温暖的枫木),与沙丘相协调,并将在岁月中优雅地变色。景天绿色屋顶在视觉上将房屋固定于地形,同时增强保温性能和生物多样性。宽敞的玻璃使边界模糊,温暖木材、光滑玻璃与绿色屋顶的触觉平衡创造出宁静而沉稳的地貌色彩。
摄影 © N+P 建筑事务所
摄影 © N+P 建筑事务所
摄影 © N+P 建筑事务所内部空间与光线
阳光从多个方向进入室内。木质天花板、简洁接缝和明亮表面将外部世界的宁静带入内部。紧凑的布局保持亲密感,但开阔的地平线让每间房间超越其实际尺寸。
摄影 © N+P 建筑事务所
摄影 © N+P 建筑事务所
摄影 © N+P 建筑事务所
摄影 © N+P 建筑事务所
摄影 © N+P 建筑事务所
摄影 © N+P 建筑事务所场地策略与生态响应
朝向最大化海景视野并抵御主导风向。绿色屋顶提升热效率,减少视觉冲击。通过可移动玻璃引入通风空间,降低机械制冷需求。耐久材料——热处理木材、景天和海洋玻璃——设计用于抵御沿海环境并保持低维护水平。
摄影 © N+P 建筑事务所
摄影 © N+P 建筑事务所室内细节与日常仪式
接缝精确而宁静,让风景成为主导。空间组织日常生活——晨光中的咖啡、夕阳下的长餐和面向地平线的安静阅读角落。
摄影 © N+P 建筑事务所
摄影 © N+P 建筑事务所
摄影 © N+P 建筑事务所
摄影 © N+P 建筑事务所
摄影 © N+P 建筑事务所
摄影 © N+P 建筑事务所
摄影 © N+P 建筑事务所
摄影 © N+P 建筑事务所
摄影 © N+P 建筑事务所丹麦建筑中的宁静海滨诗篇
彼得疗养院体现了现代丹麦海滨建筑的本质——形式简洁,内容丰富。以紧凑的面积、环绕露台、精选材料和宁静的空间品质,房屋既显得安全又宽敞——属于沙丘与海洋的极简主义休憩之所。
图纸
图纸 © N+P 建筑事务所
图纸 © N+P 建筑事务所
图纸 © N+P 建筑事务所
图纸 © N+P 建筑事务所
图纸 © N+P 建筑事务所Need a renovation specialist?
Find verified professionals for any repair or construction job. Post your request and get offers from local experts.







