NAP penthouse:福尔利历史优雅与现代设计的融合

在意大利福尔利市中心的帕拉佐·卡爾博利·达爾·阿斯特,NAP penthouse由tissellistudioarchitetti设计,完美融合了历史建筑与现代设计元素。该项目改造将一座受考古、艺术和景观超级监督管理的珍贵不动产,转变为尊重其丰富遗产的现代居住空间。
雕塑式楼梯作为主要焦点
进入penthouse,访客首先映入眼帘的是一个装饰有彩色镜面的雕塑式楼梯。这一新的建筑元素取代了原有的楼梯,成为强化居住空间双重高度的宣言。镜面反射光线并扩大视觉感知,形成动态而迷人的中心元素。
居住与餐厅区域的无缝融合
起居区设有温暖的木质地板和明亮的墙面,提供中性背景以展示线条简洁、节奏和谐的个性化家具。稍微下沉一点便进入餐厅区域,通过添加彩色和反光元素营造出现代而精致的氛围。青铜色厨房岛台与优雅的哑光漆木垂直面板相呼应,隐藏了所有厨房功能。
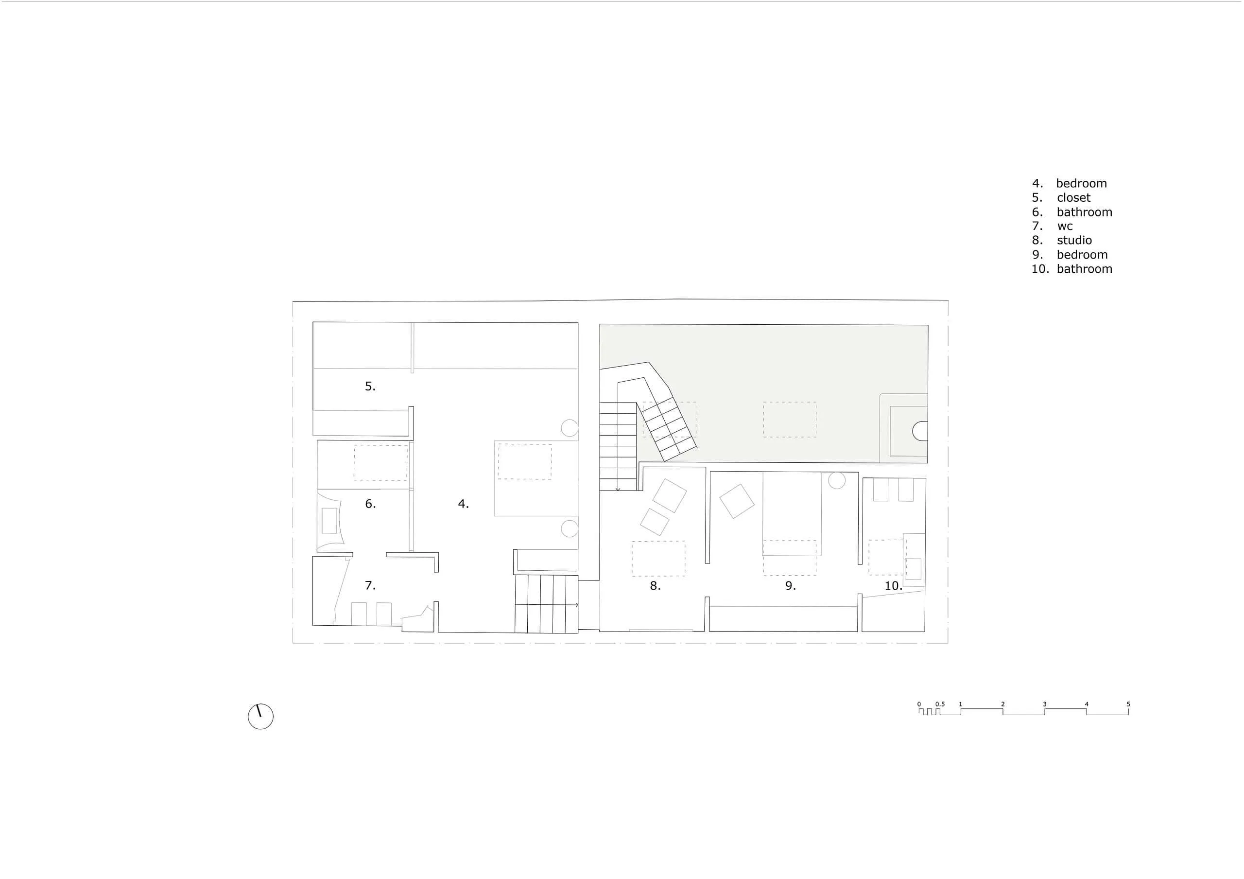
卧室中的创新设计
在主卧区域,主卧室通过一个通向浴室的大窗户脱颖而出,创造出空间连续性的错觉,并提供广阔的视野。透过隐藏的天窗透进来的阳光使房间充满温馨氛围。直接从卧室通往浴室,打开过渡区域,其中红色和镜面表面营造出优雅的氛围。卫生设备和技术集成在设计中自然和谐。空间随后扩展为一个明亮、带有裸露横梁的大房间,增强了其美感和宽敞感。这一区域通常处于次要地位,在这里却成为无可争议的主导者,完美结合美学与功能。
现代居住建筑的典范
NAP penthouse展示了即使是最私密的空间也能成为独立的艺术作品,超越传统标准并提供独特而引人入胜的生活方式。通过将历史氛围与现代创新相结合,tissellistudioarchitetti创造了一种尊重过去并接受现代设计原则的住宅。
摄影师 © tissellistudioarchitetti
摄影师 © tissellistudioarchitetti
摄影师 © tissellistudioarchitetti
摄影师 © tissellistudioarchitetti
摄影师 © tissellistudioarchitetti
摄影师 © tissellistudioarchitetti
摄影师 © tissellistudioarchitetti
摄影师 © tissellistudioarchitetti
摄影师 © tissellistudioarchitetti
摄影师 © tissellistudioarchitetti
摄影师 © tissellistudioarchitetti
摄影师 © tissellistudioarchitetti
摄影师 © tissellistudioarchitetti
摄影师 © tissellistudioarchitetti
摄影师 © tissellistudioarchitetti
摄影师 © tissellistudioarchitetti
摄影师 © tissellistudioarchitetti
摄影师 © tissellistudioarchitetti
摄影师 © tissellistudioarchitetti
摄影师 © tissellistudioarchitetti
摄影师 © tissellistudioarchitetti

该项目展示了历史性保护与现代设计之间的无缝整合,为当代住宅建筑树立了标准。

Need a renovation specialist?
Find verified professionals for any repair or construction job. Post your request and get offers from local experts.







