MM34 – Мар Медитерранео 34 | Ателье Инка Эрнандес | Мехико, Мексика
Новое жилье в историческом доме
В центре Такубы, одного из старейших и культурно богатых районов Мехико, MM34 – Мар Медитерранео 34 от Ателье Инка Эрнандес представляет собой мощное заявление о том, как архитектура может соединить время. Ранее разрушающийся особняк эпохи Порфиро, построенный в 1910 году, был тщательно восстановлен и пересмотрен как современный жилой комплекс, объединяющий историческую достоверность и современное мышление в дизайне.
Такуба, расположенная на северо-западе исторического центра Мехико, когда-то была домом для элиты города. В течение десятилетий многие из её великих особняков были заброшены или снесены. Среди немногих выживших, дом по адресу Мар Медитерранео 34 остался — молчаливым свидетелем прохождения истории и теперь, благодаря этому чувствительному вмешательству, стал маяком архитектурного возрождения.
Восстановление, основанное на уважении
Проект начался с здания в глубоком состоянии разрушения. Первоначально состоявшимся из двух объемов — одного, обращенного к улице, и другого, выходящего во внутренний двор — оба подверглись десятилетиям пренебрежения, с задним объемом частично в разрушенном состоянии. Команда дизайнеров подошла к задаче с философией непрерывности, восстанавливая историческую ценность, при этом адаптируя пространство под современное городское проживание.
Через тщательную ручную работу оригинальные материалы и детали были восстановлены: резной квартц на балконах и оконных проемах, кованые перила, деревянные рамы окон и художественные черепичные крыши. Эти спасённые элементы теперь окружают обновленный фасад, сохраняя характер дома и восстанавливая его присутствие в районе.
Современные вмешательства и пространственная поэзия
Внутри трансформация раскрывается как переосмысление наследия через современный взгляд. Новый вертикальный объем возникает внутри главного двора — архитектурное решение, которое обрамляет небо и вызывает ритм исторических порталов в свете и тени. Дважды высокие отверстия поднимаются от земли, соединяя старое и новое в гармоничном архитектурном композиции.
Непрерывная база из вулканического камня определяет первый этаж, символизируя как буквальное, так и концептуальное основание проекта. Она служит порогом между тем, что осталось и тем, что возрождено, выражающим историю возрождения в постоянстве.
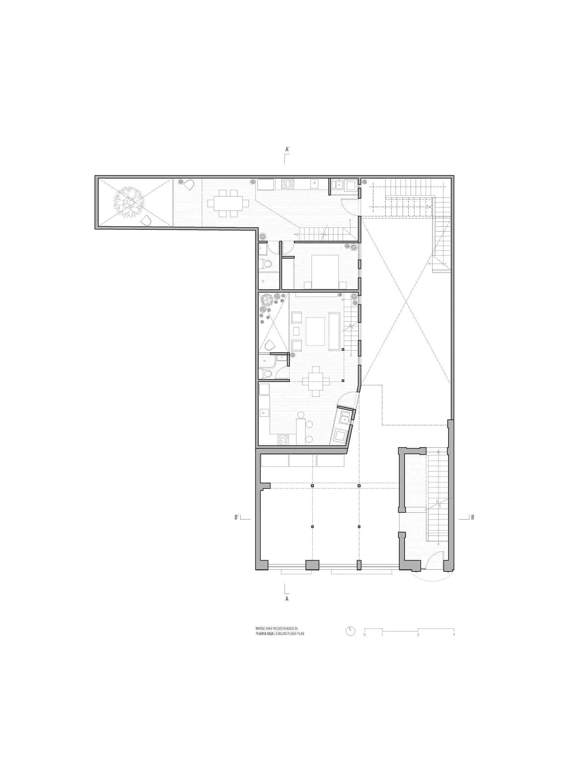
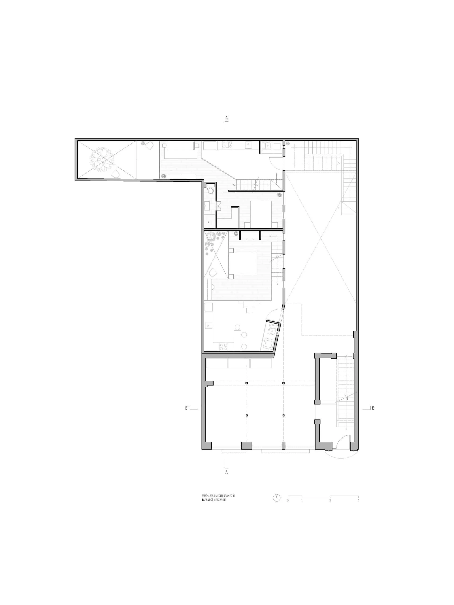
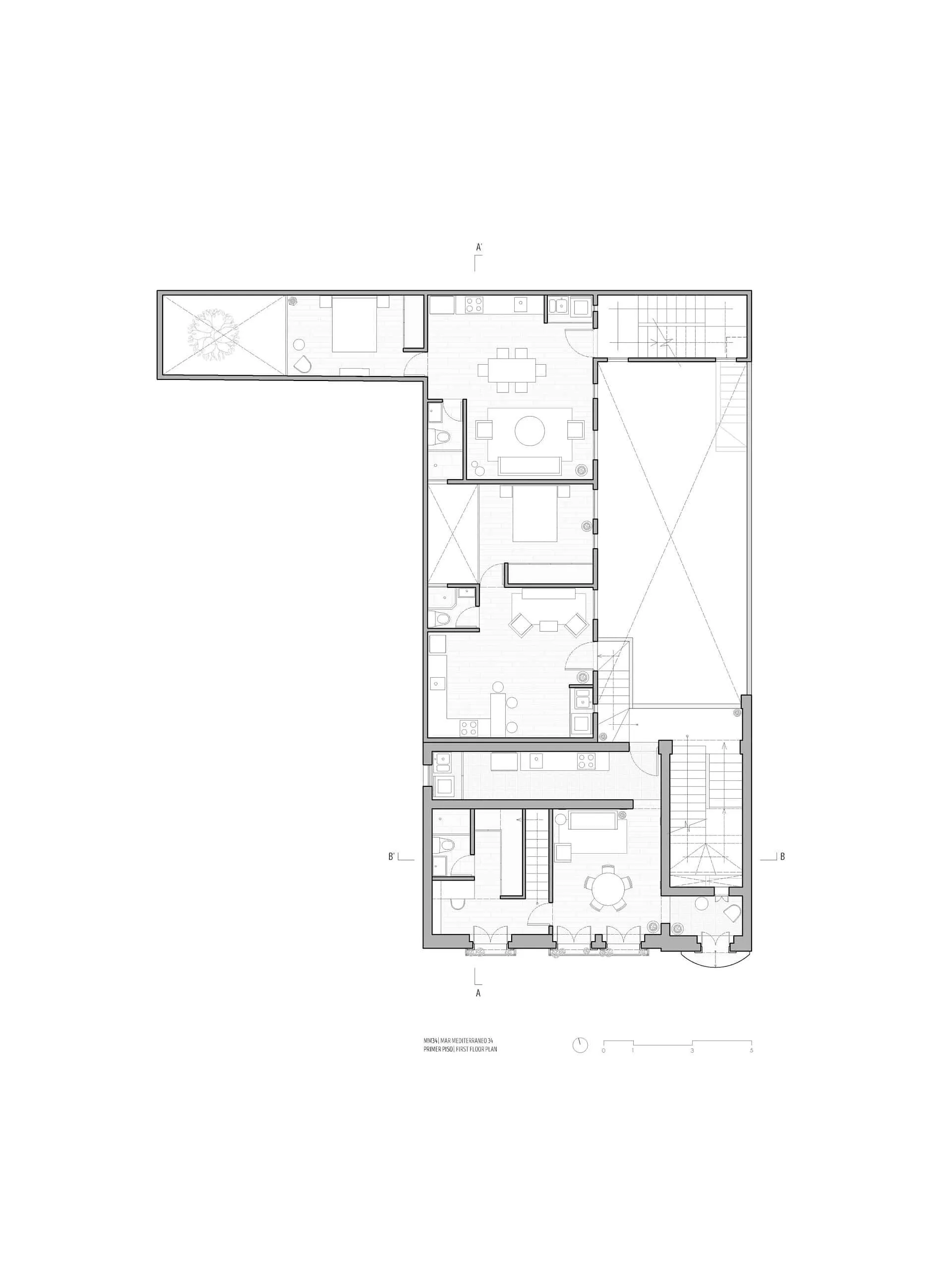
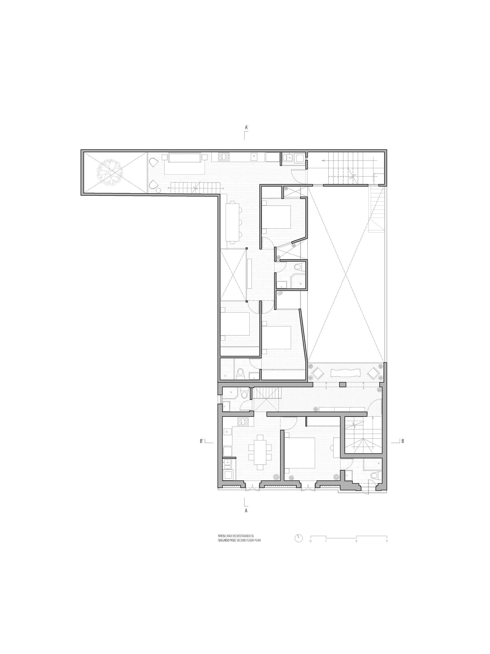
Адаптивное проживание для нового времени
Обновленная конструкция теперь содержит семь жилых единиц на трёх уровнях — каждая уникально сконфигурирована как лофты, студии, семейные квартиры и пентхаус. Эти жилья открывают на восстановленный центральный двор или более мелкие внутренние дворики, наполненные фильтрованным естественным светом, растительностью и решетками, сохраняющими ярко выраженную мексиканскую идентичность.
Организация пространства способствует гибкости и человеческому взаимодействию, балансируя частной и общественной жизнью, сохраняя сильную связь с историческими слоями участка. MM34 демонстрирует, как адаптивное использование может создать современные городские условия проживания, не уничтожая прошлое.
Устойчивость через наследие
Для Ателье Инка Эрнандес устойчивость выходит далеко за рамки выбора материалов — это культурная и пространственная ответственность. Воссоздание существующей конструкции вместо постройки новой снижает экологический след города, перерабатывает оригинальные материалы и оживляет заброшенное городское пространство.
Этот подход к устойчивости — восстановление вместо замены — продвигает концепцию городского переосмысления, где новая жизнь возвращается к историческим районам, сохраняя их социальную и архитектурную ткань. Результатом является проект, который сохраняет память, одновременно формируя будущее города.
Наследие и городская непрерывность
Мар Медитерранео 34 — это больше, чем жилой проект — это манифест архитектурной непрерывности. Через тщательное восстановление, уважительный материал и современное переосмысление Ателье Инка Эрнандес создал городской ориентир, воплощающий и сохранение, и прогресс.
Эта работа не только оживляет отдельную недвижимость, но и вносит вклад в культурное возрождение Такубы, устанавливая вдохновляющий пример того, как Мехико может вернуть свою архитектурную традицию и превратить её в яркие, устойчивые жилые пространства для будущего.

Фотография © João Morgado
Фотография © João Morgado
Фотография © João Morgado
Фотография © João Morgado
Фотография © João Morgado
Фотография © João Morgado
Фотография © João Morgado
Фотография © João Morgado
Фотография © João Morgado
Фотография © João Morgado
Фотография © João Morgado
Фотография © João Morgado
Фотография © João Morgado
Фотография © João Morgado
Фотография © João Morgado
Фотография © João Morgado
Фотография © João Morgado
Фотография © João Morgado
Фотография © João Morgado
Фотография © João Morgado
Фотография © João Morgado
Фотография © João Morgado
Фотография © João Morgado
Фотография © João Morgado
Фотография © João Morgado
Фотография © João Morgado
Фотография © João Morgado
Фотография © João Morgado
Фотография © João Morgado
Фотография © João Morgado
Фотография © João Morgado
Фотография © João Morgado
Фотография © João Morgado
Фотография © João Morgado
Фотография © João Morgado
Фотография © João Morgado
Фотография © João Morgado
Фотография © João Morgado
Фотография © João Morgado
Фотография © João Morgado
Фотография © João Morgado
Фотография © João Morgado
Фотография © João Morgado
Фотография © João Morgado












Need a renovation specialist?
Find verified professionals for any repair or construction job. Post your request and get offers from local experts.







