莫斯科极简主义公寓融合温暖与精准
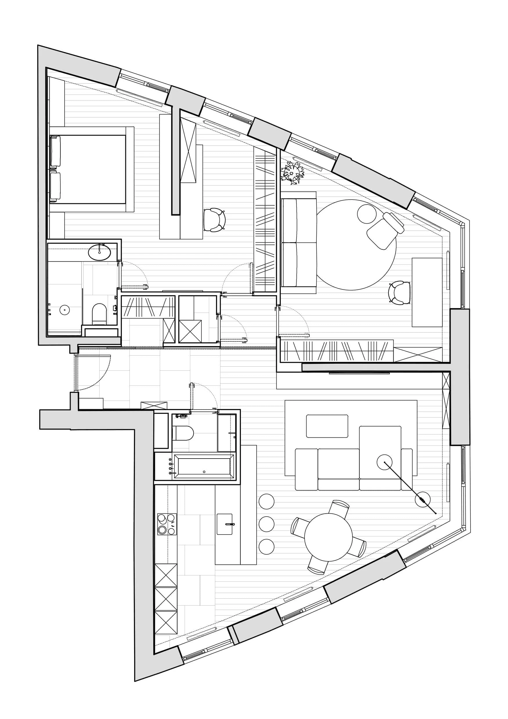
在莫斯科市中心,这套110平方米的公寓是为追求功能、简约与温暖完美平衡的一对年轻夫妇而打造的理想避风港。该项目由建筑师兼室内设计师詹恩·德尼舍娃设计,是都市极简主义的典范——一种克制的设计语言,充满温柔材质与现代舒适感。
基于光线和逻辑的功能性布局
最初公寓为开放式设计。如今被划分为两个清晰的区域:
-
公共空间:工作室风格的共用区域,设有友好的入口、内置衣帽间、客用浴室和一体化厨房-餐厅-客厅空间。
-
私密空间:安静的卧室配有淋浴间,以及可转变为儿童房的多功能家庭办公区。
特殊的Rimadesio滑动隔断——这一显著的建筑特色,在衣帽间中巧妙集成,展示了项目形式与功能的和谐统一。
材料提升品质而不显浮夸
色彩搭配精心挑选。克制的灰色调与温暖木质饰面、纹理墙面和单色纺织品相呼应。通过限制材料与装饰的多样性,整体室内呈现和谐统一的效果。
设计遵循“少即是多”的理念。所有浴室均使用同一款瓷砖系列,固定装置保持一致。从厨房到衣帽间等个性化元素均由同一家制造商生产,确保全屋统一的美学和技术标准。
工程木地板与嵌入式家具饰面完美匹配,营造出贯穿全屋的连贯而宁静的视觉叙事。
极简主义即精准,而非简单
尽管公寓看起来轻盈优雅,但每个细节都要求精准:
-
从地板到天花板的对齐门
-
嵌入式踢脚线
-
完美对齐的瓷砖
-
隐藏式通风口
所有细节均按原始设计效果图精确规划并实现,展示了纪律性极简主义如何达到令人惊叹的情感影响。
设计理念:持久清晰与舒适
据德尼舍娃所说,一个有效的室内设计应始于坚固的建筑核心——它本身已完整呈现,同时为随时间发展的个人层次提供画布。
这套莫斯科极简主义公寓体现了同样的理念。结果是一个永恒、温暖且灵活的生活空间,随着居住者一起成长,并在不失去美学完整性的前提下提供持久的舒适感。

照片 © 米哈伊尔·切卡洛夫
照片 © 米哈伊尔·切卡洛夫
照片 © 米哈伊尔·切卡洛夫
照片 © 米哈伊尔·切卡洛夫
照片 © 米哈伊尔·切卡洛夫
照片 © 米哈伊尔·切卡洛夫
照片 © 米哈伊尔·切卡洛夫
照片 © 米哈伊尔·切卡洛夫
照片 © 米哈伊尔·切卡洛夫
照片 © 米哈伊尔·切卡洛夫
照片 © 米哈伊尔·切卡洛夫
照片 © 米哈伊尔·切卡洛夫
照片 © 米哈伊尔·切卡洛夫
照片 © 米哈伊尔·切卡洛夫
照片 © 米哈伊尔·切卡洛夫
照片 © 米哈伊尔·切卡洛夫
照片 © 米哈伊尔·切卡洛夫
照片 © 米哈伊尔·切卡洛夫
照片 © 米哈伊尔·切卡洛夫
照片 © 米哈伊尔·切卡洛夫
照片 © 米哈伊尔·切卡洛夫
照片 © 米哈伊尔·切卡洛夫
照片 © 米哈伊尔·切卡洛夫
照片 © 米哈伊尔·切卡洛夫
照片 © 米哈伊尔·切卡洛夫
照片 © 米哈伊尔·切卡洛夫
照片 © 米哈伊尔·切卡洛夫
照片 © 米哈伊尔·切卡洛夫
照片 © 米哈伊尔·切卡洛夫
照片 © 米哈伊尔·切卡洛夫
照片 © 米哈伊尔·切卡洛夫
照片 © 米哈伊尔·切卡洛夫Need a renovation specialist?
Find verified professionals for any repair or construction job. Post your request and get offers from local experts.







