客厅与厨房设计。现成设计方案
客厅设计,结合厨房:技术规范。那么我们有什么?一个小厨房和一个略大的客厅,但平方米数上没有特别的奢侈。我们想从这个设计中得到什么?——一如既往:糖果!而且是一个能容纳所有之前勉强挤进两个独立房间的物品,现在在一个被改造的空间里。
客厅与厨房设计:技术规范
那么我们有什么?一个小厨房和一个略大的客厅,但平方米数上没有特别的奢侈。我们想从这个设计中得到什么?——一如既往:糖果!而且是一个能容纳所有之前勉强挤进两个独立房间的物品,现在在一个被改造的空间里。
具体来说:沙发、电视、餐桌、电脑工作区、厨房橱柜,如果还能放一个吧台就更好了。
即使是设计师“茶壶”看到这样的“内容清单”,并将其与可用的平方米面积进行比较,也不得不抓头。但不用担心,有办法解决这一切。
第一个解决方案:放弃将新释放的空间填满家具直到天花板的想法。
第二个解决方案:仔细考虑如何将空间划分为区域——也许其中一些区域可以合并?
重要提示!拆除一堵墙并不会让房间变大。你只是移除了一个380毫米厚的墙体,获得了轻松重新规划的能力。因此,在你的长列表“愿望清单”中,认真思考哪些物品你是真正需要放置的,哪些是你希望放在那里的,以及哪些可以省略。
设计师玛丽亚·弗罗洛娃创作的厨房客厅设计项目,她自己也陷入了类似的“混乱”。

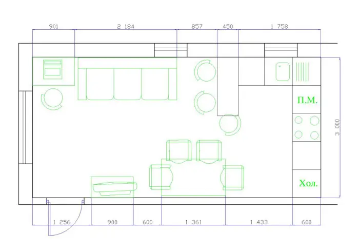
图1 — 拆墙后房间布局。方案一
在上述例子中,设计师根据客户的意愿明确划分了每个区域。厨房区域通过吧台与其余空间隔开,餐桌将厨房和客厅分开。设计师将工作角落放在了柔软区域附近。
对于小厨房,唯一正确的解决方案是角形布局。这不仅实用,而且美观地将水槽放在窗户附近,而不是紧邻墙面。

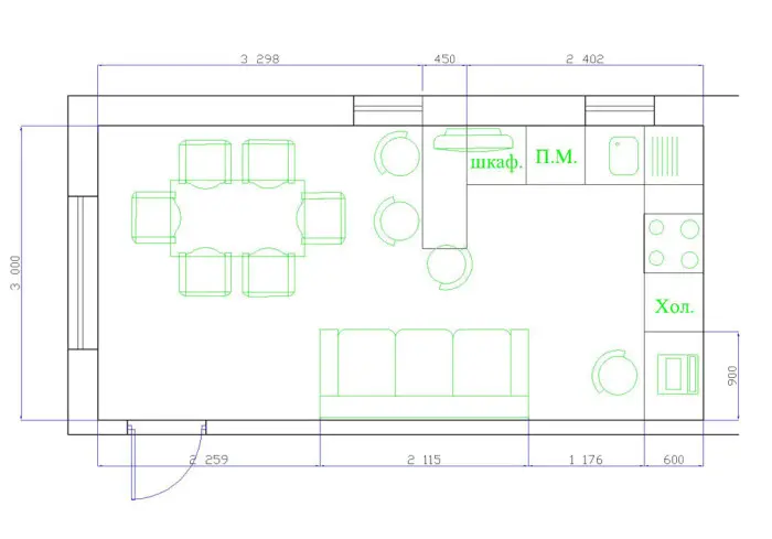
图2 — 拆墙后房间布局。方案二
在第二种方案中,设计师分配了更多的空间给厨房。如果公寓居民是厨师,这种设计可以被视为一种特权。
沙发改变了位置:现在它连接了房间的两个区域(如果家庭经常聚集在一起,这是必不可少的)。
电视放在吧台上方,这样就可以在用餐区域观看电视节目,而不必离开该区域或移动到房间的其他区域。
这种布局变体中也保留了餐桌角落:现在当它在独立区域时,客人可以在节庆夜晚被邀请到桌子旁。在这种情况下,分区突出了餐桌的特殊位置。

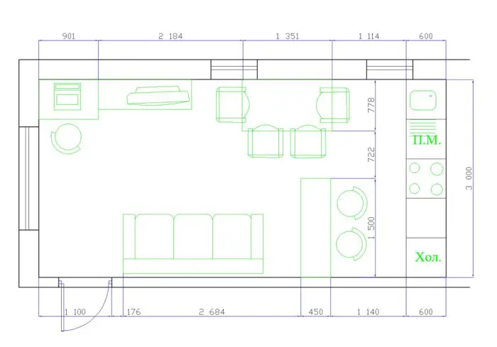
图3 — 拆墙后房间布局。方案三
如方案#3所示的布局允许频繁欢迎客人而不会遇到任何困难:线性厨房被隐藏在吧台后面,房间的大部分现在由一个以舒适的软沙发为中心的客人区域占据。然而,这种设计仍有一些不足之处。
现在仔细研究所有三个室内设计方案并进行对比。
厨房客厅室内设计:最终布局方案

图4 — 拆墙后房间布局。最终版本
根据设计师的说法,这种变体结合了区域分离的逻辑和所有客户的要求:
- 坐在沙发上或在吧台旁,可以舒适地观看电视;
- 休息区通过吧台与厨房区域隔开;
- 从天花板到厨房橱柜可以隐藏所有笨重的家用电器;设计师还用它来将厨房橱柜与电脑桌的位置分开(以防水溅或油滴到达显示器或键盘);
- 工作区位于电视后面,这对电脑用户来说可能不太舒适(在方案#3中指出了一个更理想的放置电脑的位置)。

照片1 — 拆墙后的厨房客厅草图
总体建议:
- 当厨房与生活空间结合时,强大的抽油烟机是必不可少的。同样重要的是拥有一台安静的冰箱,因为其运行时的噪音可能会破坏整个房间的氛围。
- 对于结合空间,室内元素应根据整体风格选择。
- 拆墙项目必须由BTI批准(您可以自己办理,也可以聘请负责您厨房设计项目的设 计机构员工)。

照片2 — 厨房客厅室内设计

照片3 — 厨房客厅室内设计

照片4 — 厨房客厅室内设计

照片5 — 厨房客厅室内设计

照片6 — 厨房客厅室内设计

照片7 — 厨房客厅室内设计
Need a renovation specialist?
Find verified professionals for any repair or construction job. Post your request and get offers from local experts.







